Bisley, Woking, GU24

Offers in excess of
£315,000

2 Bedroom End of Terrace House for sale in Woking

1 2 1
  • End of Terrace
  • Back to Back Home
  • Two Bedrooms
  • Private Garden
  • Close to Local Amenities

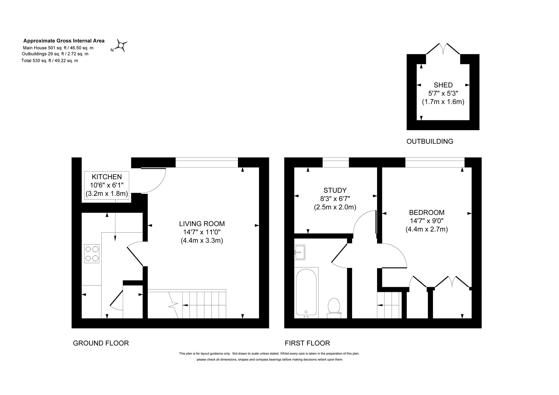
This end of terrace home is located on the popular Flowers Development in Bisley and is offered to the market in excellent internal condition having been modernised and well maintained by the current owner.
The property enjoys the use of two bedrooms, the master a spacious double that benefits from the use of built in wardrobes. These share the use of a modern family bathroom fitted with a three piece suite comprising a wash hand basin with vanity unit, w/c and bath. Stylish floor to ceiling tiles completes the room.
Downstairs there is a generous lounge/dining room with a kitchen adjoining, boasting a range of base and eye level shaker style units with an integrated oven, electric hob and space for appliances.
Outside there is large private garden that is mainly laid to lawn and provides the ideal space to relax or barbecue. All in all a wonderful property that should be viewed to be fully appreciated.
Location
Bisley village sits conveniently for access to both Woking (3.4 Miles) and Guildford (7.7 miles) whilst the M3 is approximately 2 miles. There is a Primary school in the village with secondary schools being easily accessible in West End (Gordons) and St Johns (Winston Churchill). There is a local Sainsburys within the village as well as an excellent continental butcher. A larger Sainsburys superstore is within a mile in nearby Knaphill.
For those who enjoy the outdoors Bisley village is surrounded by acres of common land at nearby Brentmoor Heath as well as Stafford Lake. Nearby Brookwood station provides a regular direct service to Waterloo.

Important Information

  • This is a Freehold property.

Property Ref: 58085_KNA250171

Share:

Similar Properties

Bisley, Woking, Surrey, GU24

2 Bedroom End of Terrace House | £314,950

Situated on the ever popular Flowers Development in Bisley, this well presented two bedroom end of terrace back to back...

126 Connaught Road, Woking, Surrey, GU24

2 Bedroom Apartment | Offers in excess of £300,000

A stunning top floor apartment that is located within stone's throw of Brookwood Mainline Station which offers easy acce...

Knaphill, Woking, Surrey, GU21

2 Bedroom Maisonette | £299,950

This spacious first floor maisonette is a short walk from Knaphill village that offers a wide range of amenities and boa...

Bisley, Woking, Surrey, GU24

2 Bedroom Terraced House | £329,950

A well-presented two-bedroom terraced home tucked away in a quiet cul-de-sac, featuring a private front garden, ideal fo...

Bisley, Woking, Surrey, GU24

2 Bedroom End of Terrace House | £330,000

Immaculate Two-Bedroom Back-to-Back Home in Quiet Cul-de-Sac – No Onward Chain – BisleyLocated in the sought-a...

West End, Woking, Surrey, GU24

2 Bedroom Maisonette | £340,000

A spacious two bedroom ground floor maisonette with parking.Situated on a recently built development in West End, this s...

Seymours (Knaphill)

Knaphill, Surrey, GU21 2PP

01483 798969

How much is your home worth?

Use our short form to request a valuation of your property.

Request a Valuation

Mortgage Calculator

Amount Borrowed: £
Total Amount Repayable: £
Total Monthly Payment: £
©2025 The Guild of Property Professionals. All rights reserved. Terms and Conditions | Privacy Policy | Cookie Policy | Complaints Policy | Members Login
The Guild of Property Professionals Trading Address: 121 Park Lane, London W1K 7AG. GPEA Limited. Registered in England & Wales.  Company No: 02819824.  Registered Office Address: 2 St. Stephen's Court, St. Stephen's Road, Bournemouth, Dorset, England, BH2 6LA.  VAT Registration No: 576 8795 61
Book a Property Valuation Update Cookies Preferences