Knaphill, Woking, Surrey, GU21

£285,000

2 Bedroom Apartment for sale in Woking

1 2 1
  • Two Double Bedrooms
  • First Floor
  • Two Allocated Parking Spaces
  • Walking Distance to Knaphill Village
  • Within Easy Reach of Brookwood Mainline Station
  • Long Lease in Excess of 160 Years
  • Quiet Cul de Sac Location

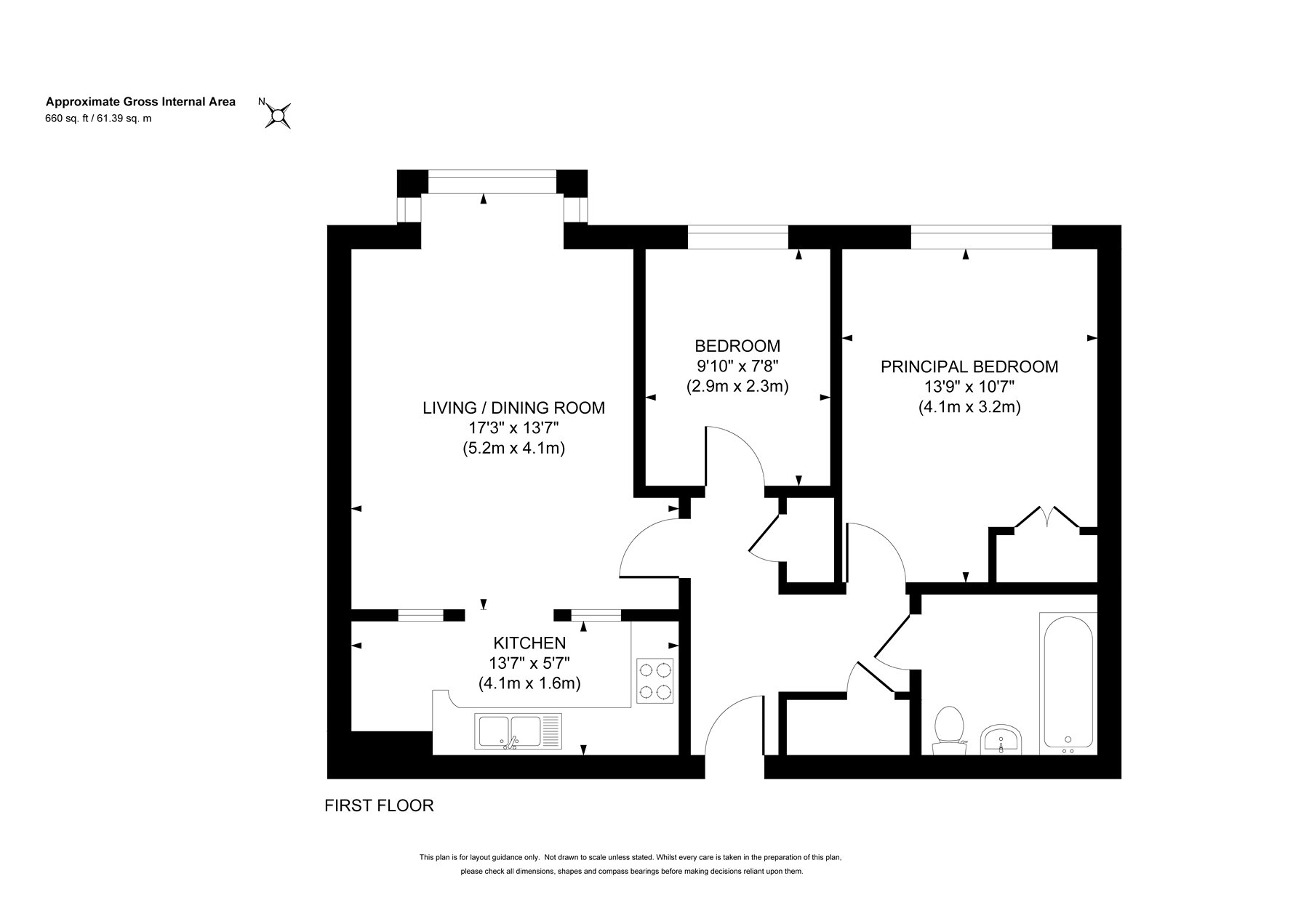
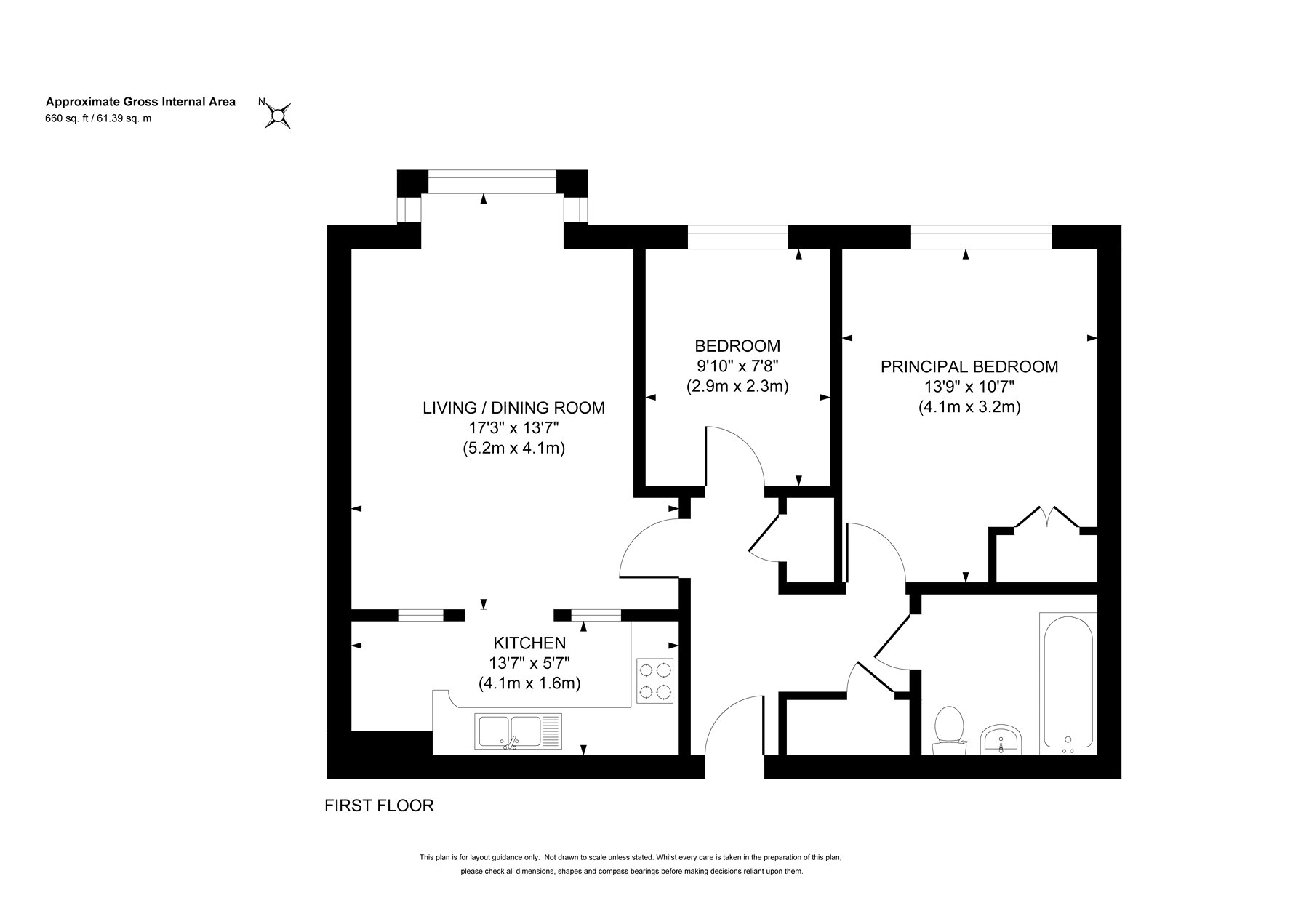
Tucked away in a quiet cul de sac on the sought after Brookwood Manor development, this spacious first floor apartment is offered to the market in excellent condition throughout.
The property features two generous double bedrooms and a bright, open plan living space comprising a comfortable lounge and dining area with an attractive archway leading through to the kitchen. The kitchen is fitted with a range of base and eye level units, an integrated oven with electric hob, and space for additional appliances.
The modern bathroom has been finished to a high standard, featuring a contemporary suite with wash hand basin, W/C, and a P shaped bath, complemented by floor to ceiling tiling for a sleek, modern feel.
Further benefits include a long lease of approximately 183 years remaining and two allocated parking spaces.
Located in a peaceful and well maintained development, this property offers the perfect balance of tranquillity and convenience, ideal for first time buyers, downsizers, or investors alike.
Early viewing is highly recommended.
Location
Knaphill village has a vibrant range of shops, pubs and restaurants, which includes a Post Office. For more comprehensive shopping, Sainsbury's superstore is approximately quarter of a mile away. For commuting, Brookwood station provides a regular service direct to London Waterloo, Woking and Guildford. For those who enjoy the outdoors, there is Brookwood Country Park, Sheets Heath and Basingstoke Canal close by, which is ideal for dog walking or a family stroll.
Property Information

Lease Length: 163 years 4 months
Service Charge: £857.52pa
Ground Rent: £0.00

Important Information

  • This is a Leasehold property.

Property Ref: 58085_KNA250393

Share:

Similar Properties

Brookwood, Woking, Surrey, GU24

2 Bedroom Apartment | Offers in excess of £285,000

Offered to the market with no onward chain.This first-floor apartment is a stone's throw from Brookwood Mainline Station...

Knaphill, Woking, Surrey, GU21

2 Bedroom Apartment | Offers in excess of £275,000

This modern first floor apartment is within easy reach of Brookwood Mainline Station and is offered to the market with n...

Knaphill, Woking, Surrey, GU21

2 Bedroom Apartment | £250,000

A ground floor apartment located a short stroll from the vibrant High Street of Knaphill, offering an array of shops and...

Knaphill, Woking, Surrey, GU21

2 Bedroom Apartment | Offers in excess of £299,500

Presented in excellent condition, this modern first-floor apartment offers a comfortable and inviting living space with...

Knaphill, Woking, Surrey, GU21

2 Bedroom Maisonette | £299,950

A unique split-level maisonette, presented to the market in excellent condition and boasting an enviable position overlo...

Knaphill, Woking, Surrey, GU21

2 Bedroom Maisonette | £299,950

This spacious first floor maisonette is a short walk from Knaphill village that offers a wide range of amenities and boa...

Seymours (Knaphill)

Knaphill, Surrey, GU21 2PP

01483 798969

How much is your home worth?

Use our short form to request a valuation of your property.

Request a Valuation

Mortgage Calculator

Amount Borrowed: £
Total Amount Repayable: £
Total Monthly Payment: £
©2025 The Guild of Property Professionals. All rights reserved. Terms and Conditions | Privacy Policy | Cookie Policy | Complaints Policy | Members Login
The Guild of Property Professionals Trading Address: 121 Park Lane, London W1K 7AG. GPEA Limited. Registered in England & Wales.  Company No: 02819824.  Registered Office Address: 2 St. Stephen's Court, St. Stephen's Road, Bournemouth, Dorset, England, BH2 6LA.  VAT Registration No: 576 8795 61
Book a Property Valuation Update Cookies Preferences