Knaphill, Woking, Surrey, GU21

£299,950
SSTC
This property listing is now SSTC

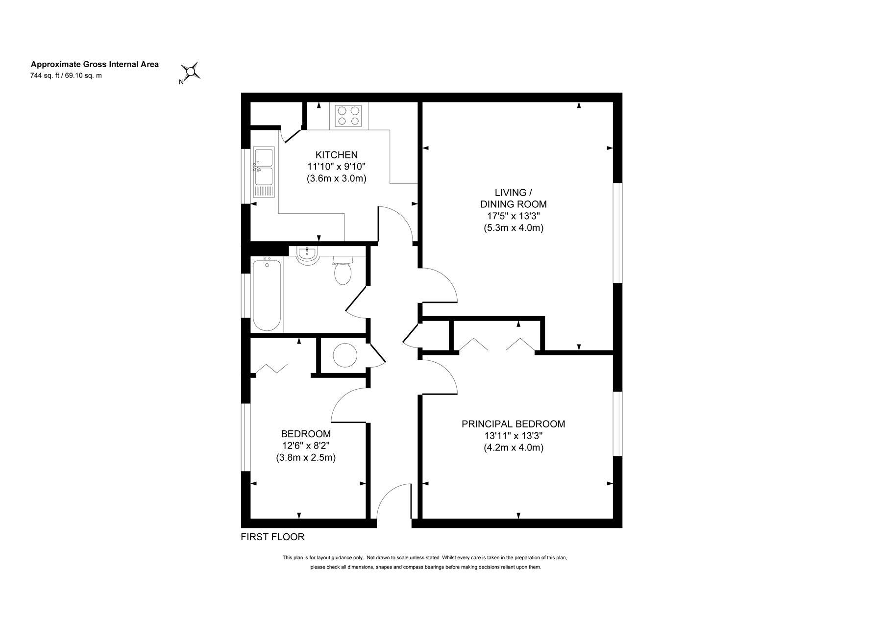
2 Bedroom Maisonette for sale in Woking

1 2 1
  • First Floor Maisonette
  • Two Bedrooms
  • Large Living/Dining Room
  • Modern Three Piece Bathroom
  • Loft
  • Garage
  • Close to Local Amenities

This spacious first floor maisonette is a short walk from Knaphill village that offers a wide range of amenities and boasts a long lease in excess of 940 years and a detached garage with parking in front.
The property is well presented throughout and enjoys the use of two generously sized bedrooms, both benefitting from the use of built in wardrobes. A bright and spacious living room serves as the main reception area, boasting wood effect laminate flooring and ample space for a dining table.
The kitchen is impressively sized for a property of this type and is well equipped with a range of eye and base level units, a breakfast bar with seating for two, space for a range cooker and space for additional appliances.
A modern three piece bathroom completes the accommodation, featuring white sanitary ware, stylish wall tiling, and a large mirror.
Additional benefits include access to a loft providing useful storage space and a front garden laid to lawn with attractive flower borders.
Conveniently located for local amenities and excellent transport links, the property provides easy access to both Woking and Brookwood mainline stations.
Property Information
Lease Length: 944 years
Service Charge: NA
Ground Rent: £10.00pa

Location

Knaphill village has a vibrant range of shops, pubs, restaurants and a Post Office. For more comprehensive shopping Sainsbury's superstore is approximately quarter of a mile away. For commuting, nearby Brookwood station provides a regular service direct to Waterloo, Woking and Guildford. For those who enjoy the outdoors there is Stafford lake which is ideal for dog walking and nearby Brookwood Country Park ideal for a family stroll on a Sunday.

Important Information

  • This is a Leasehold property.

Property Ref: 58085_KNA250384

Share:

Similar Properties

Knaphill, Woking, Surrey, GU21

2 Bedroom Maisonette | £299,950

A unique split-level maisonette, presented to the market in excellent condition and boasting an enviable position overlo...

Knaphill, Woking, Surrey, GU21

2 Bedroom Apartment | Offers in excess of £299,500

Presented in excellent condition, this modern first-floor apartment offers a comfortable and inviting living space with...

Brookwood, Woking, Surrey, GU24

2 Bedroom Apartment | Offers in excess of £285,000

Offered to the market with no onward chain.This first-floor apartment is a stone's throw from Brookwood Mainline Station...

126 Connaught Road, Woking, Surrey, GU24

2 Bedroom Apartment | Offers in excess of £300,000

A stunning top floor apartment that is located within stone's throw of Brookwood Mainline Station which offers easy acce...

Bisley, Woking, Surrey, GU24

2 Bedroom End of Terrace House | £314,950

Situated on the ever popular Flowers Development in Bisley, this well presented two bedroom end of terrace back to back...

Bisley, Woking, GU24

2 Bedroom End of Terrace House | Offers in excess of £315,000

This end of terrace home is located on the popular Flowers Development in Bisley and is offered to the market in excelle...

Seymours (Knaphill)

Knaphill, Surrey, GU21 2PP

01483 798969

How much is your home worth?

Use our short form to request a valuation of your property.

Request a Valuation

Mortgage Calculator

Amount Borrowed: £
Total Amount Repayable: £
Total Monthly Payment: £
©2025 The Guild of Property Professionals. All rights reserved. Terms and Conditions | Privacy Policy | Cookie Policy | Complaints Policy | Members Login
The Guild of Property Professionals Trading Address: 121 Park Lane, London W1K 7AG. GPEA Limited. Registered in England & Wales.  Company No: 02819824.  Registered Office Address: 2 St. Stephen's Court, St. Stephen's Road, Bournemouth, Dorset, England, BH2 6LA.  VAT Registration No: 576 8795 61
Book a Property Valuation Update Cookies Preferences