Bisley, Woking, Surrey, GU24

Guide Price
£650,000
SSTC
This property listing is now SSTC

4 Bedroom Detached House for sale in Woking

2 4 2
  • Detached Chalet Style Property
  • Overlooking Woodland
  • Backing onto Fields
  • Three/Four Bedrooms
  • Open Plan Kitchen
  • Utility Room
  • Downstairs Shower
  • South Facing Garden
  • Off Street Parking for Multiple Vehicles

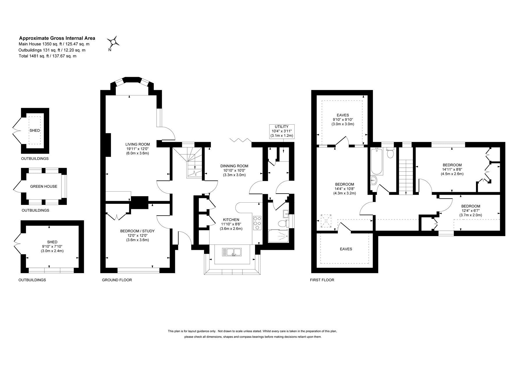
This detached chalet-style property offers flexible living accommodation and oozes character and charm whilst offering a hugely desirable location, overlooking woodland at the front and backing onto open fields at the rear.
The property has been extended and renovated throughout by the current owners who have created a wonderful home that caters for all the needs of modern family living.
First floor accommodation includes three bedrooms, the master enjoying the use of a range of built in wardrobes. These share the use of a family bathroom fitted with a traditional suite including w/c, wash hand basin and roll top bathroom. Wood panelling provides another splash of character.
Downstairs there is the option of a fourth bedroom or family room. Towards the rear of the home is a lounge, complete with a feature fireplace, bay window offering wonderful views over the garden and a door giving access outside.
The beating heart of the home is a stunning open plan kitchen with bi-folding doors giving access to the garden. The cottage style kitchen has been fitted with a range of base and eye level shaker style units that are perfectly complimented by solid wood worktops. A breakfast bar is another useful addition providing seating for three. Adjoining is a utility and a downstairs shower room, completing the accommodation on offer.
The aforementioned garden is South facing and runs in excess of 90ft in length. A sizeable patio provides space to sit and leads to a well maintained lawn. To the front of the property is an impressive driveway providing off street parking for multiple vehicles.
Location
Bisley village sits conveniently for access to both Woking (3.4 Miles) and Guildford (7.7 miles) whilst the M3 is approximately 2 miles. There is a Primary school in the village with secondary schools being easily accessible in West End (Gordons) and St Johns (Winston Churchill). There is a local Sainsburys within the village as well as an excellent continental butcher. A larger Sainsburys superstore is within a mile in nearby Knaphill.
For those who enjoy the outdoors Bisley village is surrounded by acres of common land at nearby Brentmoor Heath as well as Stafford Lake. Nearby Brookwood station provides a regular direct service to Waterloo.

Important Information

  • This is a Freehold property.

Property Ref: KNA240045

Share:

Similar Properties

Bisley, Woking, GU24

4 Bedroom Detached House | £650,000

Situated at the end of a quiet cul-de-sac, this deceptively spacious four-bedroom family home offers well-presented and...

Knaphill, Woking, Surrey, GU21

4 Bedroom Detached House | Offers in excess of £650,000

This detached family home is tucked away at the end of a quiet cul de sac on the popular Birds Development in Knaphill a...

Brookwood, Woking, Surrey, GU24

4 Bedroom Detached House | £650,000

An individual spacious character home that is ideally located for those who commute, as Brookwood Mainline Station is a...

Pirbright, Woking, Surrey, GU24

3 Bedroom Semi-Detached House | £675,000

Situated in the heart of Pirbright, this exceptional semi-detached home enjoys a peaceful semi-rural setting while remai...

Bisley, Woking, Surrey, GU24

4 Bedroom Semi-Detached House | £675,000

A rare opportunity to acquire a substantial family home in a desirable village location.

Knaphill, Woking, Surrey, GU21

4 Bedroom Detached House | £675,000

Offered with no onward chain. A superb detached family home occupying one of the most sought after positions within the...

Seymours (Knaphill)

Knaphill, Surrey, GU21 2PP

01483 798969

How much is your home worth?

Use our short form to request a valuation of your property.

Request a Valuation

Mortgage Calculator

Amount Borrowed: £
Total Amount Repayable: £
Total Monthly Payment: £
©2026 The Guild of Property Professionals. All rights reserved. Terms and Conditions | Privacy Policy | Cookie Policy | Complaints Policy | Members Login
The Guild of Property Professionals Trading Address: 121 Park Lane, London W1K 7AG. GPEA Limited. Registered in England & Wales.  Company No: 02819824.  Registered Office Address: 2 St. Stephen's Court, St. Stephen's Road, Bournemouth, Dorset, England, BH2 6LA.  VAT Registration No: 576 8795 61
Book a Property Valuation Update Cookies Preferences