West End, Woking, Surrey, GU24

£199,950
SSTC
This property listing is now SSTC

1 Bedroom Maisonette for sale in Woking

1 1 1
  • No Onward Chain
  • Approximately 520m From Gordons School
  • Spacious Double Bedroom
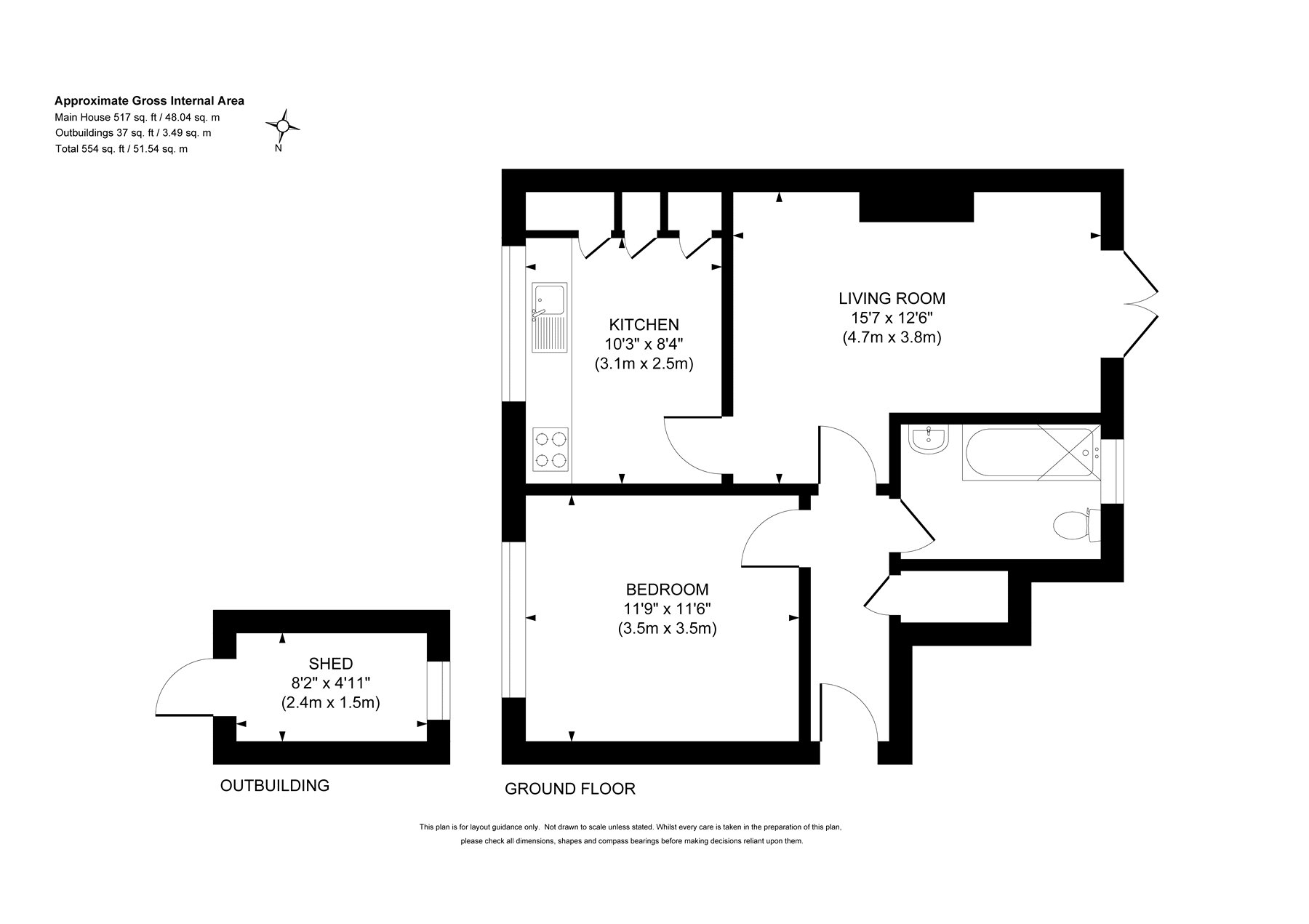
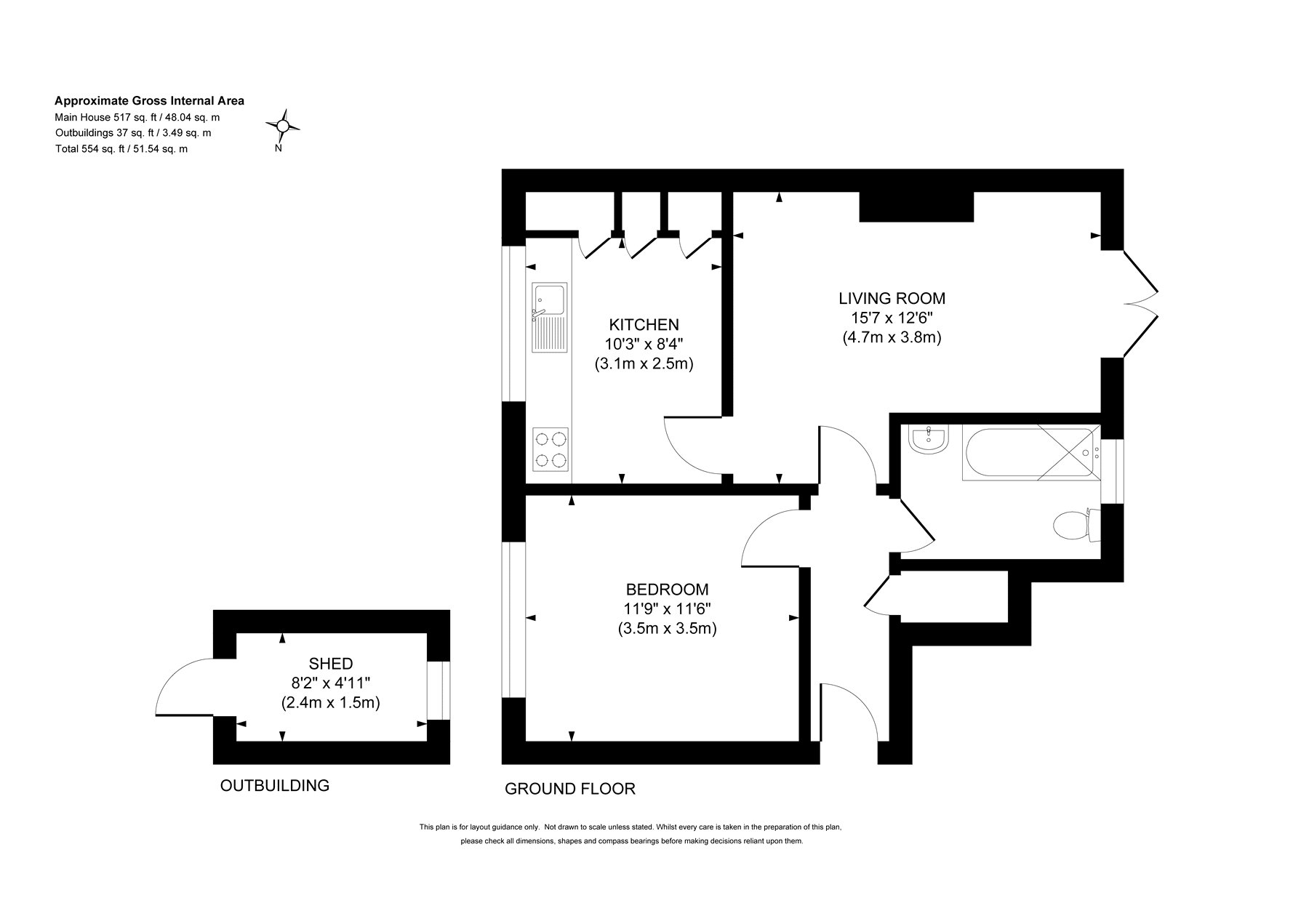
  • Brick Built Store
  • Ground Floor
  • Courtyard Garden
  • Close to Shops
  • In Need of Modernisation

This spacious ground floor maisonette presents a fantastic opportunity for buyers looking to put their own stamp on a property. In need of complete modernisation, the home offers generous proportions throughout and is perfect for first-time buyers, investors, or those seeking a project.
The accommodation comprises a large double bedroom, a well-proportioned lounge with doors leading out to a courtyard garden, a separate kitchen, and a bathroom. Outside, there is the added benefit of a brick-built storage shed.
With no onward chain and plenty of scope to add value, this property is not to be missed. Early viewing is highly recommended.
Property Information
Lease Length: 88 years
Service Charge: £579.96pa
Ground Rent: £10.00pa

Location
West End village is conveniently located for access to Junction 3 of the M3 which in turn gives access to both Heathrow and Gatwick international airports. Education is well catered for with two excellent schools, the highly regarded Gordon's School and Holy Trinity primary school. The Gosden Parade provides a good range of shops to include a news agents, hairdressers and coffee shop. Local dining is also excellent with the Inn At West End and the Hare & Hounds directly in the village whilst local Chobham village also offers several similar pub/restaurants. Brookwood station is approximately 2.3 miles with a regular direct service to Waterloo

Important Information

  • This is a Leasehold property.

Property Ref: KNA250071

Share:

Similar Properties

Knaphill, Woking, Surrey, GU21

1 Bedroom Apartment | £199,950

Situated in a quiet cul-de-sac and offered to the market with no onward chain, this ground floor maisonette is convenien...

Bisley, Woking, Surrey, GU24

1 Bedroom Maisonette | Offers in excess of £180,000

Situated on the popular Flowers development in Bisley, this well-presented ground floor maisonette offers comfortable an...

Knaphill, Woking, Surrey, GU21

1 Bedroom Apartment | £169,950

This beautifully presented Victorian conversion apartment is ideally located within easy reach of Knaphill Village that...

Bisley, Woking, Surrey, GU24

1 Bedroom Apartment | Offers in excess of £215,000

This modern first floor apartment is offered to the market in excellent condition and is located in a private gated deve...

Tudor Way, Knaphill, Woking, GU21

2 Bedroom Apartment | £220,000

Offered to the market with no onward chain, this well-presented first floor apartment is ideally situated within walking...

St Johns, Woking, Surrey, GU21

1 Bedroom Apartment | Offers in excess of £225,000

Located in a peaceful cul-de-sac adjacent to the picturesque Basingstoke Canal, this beautifully maintained ground floor...

Seymours (Knaphill)

Knaphill, Surrey, GU21 2PP

01483 798969

How much is your home worth?

Use our short form to request a valuation of your property.

Request a Valuation

Mortgage Calculator

Amount Borrowed: £
Total Amount Repayable: £
Total Monthly Payment: £
©2026 The Guild of Property Professionals. All rights reserved. Terms and Conditions | Privacy Policy | Cookie Policy | Complaints Policy | Members Login
The Guild of Property Professionals Trading Address: 121 Park Lane, London W1K 7AG. GPEA Limited. Registered in England & Wales.  Company No: 02819824.  Registered Office Address: 2 St. Stephen's Court, St. Stephen's Road, Bournemouth, Dorset, England, BH2 6LA.  VAT Registration No: 576 8795 61
Book a Property Valuation Update Cookies Preferences