Mannings Lane, Woolverstone

£735,000

4 Bedroom House for sale in Woolverstone

3 4 2
  • FOUR/FIVE BEDROOM SEMI DETACHED HOME
  • 1/3 ACRE OF GARDENS (STS)
  • PURPOSE BUILT OUTSIDE OFFICE
  • THREE/FOUR RECEPTION ROOMS
  • EN-SUITE TO BEDROOM ONE
  • UTILITY ROOM AND DOWNSTAIRS WC
  • OFF ROAD PARKING FOR NUMEROUS VEHICLES
  • GARAGE
  • WOODLAND AND FARMLAND VIEWS
  • VIEWING ADVISED

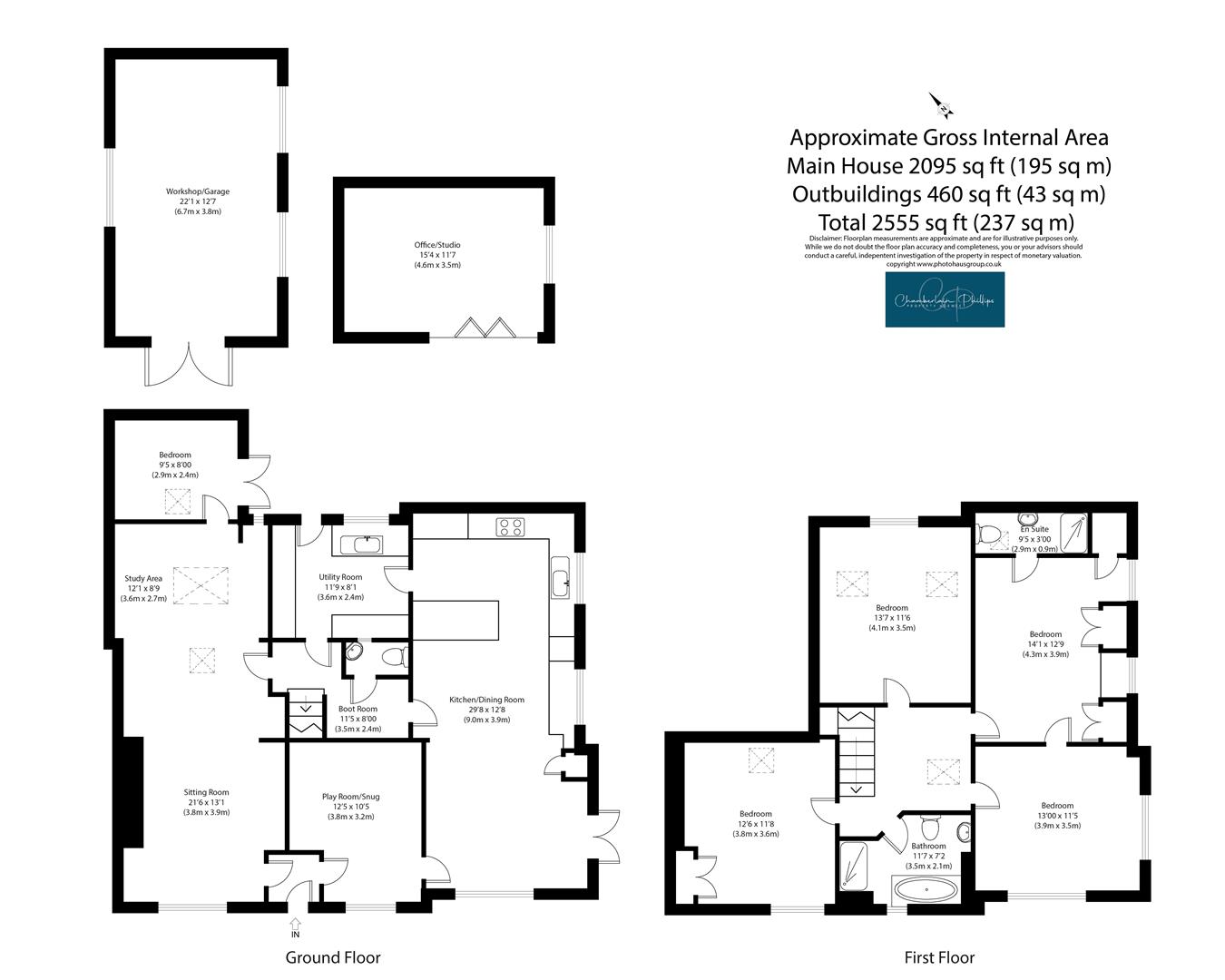
** 1/3 ACRE PLOT** Set along a peaceful country lane in one of Woolverstone's most tranquil locations, this charming and beautifully extended four-bedroom home stands within gardens and grounds of approximately one-third of an acre (STS). Dating back to the 1800s, the property blends period character with modern living, offering generous and flexible accommodation arranged over two floors.

The ground floor features a welcoming living room with a feature fireplace and log burner, leading through to a cosy snug area at the rear. A further reception room provides an ideal space for a study, playroom or ground-floor bedroom, while an additional front reception room currently serves as a snug/playroom. The spacious kitchen/dining room offers a superbly designed space for family life and entertaining, complemented by a separate utility room and cloakroom.

Upstairs are four well-proportioned double bedrooms, including a main bedroom with an en-suite shower room. A stylish family bathroom completes the first floor.

The property enjoys delightful gardens surrounding the home, with patio areas ideal for outdoor dining and relaxation. To the right, the formal gardens feature a purpose-built home office and back onto private woodland, providing an idyllic outlook. A further section of garden also adjoins woodland, offering a wonderful sense of space and seclusion.

Across the lane, an additional parcel of land includes ample off-road parking, a garage, and a lawned area that enjoys views over open countryside.

Situated in the sought-after riverside village of Woolverstone, within easy reach of Ipswich and the mainline station at Manningtree (with direct trains to London Liverpool Street), this exceptional home offers the perfect balance of countryside living and modern convenience.

Woolverstone is an attractive riverside village set on the Shotley Peninsula, overlooking the beautiful River Orwell and surrounded by unspoilt Suffolk countryside. The village is home to the historic Woolverstone Hall, now Ipswich High School, and offers easy access to the marina, sailing facilities, and scenic walking routes along the estuary.

Local amenities can be found in nearby villages, including Chelmondiston and Freston, with popular public houses such as The Freston Boot and The Red Lion, along with further restaurants and shops in Ipswich, approximately four miles away. Medical practices and larger shopping facilities are also available in Ipswich.

The area is ideally located for commuters, with the A12 and A14 providing routes to London, Cambridge and the Midlands. Mainline rail services to London Liverpool Street are available from Manningtree Station, approximately 12 miles away, and from Ipswich itself.

Woolverstone offers a peaceful rural setting with excellent access to sailing, golf and countryside pursuits, making it a highly desirable place to live on the Suffolk coast.

Agents Notes:
Tenure - Freehold
Council tax - Band B
Services - Mains Electric/Mains Water/Private Drainage
Heating - Electric Heating
Mobile Coverage - EE - 80% / Vodafone - 77% / Three - 73% / o2 - 73%
Broadband - Broadband is Available

Property Ref: 512123_34232121

Share:

Similar Properties

Lower Street, Stutton

4 Bedroom House | £725,000

** SOLD PRIOR TO LAUNCH **Delight in the exceptional opportunity that awaits you with this unique and special four-bedro...

All Saints Road, Creeting St. Mary

4 Bedroom Barn Conversion | Offers in excess of £700,000

A unique, newly converted Grade II listed barn nestled in the heart of a sought after rural Suffolk village, with 4 en-s...

Margarets Place, Bradfield

3 Bedroom Detached Bungalow | Guide Price £675,000

** 1/3 ACRE PLOT ** Nestled in the quaint village of Bradfield, this modern detached bungalow presents a perfect opportu...

Windmill Road, Bradfield, Manningtree

4 Bedroom Detached Bungalow | Guide Price £750,000

Chamberlain Phillips are thrilled to present a substantial bay-fronted detached bungalow set within a vast plot spanning...

Ardleigh Road, Little Bromley, Manningtree

4 Bedroom Detached House | £750,000

** 3 ACRE PLOT **Discover an exquisite family retreat steeped in history with this magnificent Grade II Listed farmhouse...

East End, East Bergholt

4 Bedroom Detached House | £750,000

Chamberlain Phillips are proud to present this beautifully modernised four-bedroom detached home, ideally located in the...

Chamberlain Phillips (Manningtree)

Summers Park, Lawford, Manningtree, Essex, CO11 2BZ

01206 646479

How much is your home worth?

Use our short form to request a valuation of your property.

Request a Valuation

Mortgage Calculator

Amount Borrowed: £
Total Amount Repayable: £
Total Monthly Payment: £
©2025 The Guild of Property Professionals. All rights reserved. Terms and Conditions | Privacy Policy | Cookie Policy | Complaints Policy | Members Login
The Guild of Property Professionals Trading Address: 121 Park Lane, London W1K 7AG. GPEA Limited. Registered in England & Wales.  Company No: 02819824.  Registered Office Address: 2 St. Stephen's Court, St. Stephen's Road, Bournemouth, Dorset, England, BH2 6LA.  VAT Registration No: 576 8795 61
Book a Property Valuation Update Cookies Preferences