Station Road, Wrabness, Manningtree

£800,000

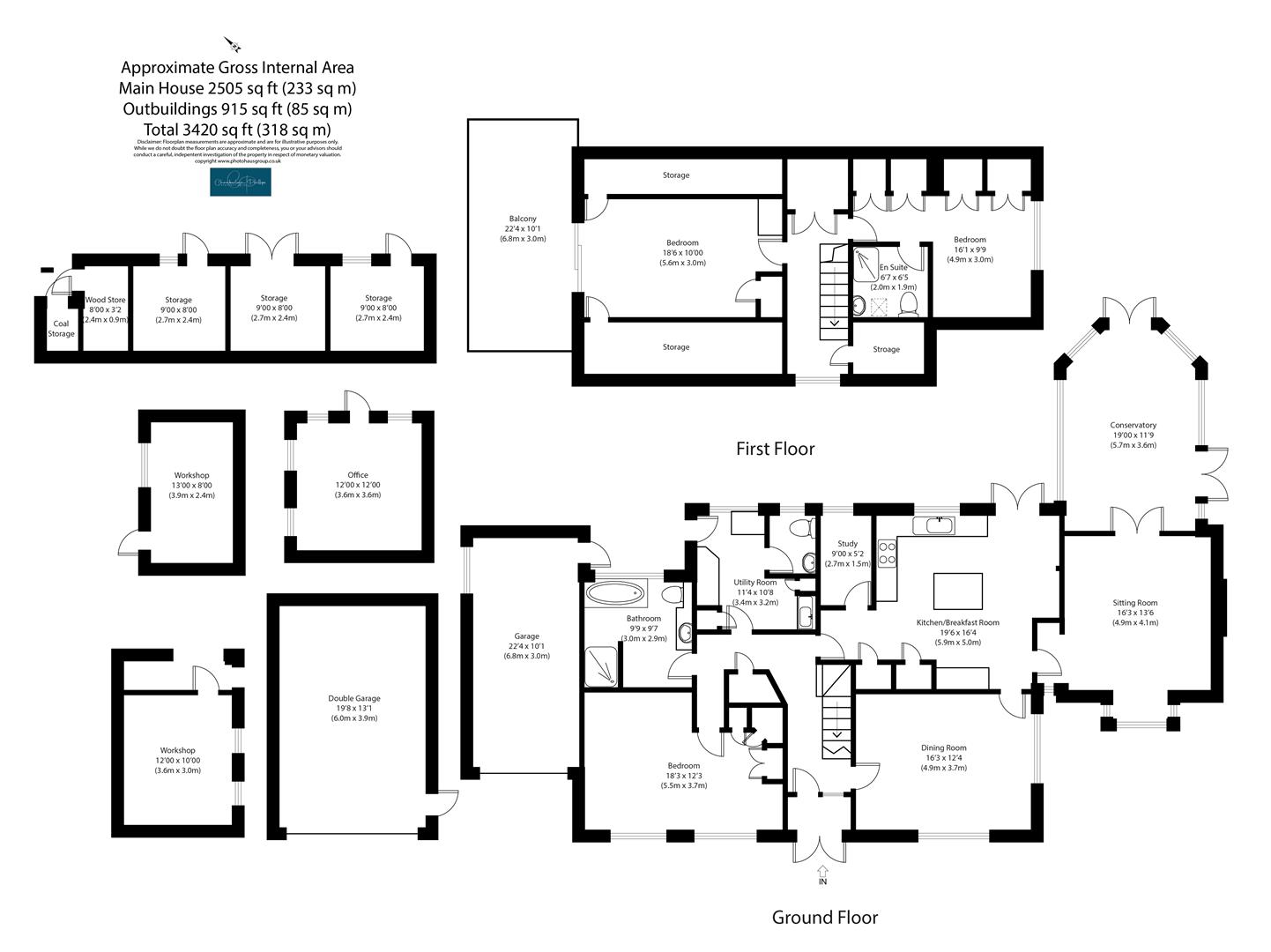
3 Bedroom Detached House for sale in Wrabness

3 3 2
  • SUBSTANTIAL DETACHED HOME
  • SET IN A PLOT APPROACHING 1 ACRE
  • SITTING ROOM WITH INGLENOOK
  • FIRST FLOOR BALCONY WITH RIVER AND FARMLAND VIEWS
  • THREE/FOUR BEDROOMS, EN-SUITE AND FAMILY BATHROOM
  • UTILITY ROOM, CONSERVATORY & DINING ROOM
  • SINGLE GARAGE, DOUBLE GARAGE AND VARIOUS WORKSHOPS & OUTBUILDINGS
  • ELECTRIC GATED DRIVEWAY
  • STUNNING GARDENS INCLUDING SUNKEN GARDEN AND MANMADE STREAM
  • VIEWING ESSENTIAL

Set within a beautifully landscaped plot approaching one acre, this substantial 3/4 bedroom detached home offers a rare combination of space, character, and breathtaking surroundings. Enjoying an elevated position with views across open farmland and the nearby river Stour, the property presents a unique opportunity for those seeking privacy, charm, and lifestyle.

The accommodation is generous and well-planned, featuring a welcoming sitting room with an impressive inglenook fireplace, a formal dining room or potential additional bedroom, bright conservatory, and a practical utility room with additional cloakroom. There are three well-proportioned bedrooms, one being en-suite, family bathroom, and a first-floor balcony offering panoramic views of the river and countryside beyond a perfect place to enjoy a morning coffee or evening sunset.

Externally, the property is equally impressive. The electric gated driveway leads to both a single and double garage, accompanied by a range of workshops and outbuildings ideal for hobbyists, storage, or business use. The gardens are a true highlight, meticulously designed to include a sunken garden, manmade stream, and a variety of secluded seating areas that showcase the peaceful setting.

This is a truly remarkable home that needs to be seen to be fully appreciated. Viewing is essential to experience the lifestyle and setting on offer.

Property Setting:

Set on the idyllic banks of the Stour Estuary, Wrabness is a sought-after coastal village offering a peaceful, picturesque lifestyle with a strong sense of community and natural beauty. Surrounded by unspoilt countryside and shoreline, the village is home to the Wrabness Nature Reserve popular with walkers, birdwatchers and those seeking a slower pace of life.

Wrabness boasts a charming village feel, complete with a local community shop, train station with direct links to Harwich and Manningtree (connecting to London Liverpool Street), and the celebrated 'House for Essex' by artist Grayson Perry a unique architectural landmark that draws visitors from far and wide.

Despite its tranquil setting, Wrabness is well connected. The historic market town of Manningtree is just a short drive away, offering a range of shops, eateries and amenities, along with fast rail services to London, making the village a perfect choice for commuters, weekenders or anyone looking to enjoy coastal living with convenience.

Combining estuary views, countryside walks, and a true sense of escape, Wrabness is a hidden gem on the Essex coast ideal for those seeking a lifestyle rooted in nature, creativity, and calm.

Important Information:
Tenure - Freehold
Council Tax - Band E
Services Connected - Mains Electric/Mains Water/Mains Drainage
Heating - Oil boiler via radiators
Telephone & Broadband - 02/EE/Three are available
Broadband - Ultrafast broadband is available

Property Ref: 512123_34100342

Share:

Similar Properties

Cambridge Drive, Summers Park

4 Bedroom Detached House | £800,000

This exceptional four-bedroom detached residence is situated in a quiet enclave of just five homes, within the highly so...

London Road, Copford, Colchester

4 Bedroom House | Offers in excess of £800,000

Offered with no upward chain, this beautifully designed home sits on a generous plot approaching a quarter of an acre, b...

Windmill Road, Bradfield, Manningtree

4 Bedroom Detached Bungalow | Guide Price £750,000

Chamberlain Phillips are thrilled to present a substantial bay-fronted detached bungalow set within a vast plot spanning...

Mission Lane, East Bergholt

5 Bedroom Detached House | £850,000

Nestled in the idyllic serenity of East Bergholt, lies a home that defines modern luxury and family living. This exquisi...

Glebe Place, Tendring

4 Bedroom Detached House | £850,000

Introducing an impressive extended detached executive family home, settled within a delightful small enclave comprising...

Wolves Hall Lane, Tendring, Clacton-On-Sea

4 Bedroom Detached House | £850,000

Built in 2000 by the highly regarded Rose Builders for the current owners, this exceptional home is offered to the marke...

Chamberlain Phillips (Manningtree)

Summers Park, Lawford, Manningtree, Essex, CO11 2BZ

01206 646479

How much is your home worth?

Use our short form to request a valuation of your property.

Request a Valuation

Mortgage Calculator

Amount Borrowed: £
Total Amount Repayable: £
Total Monthly Payment: £
©2025 The Guild of Property Professionals. All rights reserved. Terms and Conditions | Privacy Policy | Cookie Policy | Complaints Policy | Members Login
The Guild of Property Professionals Trading Address: 121 Park Lane, London W1K 7AG. GPEA Limited. Registered in England & Wales.  Company No: 02819824.  Registered Office Address: 2 St. Stephen's Court, St. Stephen's Road, Bournemouth, Dorset, England, BH2 6LA.  VAT Registration No: 576 8795 61
Book a Property Valuation Update Cookies Preferences