Vicarage Road Wrawby

Asking Price
£475,000

4 Bedroom Detached House for sale in Wrawby

1 4 3
  • A FINE EXECUTIVE, BRAND NEW, DETACHED HOUSE
  • PRIVATELY SET WITHIN A SELECT DEVELOPMENT
  • HIGHLY DESIRABLE VILLAGE LOCATION
  • FINISHED TO A HIGH SPECIFICATION
  • FEATURE OPEN PLAN LIVING/DINING KITCHEN
  • 4 GENEROUS DOUBLE BEDROOMS WITH 2 EN-SUITES
  • MAIN FAMILY BATHROOM
  • FRONT DRIVEWAY & DOUBLE GARAGE
  • PRIVATE LAWNED GARDENS



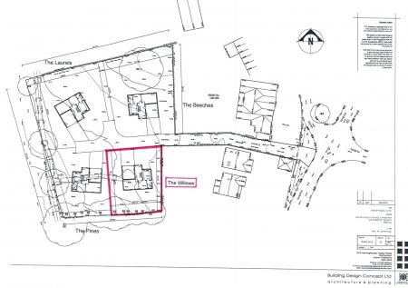
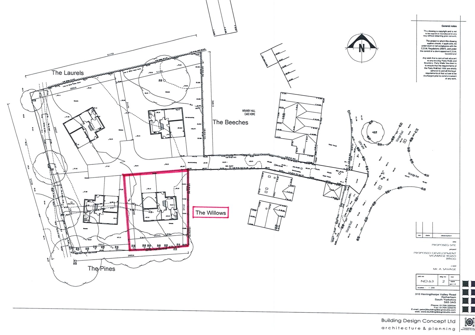
** ONLY 2 PROPERTYS REMAINING ** 'The Willows' offers a rare opportunity to purchase a privately positioned, brand new, detached house within a gated development of 4 homes discreetly located in the highly desirable village of Wrawby. Built by Willow Developments to an extremely high standard and specification with the option to view a show home at their alternative site. Accommodation is ideal for a professional couple or family comprising, central reception hallway, front living room, luxury open plan living/dining kitchen with quality furniture and bi-folding doors to the garden, matching utility room and cloakroom. The first floor enjoys a central landing leading to 4 generous double bedrooms accompanied by 2 en-suite shower rooms and a main family bathroom. The front is to benefit from a gravel driveway leading to an integral double garage with electric remote operated door. Gardens that surround the property will be turfed/seeded dependant on the time of year with treated post and rail fenced boundaries. Finished with foiled uPvc double glazing and gas fired central heating. 3 homes remaining. Viewing comes with the agents highest of recommendation. For further information please contact our Finest department within our Brigg branch.

Property Ref: PFB_PFB240112

Share:

Similar Properties

Vicarage Road, Wrawby, DN20

4 Bedroom Detached House | £475,000

** ONLY 2 PROPERTYS REMAINING ** 'The Willows' offers a rare opportunity to purchase a privately positioned, brand new,...

Hurds Farm, Worlaby, Brigg, Lincolnshire, DN20

5 Bedroom Detached House | £470,000

** 5 DOUBLE BEDROOMS ** DOUBLE GARAGE ** An outstanding executive modern detached family home positioned within a well r...

Hillside Farm Lane, Melton Road, Wrawby, Lincolnshire, DN20

4 Bedroom Detached House | £450,000

** NO UPWARD CHAIN ** A superb traditional detached house peacefully surrounded by open countryside towards the fringe o...

Brigg Road, Wrawby, Brigg, Lincolnshire, DN20

6 Bedroom Detached House | £495,000

** PRIVATE VILLAGE LOCATION ** 6 BEDROOM FAMILY HOUSE WITH ATTACHED SELF-CONTAINED ANNEX ** 'Mayfield House' offers an e...

Brigg Road Wrawby

6 Bedroom Detached House | Asking Price £495,000

** PRIVATE VILLAGE LOCATION ** 6 BEDROOM FAMILY HOUSE WITH ATTACHED SELF-CONTAINED ANNEX ** 'Mayfield House' offers an e...

Killingholme Road Habrough

4 Bedroom Detached House | Offers in excess of £500,000

** CIRCA 4 ACRES ** LARGE GENERAL PURPOSE BARN (18.1m x 19.35m) ** FORMER GRAIN STORE (6.85m x 26.85m) ** 'Hill Farm' of...

Paul Fox (Brigg)

Brigg, Brigg, Lincolnshire, DN20 8ES

01652 651777

How much is your home worth?

Use our short form to request a valuation of your property.

Request a Valuation

Mortgage Calculator

Amount Borrowed: £
Total Amount Repayable: £
Total Monthly Payment: £
©2025 The Guild of Property Professionals. All rights reserved. Terms and Conditions | Privacy Policy | Cookie Policy | Complaints Policy | Members Login
The Guild of Property Professionals Trading Address: 121 Park Lane, London W1K 7AG. GPEA Limited. Registered in England & Wales.  Company No: 02819824.  Registered Office Address: 2 St. Stephen's Court, St. Stephen's Road, Bournemouth, Dorset, England, BH2 6LA.  VAT Registration No: 576 8795 61
Book a Property Valuation Update Cookies Preferences