Exceptional Country Residence with Established Holiday-Let Business offering space, privacy and versatility.

Offers in region of
£1,650,000

5 Bedroom Detached House for sale in Wymondham

3 5 3
  • Birchwood House is an Exceptional Country Residence with Established Holiday-Let Business
  • An exceptional five bedroom, three bathroom, country residence offering space, privacy and versatility on an impressive scale
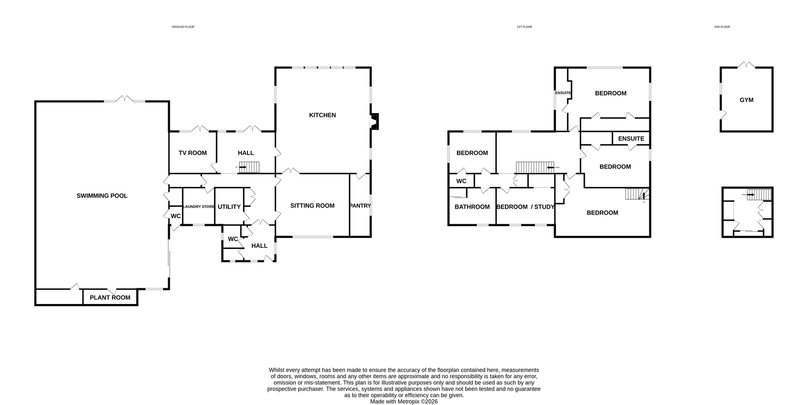
  • This spacious detached house provides approximately 6,750 sq ft of luxurious accommodation
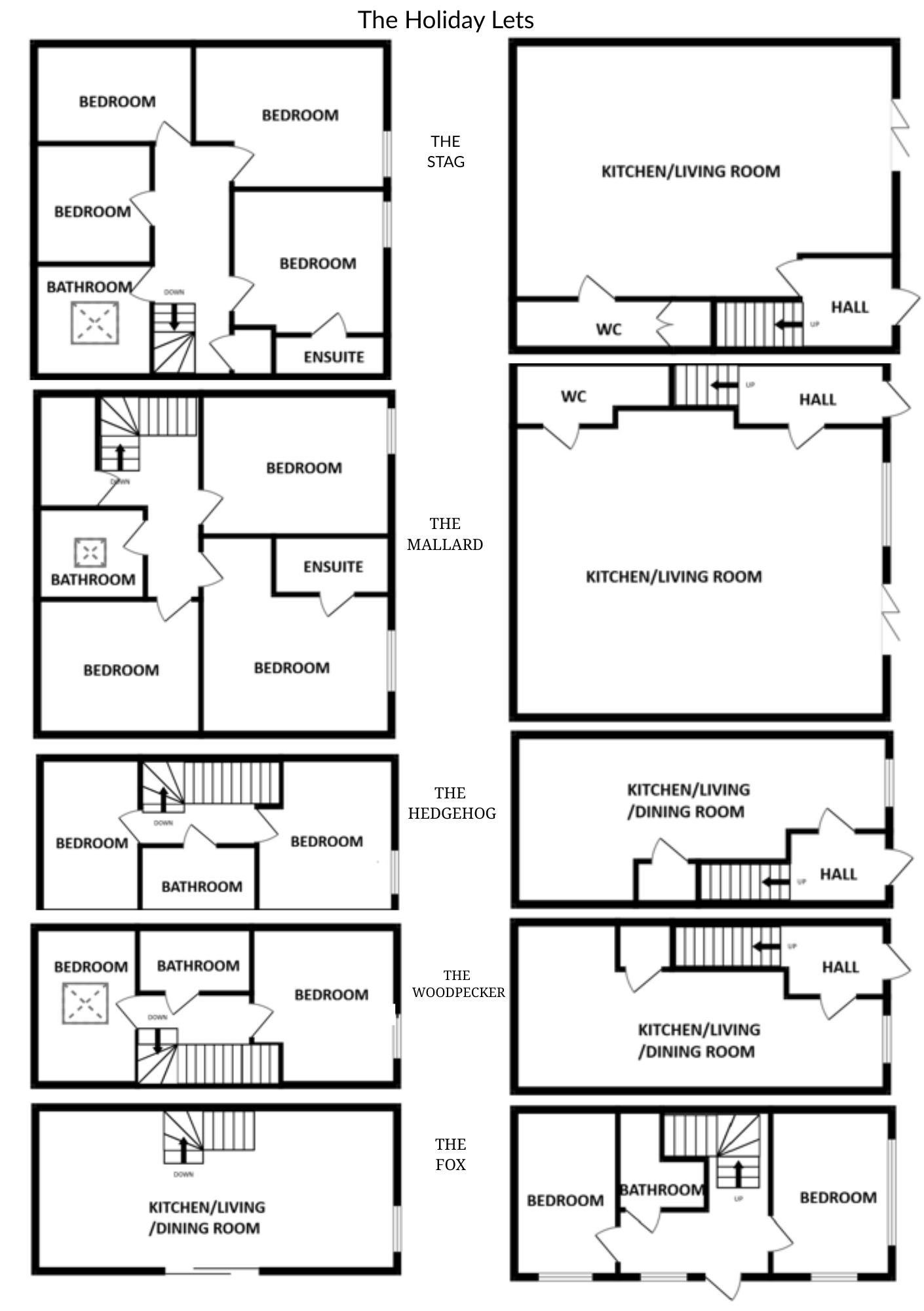
  • The property benefits from five fully equipped holiday lets, extending the total accommodation by a further 4,350 sq ft
  • A superb income generating opportunity, multi-generational living, guest accommodation or ancillary family space
  • Wonderfully private setting within approximately 2.2 acres of established gardens and ground
  • The gardens are thoughtfully laid out and include formal lawns, an orchard and meadow, creating a picturesque and tranquil backdrop
  • Also boasts a swimming pool, gymnasium and tennis court, offering an enviable lifestyle rarely found in a single home
  • Close proximity to the highly regarded Wymondham College, with Outstanding Ofsted rating, making it particularly appealing to families.
  • See our full online listing for further details including flood risk, broadband speed and other material information.

 

Moneyproperties proudly present Birchwood House, set amidst rolling countryside on the edge of the desirable village of Wicklewood. Birchwood House is an Exceptional Country Residence with Established Holiday-Let Business offering space, privacy and versatility on an impressive scale.

Birchwood House is an exceptional five bedroom, three bathroom, country residence providing approximately 6,750 sq ft of luxurious accommodation, beautifully arranged to suit modern family living while embracing its rural surroundings. In addition, the property benefits from five fully equipped holiday lets, extending the total accommodation by a further 4,350 sq ft. These versatile holiday homes offer a superb income generating opportunity, currently producing around £90,000 per annum from school-holiday letting only, with clear potential to at least double turnover through year-round operation. Financial reports can be produced when needed. Alternatively the acomodation can provide ideal multi-generational living, guest accommodation or ancillary family space.

Set within approximately 2.2 acres of established gardens and grounds, Birchwood House enjoys a wonderfully private setting. The gardens are thoughtfully laid out and include formal lawns, an orchard and meadow, creating a picturesque and tranquil backdrop. For leisure and recreation, the property also boasts a swimming pool, gymnasium and tennis court, offering an enviable lifestyle rarely found in a single home.

Despite its peaceful countryside position, Birchwood House is conveniently located close to the historic market town of Wymondham, renowned for its beautiful abbey, independent shops, cafés and comprehensive amenities. The property also lies within the catchment area of the highly regarded Wymondham College, noted for its Outstanding Ofsted rating, making it particularly appealing to families.

Birchwood House is a rare opportunity to acquire a substantial and versatile country home that effortlessly combines luxury living, lifestyle facilities and investment potential, all within easy reach of town amenities and highly regarded schooling. 

Tenure: Freehold      EPC:  D (Main House) C (Holiday Lets)     Council Tax:  G      Business Rates - Holiday Lets : Current rateable value £13,000 p.a.

Entrance Hall - 3.07m x 1.85m (10'1" x 6'1")

Claokroom - 1.85m x 1.09m (6'1" x 3'7")

Utility Room - 3.2m x 2.46m (10'6" x 8'1")

Sitting Room - 6.28m x 5.39m (20'7" x 17'8")

Kitchen / Dining / Family Room - 9m x 8.11m (29'6" x 26'7")

Inner Hall - 5.01m x 3.57m (16'5" x 11'8")

TV Room - 4.05m x 3.57m (13'3" x 11'8")

Laundry Room - 3.2m x 2.72m (10'5" x 8'11")

Swimming Pool Area - 15.95m x 11.34m (52'3" x 37'2")

Landing - 7.85m x 3.57m (25'9" x 11'8")

Main Bedroom - 6.75m x 5.3m (22'1" x 17'4")

Ensuite

Bedroom Two with access to second floor - 7.8m x 5.38m (25'7" x 17'8")

Second Floor area - 4.32m x 4.24m (14'2" x 13'11")

Bedroom Three - 5.23m x 3.58m (17'2" x 11'9")

Bedroom Four - 4.05m x 3.57m (13'3" x 11'8")

Bedroom Five / Study - 5m x 4.32m (16'4" x 14'2")

 

Outside

Plot Size approximately 2.2 acres

Gymnasium - 5.43m x 4.4m (17'9" x 14'5")

Full Size Tennis Court

Holiday Cottages

The Stag four bedroom holiday cottage Internal area 1,226 sq ft (114 sq m)

The Mallard three bedroom holiday cottage internal area 1,282 sq ft (119 sq m)

Hedgehog Lodge two bedroom holiday cottage internet floor area 631 sq ft (59 sq m)

Woodpecker two bedroom holiday cottage internal floor area 611 sq ft (57 sq m)

The Fox two bedroom holiday cottage internal area 607 sq ft (56 sq m)

Total internal area for all five holiday cottages 4,357 sq ft (405 sq m)

Orchard with various fruit trees

 

AGENT’S NOTES -

Planning :  Details, if any, can be found on the South Norfolk Council Planning website.

Covenants, Rights and Restrictions:  Please enquire with the selling agents for any information.

Broadband :  Ultrafast Full Fibre - FTTP.  See Ofcom checker and Openreach website for more details.

Mobile phone :  See Ofcom checker for coverage details.

Flood risk :  Very Low risk of surface, risk rivers and seas according to Gov.uk website

Services :  Mains Electricity and Water. Oil heathing, Septic tank (inspected and compliant)and LPG gas.

Local Suthority :  Norfolk County Council and South Norfolk Council

Council Tax Band :  G

Business Rates - Holiday Lets : Current rateable value £13000 p.a.

Tenure:  Freehold

EPC : D ( Main House) C ( Holiday Lets) 

 

Important Information

  • This is a Freehold property.
  • This Council Tax band for this property is: G

Property Ref: 1346915

Share:

Similar Properties

The Street, Tibenham, NR16

5 Bedroom Detached House | £1,100,000

Moneyproperties are proud to be marketing this idyllic Grade II listed detached farm house in the heart of the South Nor...

The Willows, Wramplingham. Beautiful Family Home with Landscaped Gardens, Annexe and Potential Building Plot (SSTP)

6 Bedroom Detached House | Guide Price £945,000

GUIDE PRICE £945,000An outstanding opportunity for large or extended families, this unique property offers up to 6 bedro...

Abbeyway, Georgian Town House with iconic Wymondham Abbey Views, Vicar Street, Wymondham, Norfolk

5 Bedroom Semi-Detached House | Offers in region of £795,000

Moneyproperties proudly present this fine Grade II listed period home, constructed of traditional brick and flint, is si...

Money Properties (Wymondham)

17/18 Market Place, Wymondham, Norfolk, NR18 0AX

01953 423 006

How much is your home worth?

Use our short form to request a valuation of your property.

Request a Valuation

Mortgage Calculator

Amount Borrowed: £
Total Amount Repayable: £
Total Monthly Payment: £
©2026 The Guild of Property Professionals. All rights reserved. Terms and Conditions | Privacy Policy | Cookie Policy | Complaints Policy | Members Login
The Guild of Property Professionals Trading Address: 121 Park Lane, London W1K 7AG. GPEA Limited. Registered in England & Wales.  Company No: 02819824.  Registered Office Address: 2 St. Stephen's Court, St. Stephen's Road, Bournemouth, Dorset, England, BH2 6LA.  VAT Registration No: 576 8795 61
Book a Property Valuation Update Cookies Preferences