Cock Street, Wymondham, NR18

Offers in region of
£400,000

3 Bedroom End of Terrace House for sale in Wymondham

3 3 1
  • Impressive grade II listed family home
  • Set across three floors boasting character throughout
  • Three double bedrooms with built in storage
  • 29ft kitchen/breakfast room
  • Spacious sitting room with feature fireplace and a separate dining room
  • Modern bathroom with downstairs wc
  • Large and private satellite garden to the rear
  • Single garage
  • Within a short walk to the town centre and all its amenties
  • See our full online listing for further details including flood risk, broadband speed and other material information.


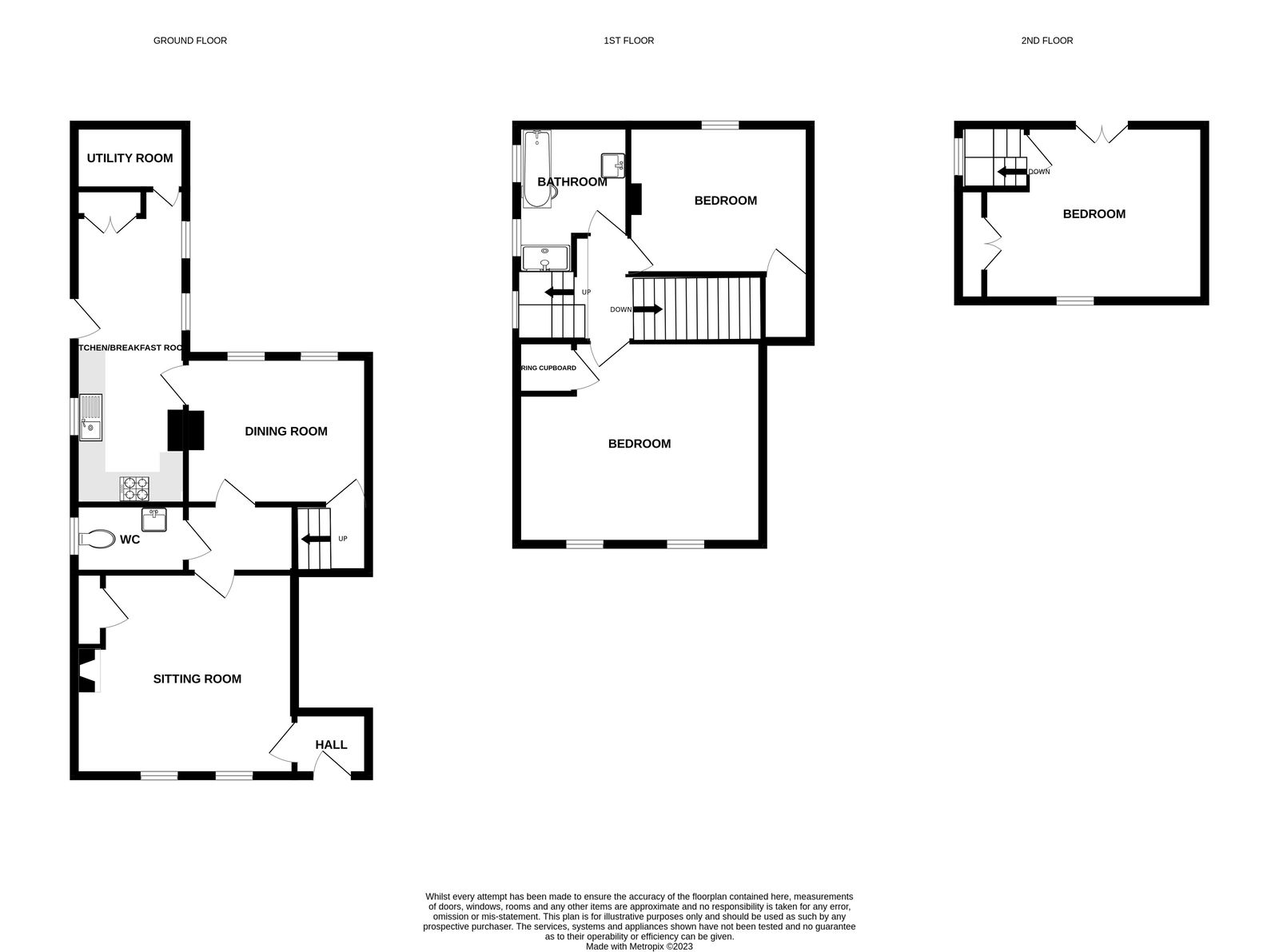
Moneyproperties are thrilled to bring to market this idyllic grade II listed family home boasting period features throughout and within a short walk from Wymondham town centre with all its amenities. This impressive home is set across three floors and benefits from a spacious satellite garden to the rear and a single garage. The accommodation comprises of an entrance hall, 16ft sitting room with feature fireplace, dining room, 28ft kitchen/breakfast room with separate utility and downstairs wc. To the first floor comes two generous double bedrooms with built in storage and a modern family bathroom with the third double bedroom located on the second floor. Must be viewed to avoid disappointment. Please note the property has a flying freehold. 



Entrance Hall - 1.35m x 1.24m (4'5" x 4'1")


Sitting Room - 4.83m x 4.06m (15'10" x 13'4")


Dining Room - 4.06m x 3.61m (13'4" x 11'10")


Kitchen/Breakfast Room - 8.66m x 2.46m (28'5" x 8'1")


Utility - 2.84m x 1.14m (9'4" x 3'9")


WC - 1.65m x 0.86m (5'5" x 2'10")


Bedroom One - 4.17m x 4.14m (13'8" x 13'7")


Bedroom Two - 4.09m x 3.61m (13'5" x 11'10")


Bathroom - 3.89m x 2.03m (12'9" x 6'8")


approx. L-shaped

Bedroom Three - 4.47m x 3.51m (14'8" x 11'6")


Garage - 4.5m x 2.34m (14'9" x 7'8")


AGENT’S NOTES -


Planning :  Details, if any, can be found on the South Norfolk Council Planning website.


Covenants, Rights and Restrictions:  Please enquire with the selling agents for any information.


Broadband :  FTTP -  See Ofcom checker and Openreach website for more details.


Mobile phone :  See Ofcom checker for coverage details.


Flood risk :  High risk surface,  Very Low risk rivers and seas according to Gov.uk website


Services :  Mains Gas, Electricity, Water and Sewage


Local authority :  Norfolk County Council and South Norfolk


Council Tax Band :  D


Tenure :  Freehold


EPC : E

Important Information

  • This is a Freehold property.
  • This Council Tax band for this property is: D

Property Ref: 680_547377

Share:

Similar Properties

Monarch Close, Wymondham, NR18

4 Bedroom Detached House | Offers in region of £400,000

Moneyproperties bring to market this spacious and detached four-bedroom family home located on a desirable residential d...

The Chimes, Mill Road, Hethersett, Norwich, Norfolk. NR9 3DR

3 Bedroom Detached House | Offers in region of £400,000

Moneyproperties are delighted to present The Chimes, New Road, Hethersett — offered with no onward chain and vacant poss...

Evora Road, Wymondham, NR18

4 Bedroom Detached House | £400,000

Moneyproperties bring to market this immaculately presented four-bedroom detached house ideally located within walking d...

Chapel Lane, Wymondham, Norfolk. NR18 0DL

3 Bedroom Bungalow | Offers Over £425,000

Moneyproperties proudly present this detached three / four bedroom bungalow being sold with no forward chain. The proper...

Mill Road, Hethersett, NR9

3 Bedroom Detached House | Offers in region of £425,000

Moneyproperties are delighted to bring to market this immaculately presented three-bedroom detached house that has been...

A bungalow on a small development at Downham Crescent, Wymondham, NR18 0SF

3 Bedroom Bungalow | Offers in region of £435,000

Moneyproperties proudly present this three bedroom detached bungalow for sale with no forward chain. The bungalow occupi...

Money Properties (Wymondham)

17/18 Market Place, Wymondham, Norfolk, NR18 0AX

01953 423 006

How much is your home worth?

Use our short form to request a valuation of your property.

Request a Valuation

Mortgage Calculator

Amount Borrowed: £
Total Amount Repayable: £
Total Monthly Payment: £
©2026 The Guild of Property Professionals. All rights reserved. Terms and Conditions | Privacy Policy | Cookie Policy | Complaints Policy | Members Login
The Guild of Property Professionals Trading Address: 121 Park Lane, London W1K 7AG. GPEA Limited. Registered in England & Wales.  Company No: 02819824.  Registered Office Address: 2 St. Stephen's Court, St. Stephen's Road, Bournemouth, Dorset, England, BH2 6LA.  VAT Registration No: 576 8795 61
Book a Property Valuation Update Cookies Preferences