St. Georges, Wicklewood, NR18

£550,000

5 Bedroom End of Terrace House for sale in Wymondham

2 5 2
  • Immaculate five double bedroom family home
  • Located in the popular St Georges development in Wicklewood
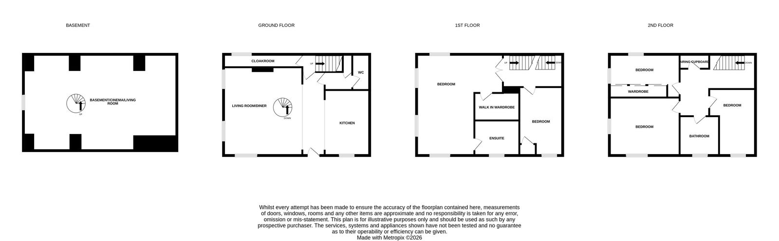
  • Accommodation set across four floors
  • Large versatile basement currently providing a study/cinema room
  • Boasting character throughout
  • Open plan kitchen/living area to the groundfloor
  • Secured development set in 5 acres of communal ground
  • Shared tennis court along with a swimming pool with jacuzzi & sauna
  • Allocated garage with ample off-road parking
  • See our full online listing for further details including flood risk, broadband speed and other material information.

Moneyproperties are thrilled to bring to market this immaculately presented five double bedroom end of terrace house located in the popular village of Wicklewood. Set across four floors and having recently been renovated by the current owners the property presents itself as the perfect family home. The accommodation comprises of a large versatile basement room currently being used as a movie room/study. To the ground floor comes a well-presented open plan kitchen/diner complete with integrated appliances which include a full height fridge/freezer, dishwasher, washing machine, two ovens, hob and extractor. There is also a wc located to the ground floor. To the first floor comes two generous bedrooms with bedroom one benefitting from a walk-in wardrobe and ensuite. The remaining three bedrooms are located on the second floor along with the well-presented family bathroom. Outside the property enjoys 5 acres of communal grounds along with a shared swimming pool and tennis court within the secured development. Further benefits include ample parking and an allocated garage. St. Georges is also located within close proximity to the sought after Wymondham College.

Basement/Cinema Room - 9.86m x 6.2m (32'4" x 20'4")


Ground Floor


Living Room/Diner - 5.54m x 5.05m (18'2" x 16'7")


Kitchen/Breakfast Room - 4.14m x 2.9m (13'7" x 9'6")


WC - 2.24m x 1.14m (7'4" x 3'9")


Cloakroom - 5.05m x 0.84m (16'7" x 2'9")


First Floor


Principal Bedroom - 6.58m x 5.54m (21'7" x 18'2")


Maximum measurement L-Shaped

Walk In Wardrobe - 2.97m x 2.06m (9'9" x 6'9")


Ensuite - 2.97m x 2.26m (9'9" x 7'5")


Bedroom - 4.44m x 3.38m (14'7" x 11'1")


Second Floor


Bedroom - 4.5m x 3.66m (14'9" x 12'0")


Bedroom - 4.5m x 2.79m (14'9" x 9'2")


Bedroom - 4.27m x 2.79m (14'0" x 9'2")


Bathroom - 2.54m x 2.51m (8'4" x 8'3")


Allocated parking with en bloc single garage


AGENT’S NOTES -


Planning :  Details, if any, can be found on the South Norfolk Council Planning website.


Covenants, Rights and Restrictions:  Please enquire with the selling agents for any information.


Broadband :  Superfast FTTC.  See Ofcom checker and Openreach website for more details.


Mobile phone :  See Ofcom checker for coverage details.


Flood risk :  Very Low risk surface, rivers and seas according to Gov.uk website


Services :  Mains electricity and water, community sewage plant and community LPG metered supply of LPG gas for the heating 


Local Authority :  Norfolk County Council and South Norfolk Council


Council Tax Band :  D


Tenure :  Leasehold 


EPC : D


FURTHER NOTES


Grade 2 listed, English heritage ID 226560


999 years lease started 1/1/88 – 961 years left


Ground rent £50pa


Annual service charge £2424pa - £202pm 


Management company - SGRA St Georges Wicklewood. Watsons, 18 Meridian Way Norwich NR7 0TA – 01603 226500

Important Information

  • This is a Leasehold property.
  • This Council Tax band for this property is: D

Property Ref: 680_1284506

Share:

Similar Properties

Bellrope Lane, Wymondham, Norfolk

4 Bedroom Bungalow | Offers in region of £525,000

Spacious 4/5 Bedroom Detached Bungalow on Generous 0.25 Acre Plot in Sought-After Historic Wymondham. Situated on the po...

High Street Wicklewood With Outstanding Primary School

3 Bedroom Detached House | Offers in region of £495,000

Moneyproperties are delighted to present this impressive detached four bedroom home, located in the highly sought-after...

Green Lane, Rockland All Saints, Attleborough, NR17 1UA

4 Bedroom Detached House | Offers in region of £495,000

Moneyproperties are pleased to present The Hollies, offered to the market with no forward chain, and located in the high...

Hackford Road, Wicklewood, NR18

4 Bedroom Bungalow | Offers in region of £575,000

Moneyproperties are delighted to be marketing this generous family home occupying a large plot in the popular village of...

Carrs Hill Close, Costessey, Norwich NR8 5DW

4 Bedroom Detached House | Offers in region of £575,000

A rare opportunity to acquire a spacious four-bedroom detached bungalow offered with no forward chain, allowing for a sw...

The Compasses, (a unique piece of Wymondham’s heritage) Burnthouse Lane, Silfield, Wymondham, NR18 9NP

3 Bedroom Detached House | Offers in region of £575,000

A rare opportunity to own a unique piece of Wymondham’s heritage, dating back to 1789. Formerly known as the Rule & Comp...

Money Properties (Wymondham)

17/18 Market Place, Wymondham, Norfolk, NR18 0AX

01953 423 006

How much is your home worth?

Use our short form to request a valuation of your property.

Request a Valuation

Mortgage Calculator

Amount Borrowed: £
Total Amount Repayable: £
Total Monthly Payment: £
©2026 The Guild of Property Professionals. All rights reserved. Terms and Conditions | Privacy Policy | Cookie Policy | Complaints Policy | Members Login
The Guild of Property Professionals Trading Address: 121 Park Lane, London W1K 7AG. GPEA Limited. Registered in England & Wales.  Company No: 02819824.  Registered Office Address: 2 St. Stephen's Court, St. Stephen's Road, Bournemouth, Dorset, England, BH2 6LA.  VAT Registration No: 576 8795 61
Book a Property Valuation Update Cookies Preferences