Horrabridge

Guide Price
£660,000
SSTC
This property listing is now SSTC

5 Bedroom Semi-Detached House for sale in YELVERTON

3 5 2

A beautiful semi-detached Victorian Villa offering spacious accommodation with an abundance of period features. Situated on the edge of Horrabridge, this property is set back from the road via a sweeping driveway, in an elevated position with some fantastic views across the Walkham Valley. 'West Park Villas' has been a happy family home for the last 40 years, with the owners retaining much of the original character of the house. The property offers flexible living accommodation so would suit a family looking for a large garden, in a semi-rural location close to local amenities.

Horrabridge is a pretty Dartmoor village with a ‘Good’ rated primary school and a good local bus service to Tavistock and Plymouth for secondary schools. Village amenities include two pubs, a takeaway, bakery and convenience shop, plus large playground and fields.

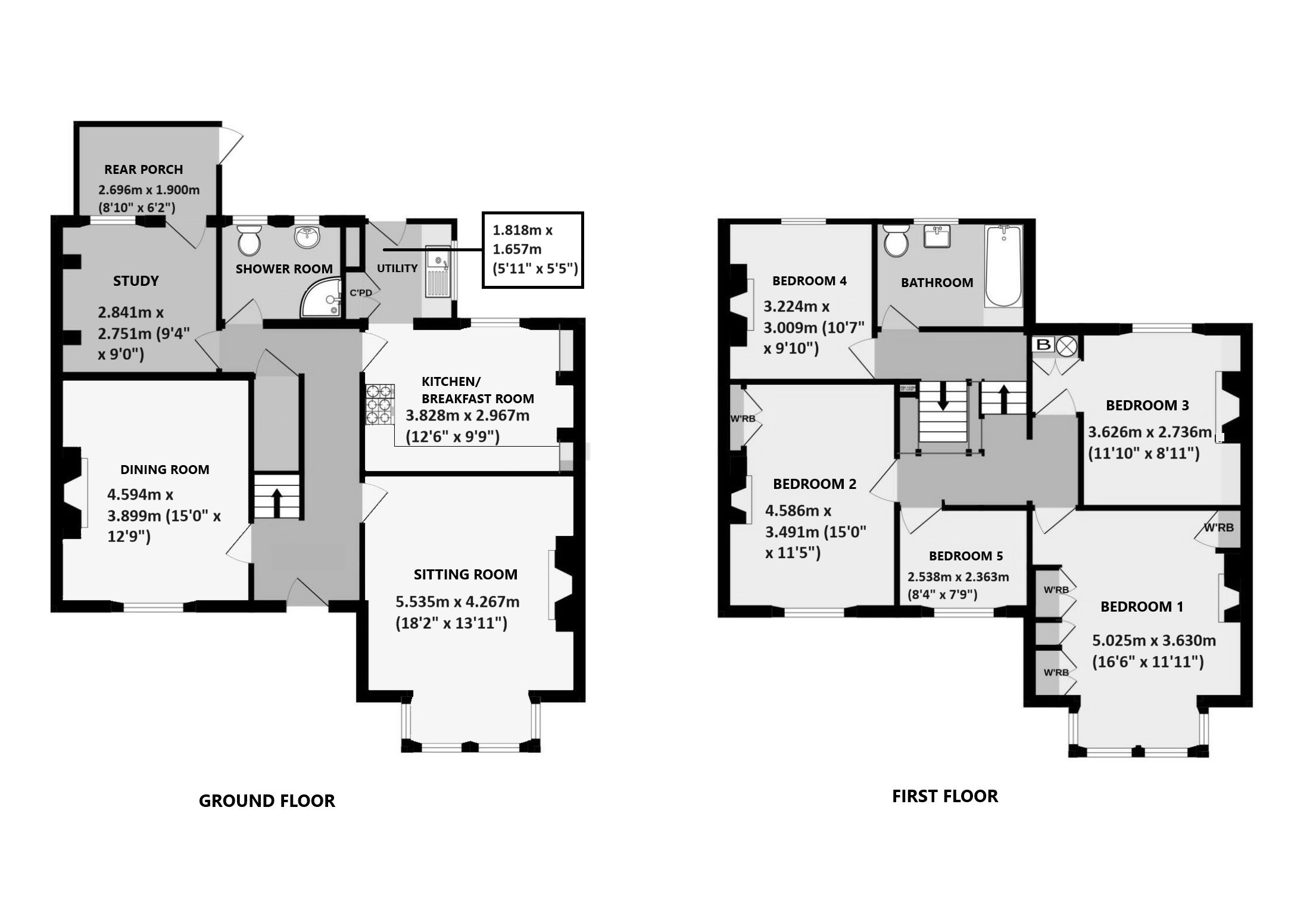
You enter to a grand entrance hall, with a turning staircase opening up to a galleried landing. To the right is a stunning sitting room with a marble fireplace and bay window overlooking the front garden. To the other side is the family dining room, which has another original fireplace and cornicing, with alcoves either side of the chimney breast for bookshelves. The kitchen is located at the rear with space for a range cooker and dining table, and plenty of fitted units. A useful utility room with additional storage leads out to the rear courtyard. Finally there is a third reception room/occasional bedroom on the ground floor which is conveniently located next to a shower room, ideal for any older relatives or older children. There is also a rear porch off this room, so it would make a great play/hobbies room for a larger family.

Upstairs the bedrooms are nicely arranged off various landing levels, first we come to bedroom four which has an attractive original fireplace and is next to the family bathroom. The bathroom has a three piece heritage style suite complimented by panelling. There are three further double bedrooms and a single bedroom which is currently equipped with bunk beds. The three bedrooms along the front all benefit from a lush green outlook and lovely views over the valley. The main bedroom is a beautifully bright room with a large bay window to sit in and soak up the sun, a perfect spot to sit and read whilst enjoying a morning coffee. Bedroom three is set up as a recording studio for any budding music producers!

 

Externally the gardens amount to just over half an acre with different spots to sit and take in the peaceful surroundings. Directly outside the front of the house is a small private lawned area with pretty borders and a sheltered picnic area under a mature Magnolia tree. Across the driveway is the main part of the garden which has a BBQ/seating area and a path taking you up to the upper part of the garden. Here you will find a large level lawn, previously a tennis court, with a greenhouse and more views. Children would love exploring the different areas, with plenty of trees to climb as well.  At the back of the house is a rustic courtyard and a useful double car port for storage. There is parking on the gravelled driveway for in excess of five cars.

Part glazed door to:

ENTRANCE HALL
Staircase to the first floor, coved ceiling, radiator, understairs cupboard.

SITTING ROOM
5.535m x 4.267m (18'2" x 13'11")
Box bay window to front with single glazed sash windows, feature open fireplace with surround tiled inset and hearth, radiator, coved ceiling and picture rail.

DINING ROOM
4.594m x 3.899m (15'0" x 12'9")
Window to front, open fireplace with surround, tiled inset and hearth, coved ceiling, picture rail, radiator.

STUDY
2.841m x 2.751m (9'4" x 9'0")
Window to rear, radiator, recess shelving, door to:

REAR PORCH
2.696m x 1.900m (8'10" x 6'2")
Clear corrugated roof, power and light Pvcu door to garden.           

SHOWER ROOM
White suite comprising corner shower cubicle with mains shower, low flush w.c, wash hand basin, two windows to rear, part panelled walls, radiator.

KITCHEN
3.828m x 2.967m (12'6" x 9'9")
Fitted base units and drawers under granite work surfaces, matching wall cupboards, tiled surrounds, window to rear, radiator, space for range cooker, doorway to:

UTILITY ROOM
1.818m x 1.657m (5'11" x 5'5")
Work surface with inset stainless steel sink unit with mixer tap and single drainer, plumbing and space for washing machine and  dishwasher under, stable door to garden, built in cupboards.

FIRST FLOOR HALF LANDING

BEDROOM FOUR
3.224m x 3.009m (10'7" x 9'10")
Window to rear, radiator, former cast iron fireplace.

BATHROOM
White suite comprising, panelled bath with mixer tap and shower attachment, glazed screen, wash hand basin with cupboard under, low flush w.c, wooden flooring, radiator, window to rear.

MAIN LANDING
Bookshelves, exposed wooden flooring, overhead cupboards.

MASTER BEDROOM
5.025m x 3.630m (16'6" x 11'11")
Box bay window to front, fitted wardrobes with louvre doors, former cast iron fireplace, radiator, recess cupboard, picture rail.

BEDROOM THREE
3.626m x 2.736m (11'10" x 8'11")
Window to rear, recess with airing cupboard housing gas central heating boiler and hot water cylinder, shelving, radiator.

BEDROOM TWO
4.586m x 3.491m (15'0" x 11'5")
Window to front, built in recess wardrobe, former cast iron fireplace, exposed wooden floors, radiator, picture rail.

BEDROOM FIVE
2.538m x 2.363m (8'4" x 7'9")
Window to front, radiator, picture rail.

CARPORT
4.942m x 4.733m (16'2" x 15'6")
Open fronted car port/store with stone walls and corrugated roof. 

EXTERNAL
The gardens amount to 0.57 acres and are mostly laid to lawn. To the front is a small private lawn with a mature Magnolia tree and picnic bench. A path from the driveway leads up to the middle garden, which has a BBQ/seating area and mature shrubs and trees. A sloped foot path leads to the upper garden which is a large level lawn previously used as a tennis court. Here is a greenhouse with water butts and views across the valley. There is parking for in excess of five cars on the gravelled driveway plus a double car port at the rear.

AGENTS NOTE
Please note the driveway has shared access from the road for the neighbouring property. There is also a 'right of way' for the next door property to use a wheelbarrow for garden waste.

SERVICES
Mains electric/gas/water/drainage.       

OUTGOINGS
We understand the property is in band 'F' for council tax purposes by internet enquiry with West Devon Borough Council.       

VIEWING
By appointment with Kirby Estate Agents on 01822 612010.

MOBILE AND BROADBAND COVERAGE
To check broadband and mobile phone coverage please visit Ofcom here:

ofcom.org.uk/phones-telecoms-and-internet/advice-for-consumers/advice/ofcom-checker

FLOOR PLAN DISCLAIMER
These plans are set out as a guideline only and should not be relied upon as a representation of fact. They are intended for information purposes only and are not to scale.      

TENURE
Freehold.          

PLEASE NOTE

Before any sale is formally agreed, we have a legal obligation under the Money Laundering regulations and Terrorist Financing Act 2017 to obtain proof of your identity and of your address, take copies and retain on file for five years and will only be used for this purpose.

We carry out this through a secure platform to protect your data. Each purchaser will be required to pay £20 upon an offer verbally being agreed to carry out these checks prior to the property being advertised as sale agreed.

 

We may refer buyers and sellers through our panel of Conveyancers. It is your decision whether you choose to use their services. Should you decide to use their services you should know that we would receive a referral fee of £150 from them for recommending you. As we provide them with a regular supply of work you benefit from a competitive price.

We also refer buyers and sellers to our Financial Advisers. It is your decision whether you choose to use their services. Should you decide to use any of their services you should be aware that we would receive a average referral fee of £200 from them for recommending you.

You are not under any obligation to use the services of any of the recommended providers, though should you accept our recommendation the provider is expected to pay us the corresponding referral fee.

Prior to a sale being agreed and solicitors instructed, prospective purchasers will be required to produce identification documents to comply with Money Laundering regulations.

what3words: subjects.mocking.submerge

Important Information

  • This is a Freehold property.
  • This Council Tax band for this property is: F

Property Ref: L799197

Share:

Similar Properties

Tavistock

5 Bedroom Detached House | Guide Price £550,000

Spacious DETACHED four bedroom home with a ONE BEDROOM ANNEX/SEPARATE ACCOMMODATION, short walk to MOORS, plenty of PARK...

Brentor, Tavistock

5 Bedroom Cottage | Guide Price £525,000

Beautifully presented 5 BEDROOM character cottage in BRENTOR, Dartmoor. In a private position, with ample GARDENS, PARKI...

Week, Tavistock

2 Bedroom Barn Conversion | £500,000

Impressive 2 BEDROOM Grade II Listed BARN CONVERSION on private complex with communal swimming pool and double garage

Week, Brentor

3 Bedroom Barn Conversion | Guide Price £675,000

Impressive THREE bedroom Grade II Listed BARN CONVERSION on a PRIVATE COMPLEX with COMMUNAL SWIMMING POOL, almost 8 ACRE...

Yelverton

4 Bedroom Detached House | Guide Price £850,000

A stunning ARCHITECTURALLY DESIGNED detached home with FAR REACHING DARTMOOR VIEWS, within walking distance to YELVERTON...

Kirby Estate Agents (Tavistock)

Rowden Wood Road, Pitts Cleave, Tavistock, Devon, PL19 0NU

01822 612010

How much is your home worth?

Use our short form to request a valuation of your property.

Request a Valuation

Mortgage Calculator

Amount Borrowed: £
Total Amount Repayable: £
Total Monthly Payment: £
©2026 The Guild of Property Professionals. All rights reserved. Terms and Conditions | Privacy Policy | Cookie Policy | Complaints Policy | Members Login
The Guild of Property Professionals Trading Address: 121 Park Lane, London W1K 7AG. GPEA Limited. Registered in England & Wales.  Company No: 02819824.  Registered Office Address: 2 St. Stephen's Court, St. Stephen's Road, Bournemouth, Dorset, England, BH2 6LA.  VAT Registration No: 576 8795 61
Book a Property Valuation Update Cookies Preferences