Barney Lane, Flaxton, York

£200,000
SSTC
This property listing is now SSTC

2 Bedroom Semi-Detached House for sale in York

1 2 1

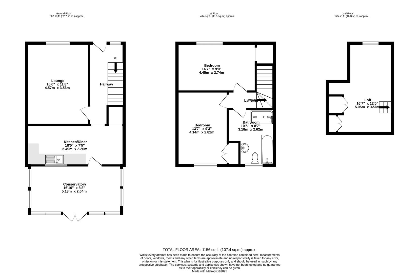
AN OPPORTUNITY TO PURCHASE THIS 2 BEDROOM END TOWN HOUSE WITH DRIVEWAY AND GARDENS TO FRONT AND REAR SET IN THIS CHARMING COMMUTER VILLAGE WITH EASY ACCESS IN TO YORK AND TO THE A64. The property which provides spacious living accommodation with great potential for extensions does require internal refurbishment but benefits from oil fired central heating and double glazing and comprises entrance hall. lounge, dining kitchen, conservatory, landing, 2 double bedrooms and bathroom/w.c. Additional fully boarded attic with window. Realistically priced.

Hallway - Entrance door, window to front, stairs to first floor. Doors to

Lounge - 4.57m x 3.56m (15' x 11'8") - Window to front, natural brick fireplace.

Kitchen/Diner - 5.49m x 2.13m (18' x 7'75") - Window to rear, understair storage cupboard, range of fitted base units. Door to

Conservatory - 5.13m x 2.64m (16'10" x 8'8") - French doors to rear garden

Bedroom 1 - 4.45m x 2.74m (14'7" x 9') - Window to front

Bedroom 2 - 4.14m x 2.82m (13'7" x 9'3") - Window to rear

House Bathroom - 3.18m x 2.62m (10'5" x 8'7") - Large bathroom with panelled bath, walk in shower, wash hand basin and w.c., window to rear.

Loft Space - 5.05m x 3.66m (16'7" x 12') - Accessed via a retractable ladder from the landing this fully boarded space has a window to front and could be used as occasional hobby room/office.

Property Ref: 564471_33998679

Share:

Similar Properties

Feversham Gate, Wigginton Road

2 Bedroom Apartment | Guide Price £200,000

A large 2 bedroom first floor apartment set in this modern development close to York Hospital and walking distance to th...

St. Oswalds Road, York

Marine Property | Offers Over £200,000

Churchills are delighted to have the opportunity to present to the market this 60-foot permanent mooring at Fulford Ings...

St. Helens Square, Market Weighton, York

2 Bedroom Terraced House | Guide Price £200,000

An impressive two-bedroom end of terrace period cottage located on this quiet street just off the main thoroughfare of t...

Gillygate, York

2 Bedroom Semi-Detached House | Guide Price £210,000

A 2 BEDROOM COTTAGE WITH VIEWS ACROSS THE CITY WALLS TOWARDS THE MINSTER SET IN THIS CENTRAL LOCATION ON A SHORT WALK TO...

Fulford Place, Hospital Fields Road

2 Bedroom Apartment | £215,000

A LARGE 2 BEDROOM SECOND FLOOR APARTMENT SET IN THIS SOUGHT AFTER LOCATION WITHIN WALKING DISTANCE FROM THE CITY CENTRE....

Principal Rise, Dringhouses

2 Bedroom Apartment | Guide Price £215,000

IDEAL FIRST TIME BUY OR INVESTMENT! A modern ground floor two double bedroom apartment, well presented throughout and pr...

Churchills Estate Agents (York)

Bishopthorpe Road, York, Yorkshire, YO23 1NA

01904 646611

How much is your home worth?

Use our short form to request a valuation of your property.

Request a Valuation

Mortgage Calculator

Amount Borrowed: £
Total Amount Repayable: £
Total Monthly Payment: £
©2025 The Guild of Property Professionals. All rights reserved. Terms and Conditions | Privacy Policy | Cookie Policy | Complaints Policy | Members Login
The Guild of Property Professionals Trading Address: 121 Park Lane, London W1K 7AG. GPEA Limited. Registered in England & Wales.  Company No: 02819824.  Registered Office Address: 2 St. Stephen's Court, St. Stephen's Road, Bournemouth, Dorset, England, BH2 6LA.  VAT Registration No: 576 8795 61
Book a Property Valuation Update Cookies Preferences