9 Lime Chase, Kirkbymoorside, York YO62 6BX

Guide Price
£225,000
SSTC
This property listing is now SSTC

3 Bedroom Detached Bungalow for sale in York

1 3 1
  • RENOVATION PROJECT
  • DETATCHED BUNGALOW
  • SOUGHT AFTER LOCATION
  • GARAGE
  • THREE BEDROOMS
  • NO ONWARD CHAIN

LOCATION
Kirkbymoorside is a picturesque and historic market town situated on the southern edge of the North York Moors National Park. With its charming stone buildings, welcoming community, and rich heritage, it offers a wonderful mix of rural peace and everyday convenience. The town hosts a weekly market and boasts a variety of independent shops, traditional pubs, cafes, and essential amenities including a primary school and health centre.

Perfect for those seeking a slower pace of life, Kirkbymoorside is surrounded by stunning countryside, ideal for walkers, cyclists, and nature lovers. Excellent transport links connect the town to Helmsley, Pickering, and further afield to York and the coast. The combination of natural beauty, a strong sense of community, and access to local services makes Kirkbymoorside a highly desirable place to live for families, retirees, and holiday-home seekers alike.

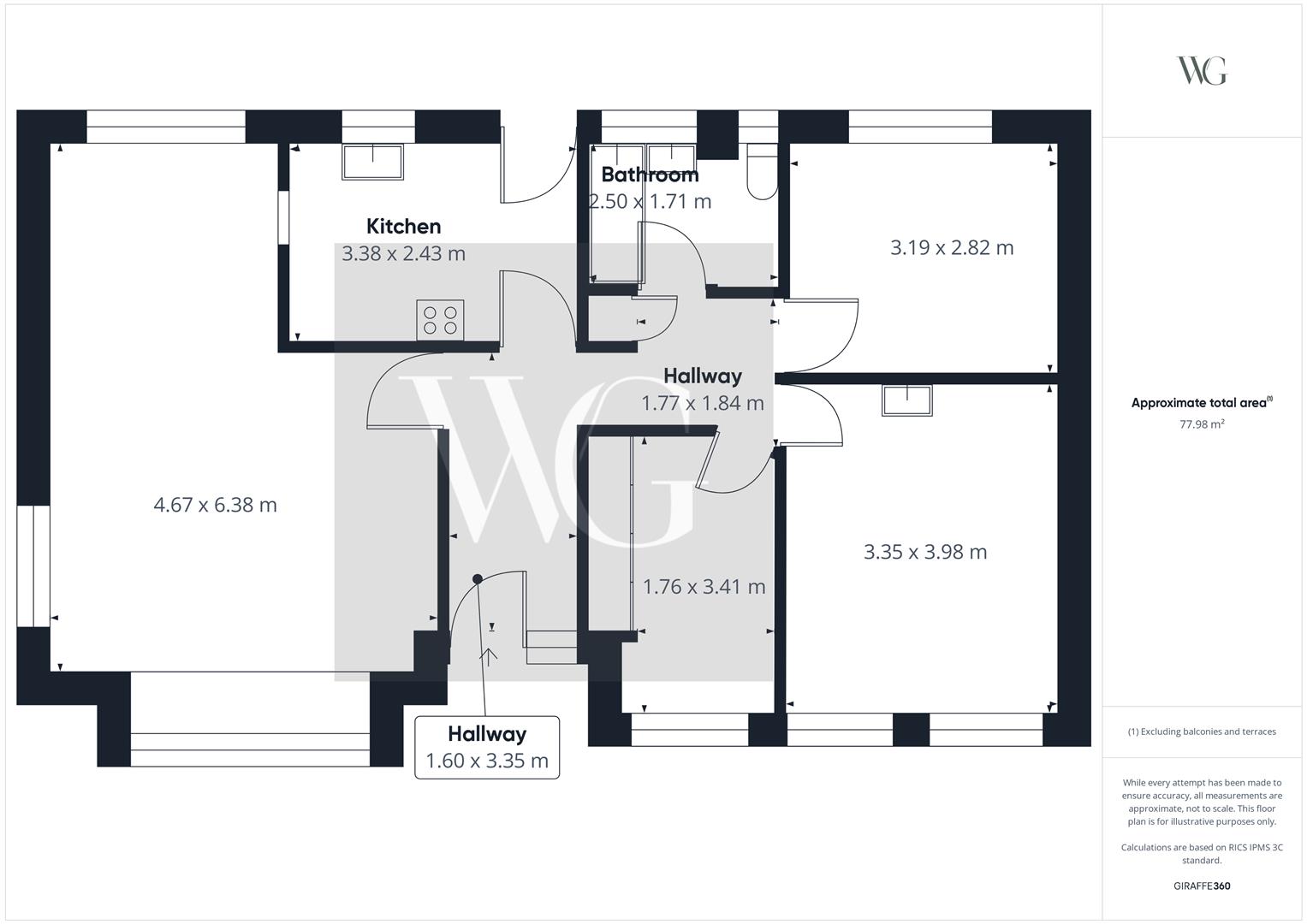
LIVING ROOM
4.67m x 6.38m (15'3" x 20'11" )

KITCHEN
3.38m x 2.43m (11'1" x 7'11")

BATHROOM
2.5m x 1.71m (8'2" x 5'7")

BEDROOM 1
3.35m x 3.98m (10'11" x 13'0")

BEDROOM 2
3.19m x 2.82m (10'5" x 9'3")

BEDROOM 3
1.76m x 3.41m (5'9" x 11'2")

HALLWAY

EPC TBA

COUNCIL TAX BAND D

Property Ref: 29709_33848615

Share:

Similar Properties

55 Sutton Street, Norton, YO17 9AW

3 Bedroom Semi-Detached House | Guide Price £225,000

Located on the desirable Sutton Street, just off Langton Road in Norton, this well-proportioned three-bedroom semi-detac...

9 Lime Chase, Kirkbymoorside, York YO62 6BX

3 Bedroom Detached Bungalow | Guide Price £225,000

Exciting Renovation Opportunity in the Heart of Kirkbymoorside - Detached 3-Bedroom Bungalow on Generous PlotNestled in...

55 Sutton Street, Norton, YO17 9AW

3 Bedroom Semi-Detached House | Guide Price £225,000

Located on the desirable Sutton Street, just off Langton Road in Norton, this well-proportioned three-bedroom semi-detac...

17 Beckside, Norton, Malton, YO17 8AR

3 Bedroom Semi-Detached House | Guide Price £230,000

Vacant, chain-free three-bed semi with en-suite master, family bathroom, spacious lounge, kitchen/diner, guest cloakroom...

42 Dairy Way, Norton, Malton, YO17 9FA

2 Bedroom Semi-Detached House | Guide Price £230,000

Well-kept two-bedroom home in a quiet location with lounge, kitchen, cloakroom, two double bedrooms, bathroom, garden, o...

75 Headland Rise, Malton, YO17 7PR

2 Bedroom Semi-Detached House | Guide Price £230,000

Immaculate two bedroom home in Malton, close to town centre. Modern kitchen, stylish bathroom, private gardens, parking,...

Willowgreen Estate Agents (Malton)

Malton, North Yorkshire, YO17 7LY

01653 916600

How much is your home worth?

Use our short form to request a valuation of your property.

Request a Valuation

Mortgage Calculator

Amount Borrowed: £
Total Amount Repayable: £
Total Monthly Payment: £
©2026 The Guild of Property Professionals. All rights reserved. Terms and Conditions | Privacy Policy | Cookie Policy | Complaints Policy | Members Login
The Guild of Property Professionals Trading Address: 121 Park Lane, London W1K 7AG. GPEA Limited. Registered in England & Wales.  Company No: 02819824.  Registered Office Address: 2 St. Stephen's Court, St. Stephen's Road, Bournemouth, Dorset, England, BH2 6LA.  VAT Registration No: 576 8795 61
Book a Property Valuation Update Cookies Preferences