Pasture Court, Main Street, Thorganby, York

£465,000
SSTC
This property listing is now SSTC

3 Bedroom Semi-Detached House for sale in York

2 3 3

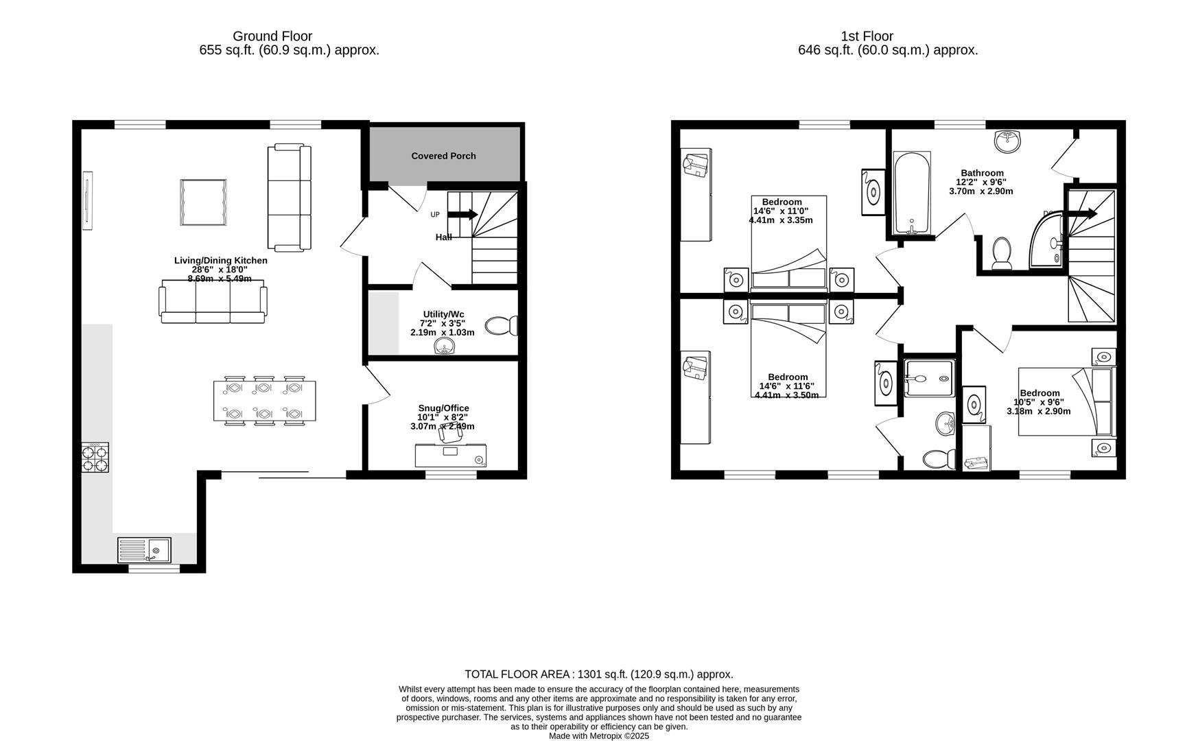
STUNNING CONTEMPORARY NEW BUILD. Set within this exclusive courtyard development located in this popular village within Fulford school catchment and with easy access in to York this property is one of four individual properties built to a high standard with modern architectural detail. These eco friendly properties benefit from high levels of insulation coupled with air source heating system and pv solar panels and car ev chargers. With open front aspect the property comprises entrance hall, utility/w.c., large open plan living room with lounge and dining areas and kitchen with quality fitted units and integrated appliances, study/snug, landing, 3 bedrooms, master with en suite shower room/w.c., family bathroom/w.c. Front garden with parking for 2 cars. Good sized lawned rear garden. Additional visitor parking spaces.

New Homes List - Plot 1 �465,000
Plot 2 �495,000
Plot 3 �850,000 SOLD
Plot 4 �820,000

Hall - Entrance door, stairs to first floor. Doors to

Utility/W.C - Plumbing for washing machine, wash hand basin, w.c.

Open Plan Living Room - Bright and spacious open plan living area with sitting area to front, dining area to rear with sliding doors to garden,

Kitchen Area - Quality shaker style fitted units with integrated appliance including oven and hob, fridge/freezer and dishwasher.

Study/Snug - Window to rear

Landing - Doors to

Bedroom 1 - Large master bedroom with windows to rear

En Suite - Walk in shower cubicle, wash hand basin and w.c.

Bedroom 2 - Double sized bedroom with window to rear

Bedroom 3 -

Bathroom - Three piece white suite including panelled bathe, wash hand basin, w.c

Note - All sizes and room layouts are provided by the developer and may be subject to change during the builder.

Property Ref: 564471_34062399

Share:

Similar Properties

The Cranbrooks, Wheldrake

3 Bedroom Detached Bungalow | Offers Over £465,000

A HIGH QUALITY EXTENDED 3 BEDROOM DETACHED BUNGALOW SET ON A GOOD SIZED PRIVATE PLOT CLOSE TO THE CENTRE OF THIS HIGHLY...

Vyner Street, Haxby Road

5 Bedroom Terraced House | Guide Price £465,000

SUPERB INVESTMENT OPPORTUNITY!! 5 LETTING BEDROOMS WITHIN THIS LARGE PERIOD HOUSE WITH REAR GARDEN. Set in this popular...

Grantham Drive, York

3 Bedroom Semi-Detached House | Guide Price £465,000

NO ONWARD CHAIN. A well cared for three bedroom semi-detached house with good size garden room/studio, located within th...

New Lane, Holgate, York

4 Bedroom Semi-Detached House | Guide Price £475,000

NO ONWARD CHAIN AND OPEN TO OFFERS - AN EXTENDED FOUR BEDROOM SEMI DETACHED HOUSE CLOSE TO WEST BANK PARK & HOLGATE WIND...

White House Rise, Off Tadcaster Road

3 Bedroom Semi-Detached House | Guide Price £475,000

NO ONWARD CHAIN! A quality extended 3 bedroom semi-detached property located on this quiet and pretty cul-de-sac just of...

Nunmill Street, York

3 Bedroom Terraced House | Guide Price £475,000

An exemplary three bedroom period terrace house extended and arranged over three floors to the highest of standards with...

Churchills Estate Agents (York)

Bishopthorpe Road, York, Yorkshire, YO23 1NA

01904 646611

How much is your home worth?

Use our short form to request a valuation of your property.

Request a Valuation

Mortgage Calculator

Amount Borrowed: £
Total Amount Repayable: £
Total Monthly Payment: £
©2025 The Guild of Property Professionals. All rights reserved. Terms and Conditions | Privacy Policy | Cookie Policy | Complaints Policy | Members Login
The Guild of Property Professionals Trading Address: 121 Park Lane, London W1K 7AG. GPEA Limited. Registered in England & Wales.  Company No: 02819824.  Registered Office Address: 2 St. Stephen's Court, St. Stephen's Road, Bournemouth, Dorset, England, BH2 6LA.  VAT Registration No: 576 8795 61
Book a Property Valuation Update Cookies Preferences