The Old Post Office, Wheldrake, York

£925,000

6 Bedroom Detached House for sale in York

4 6 3
  • Large Georgian Grade 11 Listed Property
  • 5/6 Bedroom Set In Large Gardens with Open Views to Rear
  • Highly Sought After Village
  • Within Fulford School Catchment
  • An Abundance of Character
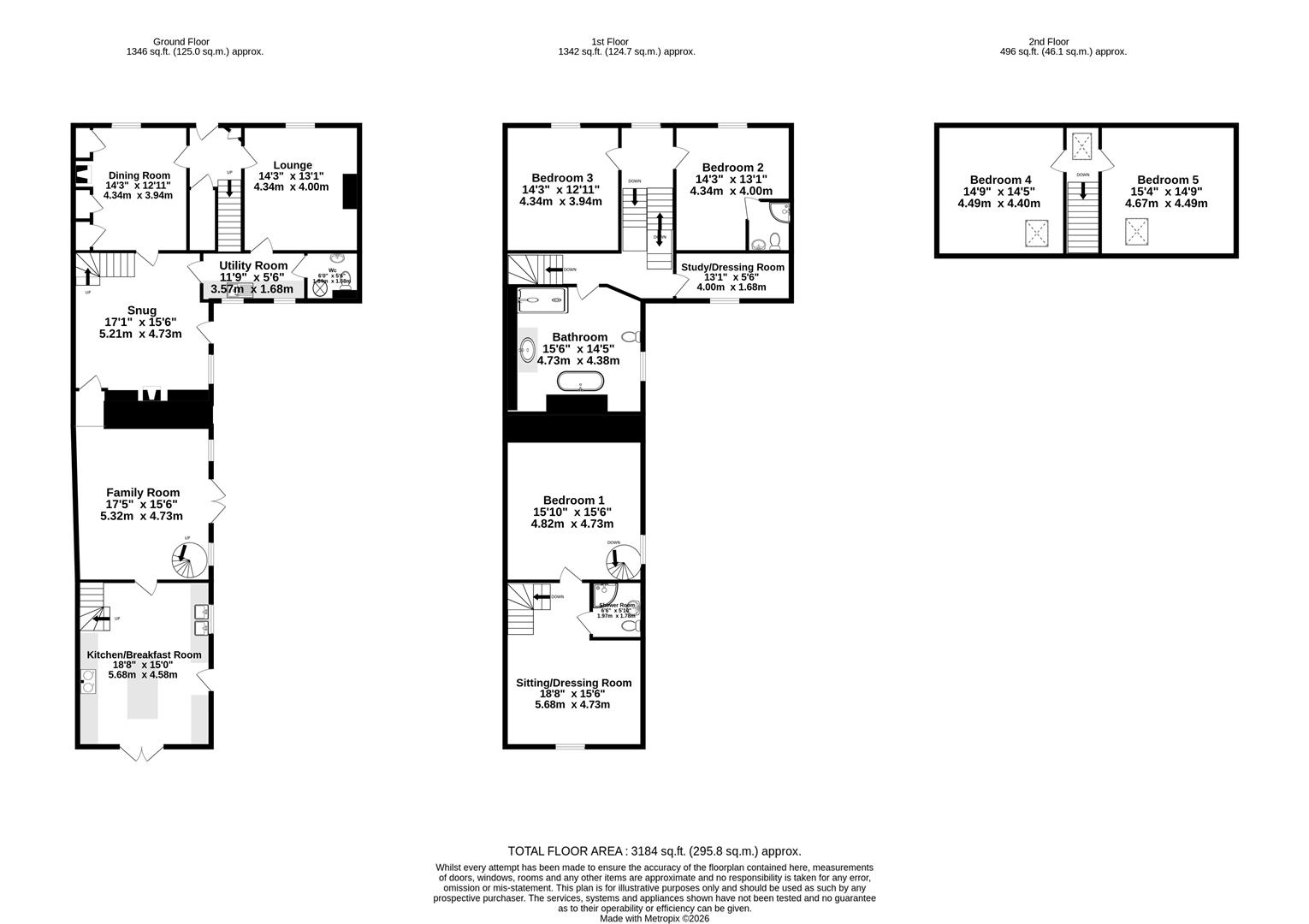
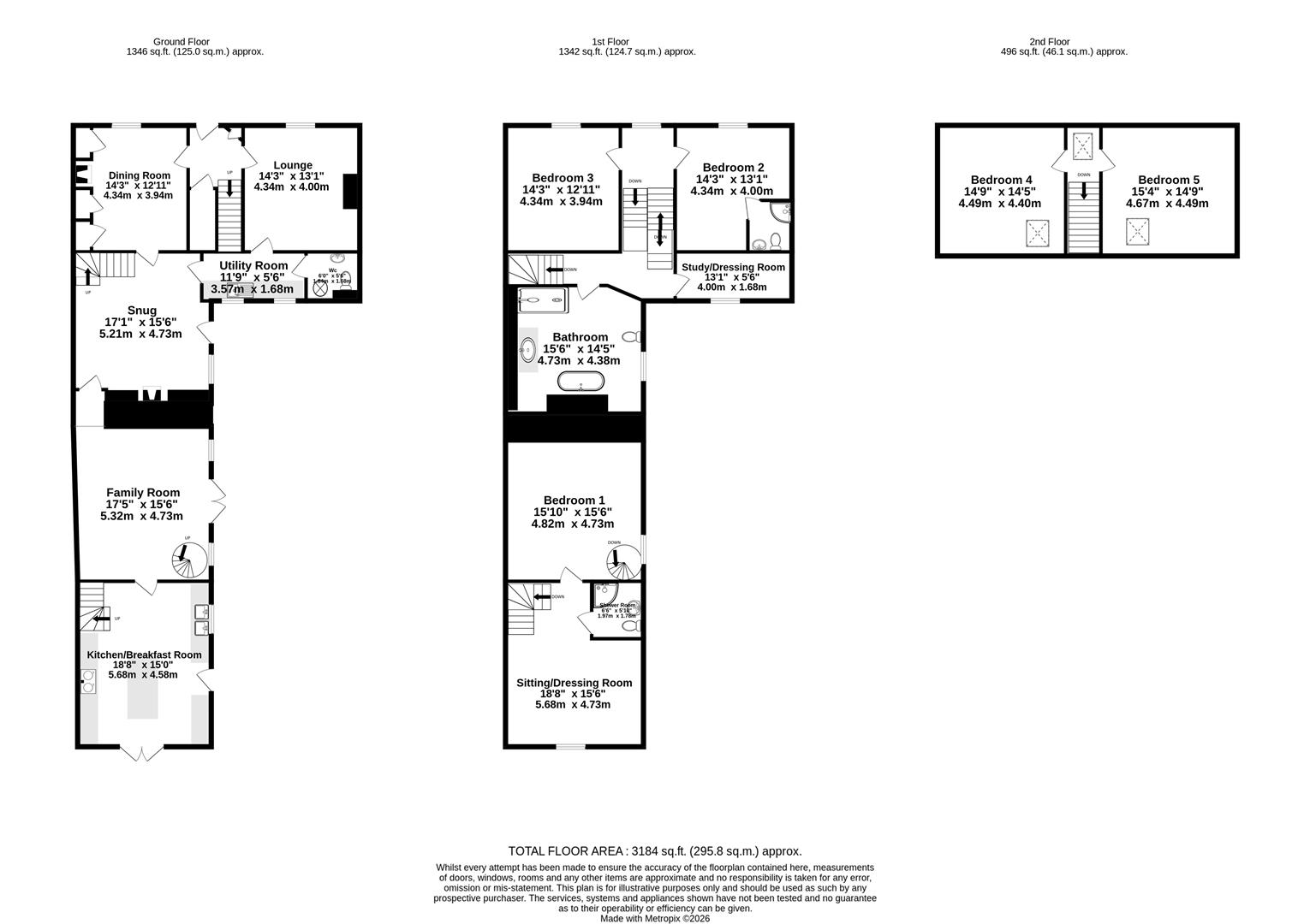
  • Extremely Spacious Over 3200 sq ft
  • Large Stores, Feature Summerhouse, Office/Gym
  • Council Tax Band E

A FABULOUS LARGE PERIOD GRADE 11 LISTED 5/6 BEDROOM GEORGIAN HOUSE SET IN LARGE GARDENS ON THE MAIN STREET OF THIS HIGHLY SOUGHT AFTER VILLAGE WITHIN FULFORD SCHOOL CATCHMENT AND EASY ACCESS TO YORK CITY CENTRE.
The property has an abundance of character throughout with feature ceiling beams and provides extremely spacious living accommodation of 3200 sq ft comprising entrance hall, cloaks/w.c., sitting room, snug, family room, dining room, large breakfast kitchen with high quality handmade kitchen with feature centre island and Everhot cooking stove, utility room, first floor, master bedroom suite with shower room and living/dressing room/office, 2 further bedrooms, study and large bathroom with feature exposed brick wall, freestanding bath and separate shower, second floor landing with 2 further bedrooms. Externally there is a large driveway and parking area,. annexe providing a fully insulated office/gym or bedroom, along with large stores and feature summerhouse all leading to large lawned gardens with open views to rear.
An internal viewing is strongly recommended.

Note - This superb Georgian property is Grade 11 listed and sits on the highly sought after Main Street of Wheldrake near to the Church and close to the local shop and public house with the primary school within a few minutes walk. The property was formerly the Old Post office and doctors surgery and has been reconverted and lovingly restored in to a large family home by the present owners.

Hallway - Stairs to first floor, understair storage cupboard. Doors to

Lounge - 4.34m x 3.99m (14'3" x 13'1") - Window to front with shutters, ceiling cornicing

Dining Room - 4.34m x 3.94m (14'3" x 12'11") - Window to front with shutters, Franco log burner, old bread warming cupboards, ornate cast radiator, cupboards to alcoves. Solid wood flooring

Snug - 5.31m x 4.72m (17'5" x 15'6") - Window to side, stairs to first floor, period fireplace housing cast iron stove, understairs storage cupboard

Family Room - 5.21m x 4.72m (17'1" x 15'6") - Windows to side , french doors to garden, exposed wooden ceiling and beams, built-in bespoke bookcase/Tv cabinet, spiral stairs to first floor. Door to

Breakfast Kitchen - 5.69m x 4.57m (18'8" x 15') - High quality handmade kitchen units with base, wall and larder units, centre island, quartz work surfaces, Belfast sink units, Everhot stove, window to side and french doors to garden.

Utility Room/Boot Room - Base units with Belfast sink, plumbing for washing machine

Cloaks/W.C - Wash hand basin and w.c

First Floor -

Master Bedroom Suite -

Bedroom - 4.83m x 4.72m (15'10" x 15'6") - Large bedroom with feature ceiling beams. Oak floor

Shower/W.C -

Sitting/Dressing Room/ - 5.69m x 4.72m (18'8" x 15'6") - Window to rear, ceiling beams. Oak floor

Bedroom 2 - 4.34m x 3.94m (14'3" x 12'11") - Window to front, ceiling beam, period fireplace. Stripped wood floor. EN SUITE SHOWER ROOM/W.C

Bedroom 3 - 4.34m x 3.99m (14'3" x 13'1") - Window to front, ceiling beam built in cupboards, period fireplace. Stripped wood floor.

Study/Dressing Room - 3.99m x 1.68m (13'1" x 5'6") - Window to rear

Bathroom - 4.72m x 4.39m (15'6" x 14'5") - Fabulous large family bathroom with feature exposed walls, free standing bath, large vanity unit housing basin, w.c., large walk in shower, towel rail, ornate cast iron radiator

Second Floor -

Bedroom 4 - 4.50m x 4.39m (14'9" x 14'5") - Conservation velux to rear, exposed ceiling and wall beams, built in cupboards, cast iron radiator

Bedroom 5 - 4.67m x 4.50m (15'4" x 14'9") - Conservation velux window to rear, exposed wall and ceiling beams.

Outbuildings - There are a range of outbuildings including a full insulated room which would make an ideal office, gym or annexe bedroom. A summerhouse with large external decked terrace and veranda along with a large metal store/garage and timber sheds plus brick store and log store..

Parking - A block paved driveway leads to an ample parking area with electric car charging point.

Garden - The garden area extends to aproximately 175 ft mainly laid to lawn with small orchard area and open views to rear.

Agents Notea: - To be able to purchase a property in the United Kingdom all agents have a legal requirement to conduct Identity checks on all customers involved in the sales transaction to fulfil their obligations under Anti Money Laundering regulations. A charge to carry out these checks will apply. Please ask our office for further details

Property Ref: 34420667

Share:

Similar Properties

Boroughbridge Road, Green Hammerton, York

4 Bedroom Detached House | Guide Price £850,000

AN EXCELLENT OPPORTUNITY TO ACQUIRE AN ECO FRIENDLY DETACHED 4 BEDROOMED FAMILY HOME OF APROX 2200 SQ FT BUILT TO A HIGH...

Telford Terrace, York

5 Bedroom Terraced House | Guide Price £825,000

Situated on one of York's most sought after and exclusive streets with views over Scarcroft allotments and towards Littl...

Haggwood Barn, Broad Highway, Wheldrake, York

4 Bedroom Barn Conversion | £825,000

A STUNNING 4 BEDROOM BARN CONVERSION SET IN LARGE GARDENS WITHIN A SMALL DEVELOPMENT CLOSE TO WHELDRAKE WOODS YET WITH A...

Gillcroft, Tadcaster Road

6 Bedroom Semi-Detached House | Guide Price £950,000

Overlooking The Knavesmire, Gillcroft is a substantial period property on York's prestigious Tadcaster Road.We believe t...

The Old Manor, Leppington

6 Bedroom Detached House | Guide Price £1,250,000

ONE OF THE AREA'S MOST STUNNING LARGE MODERN CONTEMPORARY FAMILY HOMES WITH OVER 6300 SQ FT OF LIVING SPACE SET IN APPRO...

Churchills Estate Agents (York)

Bishopthorpe Road, York, Yorkshire, YO23 1NA

01904 646611

How much is your home worth?

Use our short form to request a valuation of your property.

Request a Valuation

Mortgage Calculator

Amount Borrowed: £
Total Amount Repayable: £
Total Monthly Payment: £
©2026 The Guild of Property Professionals. All rights reserved. Terms and Conditions | Privacy Policy | Cookie Policy | Complaints Policy | Members Login
The Guild of Property Professionals Trading Address: 121 Park Lane, London W1K 7AG. GPEA Limited. Registered in England & Wales.  Company No: 02819824.  Registered Office Address: 2 St. Stephen's Court, St. Stephen's Road, Bournemouth, Dorset, England, BH2 6LA.  VAT Registration No: 576 8795 61
Book a Property Valuation Update Cookies Preferences