High Street, Whixley, York

Guide Price
£775,000

3 Bedroom Detached House for sale in York

3 2

A well presented three - bedroom detached property with an extensive mature south facing garden, adjacent to open country side, situated in the desirable village of Whixley, located between Harrogate and York, with excellent access to the A1 Motorway.The property enjoys a peaceful village setting while being conveniently placed for commuters and well-served by nearby towns. One of the property's key features is its attractive and generous rear garden, offering a private and picturesque outdoor space.

The property offers spacious and flexible living accommodation with multiple reception areas, modern kitchen and bathroom fittings, and pleasant countryside views. The well-maintained garden includes lawn, mature planting, rockeries, and fruit trees, making it ideal for keen gardeners and outdoor entertaining. With driveway parking, garage, and additional utility space, this home is perfectly suited for a wide range of buyers seeking village living.

 

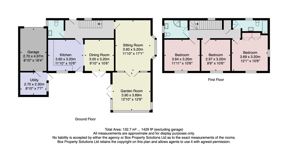
ACCOMMODATION GROUND FLOOR
RECEPTION HALL
Entered via an attractive oak porch and front door.

CLOAKROOM
Fitted with WC and basin.

DINING KITCHEN
With space for a dining area and glazed doors leading to the garden. The kitchen is fitted with a range of units with granite worktops and an electric-fired Aga.

SITTING ROOM
A spacious reception room with fireplace and living flame gas fire. Bay window to the side.

GARDEN ROOM
An extended living area with windows on three sides overlooking the garden and patio doors opening onto the garden.

FIRST FLOOR
BEDROOM ONE
A double bedroom with fitted wardrobes and windows to two sides.

BEDROOM TWO
A further good-sized double bedroom.

BEDROOM THREE
A further good-sized bedroom, currently used as an office.

BATHROOM
A modern white suite comprising WC, basin set within a vanity unit, and bath with shower above.

SHOWER ROOM
A modern white suite comprising WC, basin, and shower.
 

OUTSIDE An in-and-out driveway provides ample parking and leads to a single garage. To the rear of the garage is an attached utility room with sink and space/plumbing for a washing machine and tumble dryer. The property enjoys generous and attractive gardens to the rear with lawn, mature and well-stocked planted borders, rockeries, and fruit trees. There are also patio areas, a timber garden shed, and a greenhouse. The garden enjoys a delightful outlook over surrounding fields. 

AGENTS NOTE The property has oil-fired central heating, an electric Aga, and a gas fire in the sitting room. 

Property Ref: 56568_100470029004

Share:

Similar Properties

Fulwith Road, Harrogate

4 Bedroom Detached House | Offers Over £750,000

A spacious and well-presented four-bedroom detached property occupying a generous plot, having a driveway, integral doub...

Leeds Road, Harrogate

4 Bedroom Detached House | Offers Over £750,000

A substantial four-bedroom detached home with a large garden, situated in this popular and convenient location on the so...

Hookstone Drive, Harrogate

5 Bedroom Semi-Detached House | Offers Over £750,000

* 360 3D Virtual Walk-Through Tour *A characterful and individual five-bedroom semi-detached family home situated in a p...

Barnwell Crescent, Harrogate

5 Bedroom Detached House | Offers Over £780,000

A spacious and well-presented five-bedroomed family home situated in this popular and quiet south Harrogate location wit...

Renton Close, Bishop Monkton, North Yorkshire

4 Bedroom Detached House | £795,000

* 360 3D Virtual Walk-Through Tour *A spacious and beautifully presented four-bedroom detached house tucked away in the...

Clapham Green, High Birstwith, Harrogate

3 Bedroom Barn Conversion | £795,000

A beautifully presented and characterful three-bedroomed barn conversion situated in a picturesque location enjoying stu...

Verity Frearson (Harrogate)

Harrogate, North Yorkshire, HG1 1JT

01423 562 531

How much is your home worth?

Use our short form to request a valuation of your property.

Request a Valuation

Mortgage Calculator

Amount Borrowed: £
Total Amount Repayable: £
Total Monthly Payment: £
©2026 The Guild of Property Professionals. All rights reserved. Terms and Conditions | Privacy Policy | Cookie Policy | Complaints Policy | Members Login
The Guild of Property Professionals Trading Address: 121 Park Lane, London W1K 7AG. GPEA Limited. Registered in England & Wales.  Company No: 02819824.  Registered Office Address: 2 St. Stephen's Court, St. Stephen's Road, Bournemouth, Dorset, England, BH2 6LA.  VAT Registration No: 576 8795 61
Book a Property Valuation Update Cookies Preferences