Newland Park Drive, Hull Road

Guide Price
£325,000
SSTC
This property listing is now SSTC

4 Bedroom Semi-Detached House for sale in York

2 4 1
  • No Onward Chain
  • 4 Bed Semi-Detached
  • Popular Residential Street
  • Convenient for York City Centre
  • In Need of Some Cosmetic Upgrading
  • Council Tax Band C
  • EPC C71

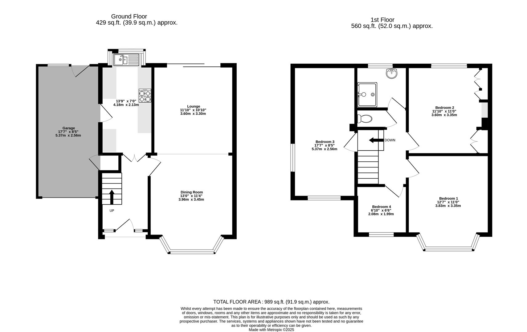
NO ONWARD CHAIN! An extended, traditional style four bedroom semi-detached home located on this popular residential street convenient for York city centre, the University and the outer ring road. Although in need of some cosmetic updating the house has the added benefit of double glazing, recently upgraded kitchen and gas central heating. The living accommodation fully comprises entrance hallway, through lounge/dining room with bay window, 14' kitchen, first floor landing, four bedrooms (three doubles and one single) and a three piece house shower room. To the outside is a front driveway providing off street parking and with the potential for electric car charging, landscaped front and rear gardens. The integral garage (17'7 x 8'5) has power and lighting and door to garden. An internal viewing is strongly recommended

Entrance Hallway - Entrance door, stairs to first floor, single panelled radiator, power points. Carpet.

Dining Room - uPVC bay window to front, coving, single panelled radiator, power points. Carpet.

Lounge - Sliding doors onto garden, coving, single panelled radiator, TV point, power points. Carpet.

Kitchen - uPVC window to rear, fitted wall and base units with Shaker-style fronts, one and a half stainless steel sink with draining board and mixer tap, double eye level oven, gas hob, slimline dishwasher, power points. Laminate flooring.

First Floor Landing - Access to loft space. Carpet. Doors to:

Bedroom 1 - uPVC bay window to front, fitted wardrobes, double panelled radiator, power points. Carpet.

Bedroom 2 - uPVC bay window to rear, fitted wardrobes, single panelled radiator, power points, wall mounted combination boiler. Carpet.

Bedroom 3 - Two uPVC windows to front and side, double panelled radiator, power points. Carpet.

Bedroom 4 - uPVC window to front, single panelled radiator, power points. Carpet.

Shower/Wet Room - uPVC opaque window to rear, fully tiled walk-in wet room, pedestal wash hand basin, double panelled radiator, extractor fan.

Separate Wc - Low level WC.

Outside - Front driveway with small landscaped garden. Rear garden with outside tap.

Integral Garage - Up and over door, power and lighting. Door and window to rear and plumbing for washing machine.

Property Ref: 33701036

Share:

Similar Properties

Cundall Close, Strensall, York

3 Bedroom Semi-Detached House | Guide Price £325,000

Situated in a quiet cul-de-sac in the popular village of Strensall, this beautifully presented three-bedroom semi-detach...

Manor Drive, Dunnington, York

3 Bedroom Semi-Detached House | Offers Over £325,000

NO ONWARD CHAIN - A SPACIOUS THEEE BEDROOM SEMI-DETACHED HOUSE SET ON A GOOD PLOT in a cul-de-sac position, just off the...

Main Street, Askham Bryan, York

3 Bedroom Semi-Detached House | Guide Price £325,000

NO ONWARD CHAIN! Located in the centre of this highly sought after village within easy reach of York City Centre and the...

Alma Terrace, Fulford

3 Bedroom Terraced House | Offers in region of £330,000

NO ONWARD CHAIN! A THREE BEDROOM FORECOURTED PERIOD TOWN HOUSE SET IN THIS HIGHLY SOUGHT AFTER STREET IN THIS POPULAR LO...

Chaloners Road, York

4 Bedroom Terraced House | Guide Price £330,000

AN EXTENDED 4 BEDROOM FAMILY HOME SET IN THIS POPULAR RESIDENTIAL AREA CLOSE TO LOCAL AMENITIES AND EASY ACCESS TO THE A...

Fern Street, Lord Mayors Walk

3 Bedroom Terraced House | Guide Price £330,000

NO ONWARD CHAIN - Fabulous spacious two bed end terrace WITH SELF CONTAINED ANNEX!!!! Located on this quiet residential...

Churchills Estate Agents (York)

Bishopthorpe Road, York, Yorkshire, YO23 1NA

01904 646611

How much is your home worth?

Use our short form to request a valuation of your property.

Request a Valuation

Mortgage Calculator

Amount Borrowed: £
Total Amount Repayable: £
Total Monthly Payment: £
©2026 The Guild of Property Professionals. All rights reserved. Terms and Conditions | Privacy Policy | Cookie Policy | Complaints Policy | Members Login
The Guild of Property Professionals Trading Address: 121 Park Lane, London W1K 7AG. GPEA Limited. Registered in England & Wales.  Company No: 02819824.  Registered Office Address: 2 St. Stephen's Court, St. Stephen's Road, Bournemouth, Dorset, England, BH2 6LA.  VAT Registration No: 576 8795 61
Book a Property Valuation Update Cookies Preferences