Sutherland Street, York

£265,000

2 Bedroom Terraced House for sale in York

2 2 1
  • No Onward Chain
  • South Facing Courtyard
  • 2 Double Bedrooms
  • Well Presented
  • In One of South Banks Most Popular Streets
  • Close to Knavesmire, Bishopthorpe Road Shopping Parade
  • Council Tax B
  • EPC D

NO ONWARD CHAIN. SOUTH FACING COURTYARD AND TWO DOUBLE BEDROOMS.
A well presented 2 bedroom period terraced house in one of South Banks most popular streets close to Knavesmire Racecourse, Bishopthorpe Road and many popular schools and amenities.
Benefitting from uPVC double glazed slide sash windows and modern gas central heating, the house is an ideal starter home or Investment purchase.
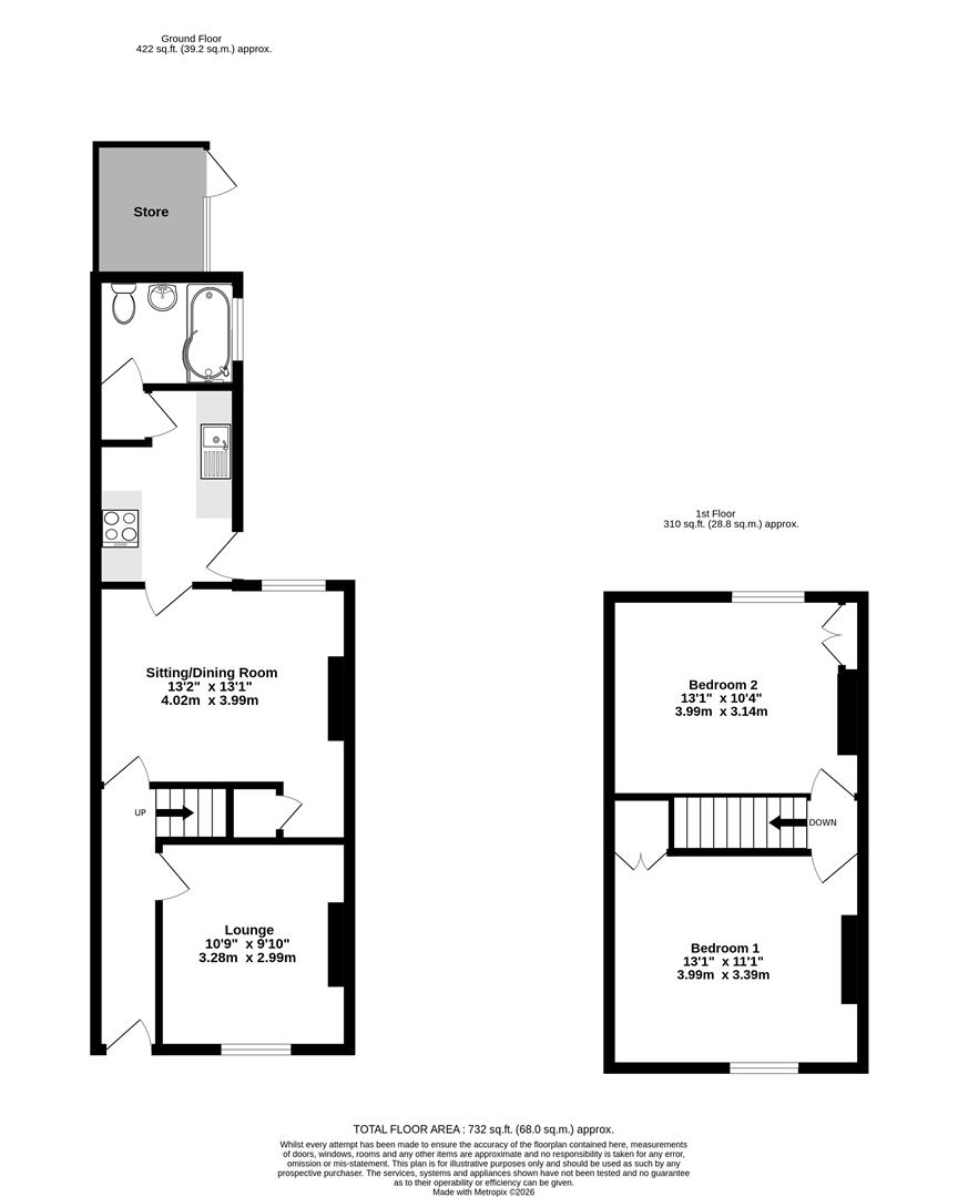
Internally the property comprises; entrance hallway, lounge, 13ft sitting/dining room, fitted kitchen, three piece bathroom suite, first flooring landing and two first floor double bedrooms.
To the outside is a South facing rear courtyard garden with attached brick store and gate to service alleyway.
An internal viewing is strongly recommended.

Entrance Hallway - Timber entrance door, double panelled radiator, carpeted stairs to first floor, panelled door to;

Lounge - uPVC slide sash window to front, carpeted flooring, double panelled radiator, picture rail, power points

Sitting/Dining Room - Slide sash uPVC window to rear, carpeted flooring, double panelled radiator, TV and power points, understairs cupboard

Kitchen - Window to side, fitted wall and base units with countertop, stainless steel sink and draining board with mixer tap, oven and hob, space and plumbing for appliances, tiled flooring, double panelled radiator, uPVC door to courtyard

Bathroom - Opaque uPVC window to side, 'P' shaped panelled bath with mixer head over, wash hand basin, low level wc, double panelled radiator, 'Aquaboarding', tiled flooring

First Floor Landing - Carpeted flooring, panelled door to;

Bedroom 1 - Slide sash window to front, carpeted flooring, double panelled radiator, fitted wardrobes, power points. Loft access with ladder. Velux window to rear, carpeted flooring and all boarded out.

Bedroom 2 - Slide sash window to rear, fitted wardrobes, carpeted flooring, double panelled radiator, power points

Outside - Brick store with power and water supply, brick boundary wall, gate to service alleyway

Agents Notes - To be able to purchase a property in the United Kingdom all agents have a legal requirement to conduct Identity checks on all customers involved in the transaction to fulfil their obligations under Anti Money Laundering regulations. A charge to carry out these checks will apply. Please ask our branch for further details

Property Ref: 34539417

Share:

Similar Properties

Cleveland Street, Holgate

2 Bedroom Terraced House | Guide Price £265,000

NO ONWARD CHAIN - Churchills Estate Agents are delighted to offer for sale this two double bedroom period mid terrace ho...

Langholme Drive, York

2 Bedroom Semi-Detached House | Offers in excess of £265,000

HIGHLY REGARDED CUL-DE-SAC LOCATION! We as agents are delighted to have the opportunity to present to the market this br...

Eldon Terrace, York

2 Bedroom Terraced House | Guide Price £265,000

NO FORWARD CHAIN!!!A fabulous period mid-terrace house located on this quiet residential street within the popular area...

Burton Stone Lane, York

3 Bedroom Commercial Property | Offers in region of £265,900

AN OPPORTUNITY TO PURCHASE A LOCK UP SHOP WITH A 2/3 BEDROOM APARTMENT ABOVE, SET ON THIS BUSY SHOPPING PARADE WITHIN TH...

Kentmere Drive, York

3 Bedroom Semi-Detached Bungalow | Offers Over £270,000

A 3 BEDROOM SEMI DETACHED BUNGALOW SET IN A QUIET CUL-DE-SAC POSITION WITHIN THIS POPULAR RESIDENTIAL AREA CONVENIENT FO...

Cromer Street, York

2 Bedroom Terraced House | Offers Over £270,000

NO ONWARD CHAIN! An impressive two bedroomed period terrace house with additional loft room, located in this popular res...

Churchills Estate Agents (York)

Bishopthorpe Road, York, Yorkshire, YO23 1NA

01904 646611

How much is your home worth?

Use our short form to request a valuation of your property.

Request a Valuation

Mortgage Calculator

Amount Borrowed: £
Total Amount Repayable: £
Total Monthly Payment: £
©2026 The Guild of Property Professionals. All rights reserved. Terms and Conditions | Privacy Policy | Cookie Policy | Complaints Policy | Members Login
The Guild of Property Professionals Trading Address: 121 Park Lane, London W1K 7AG. GPEA Limited. Registered in England & Wales.  Company No: 02819824.  Registered Office Address: 2 St. Stephen's Court, St. Stephen's Road, Bournemouth, Dorset, England, BH2 6LA.  VAT Registration No: 576 8795 61
Book a Property Valuation Update Cookies Preferences