Burton Stone Lane, York

Offers in region of
£265,900
SSTC
This property listing is now SSTC

3 Bedroom Commercial Property for sale in York

1 3 1
  • LOCK UP SHOP WITH A 2/3 BEDROOM APARTMENT ABOVE
  • SET ON A BUSY SHOPPING PARADE WITHIN LARGE RESIDENTIAL AREA CLOSE TO THE CITY CNTRE
  • Self Contained 2/3 Bedroom Apartment with Own Entrance
  • Small Courtyard To Rear
  • Ideal Investment Purchase Or For A Purchaser Looking For Business Premises With Private Accommodation

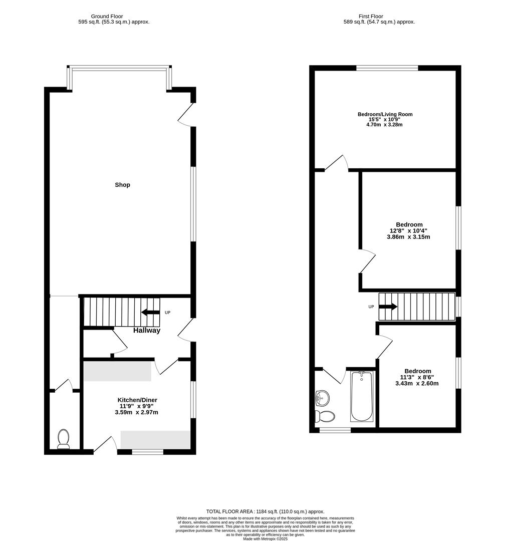
AN OPPORTUNITY TO PURCHASE A LOCK UP SHOP WITH A 2/3 BEDROOM APARTMENT ABOVE, SET ON THIS BUSY SHOPPING PARADE WITHIN THIS LARGE RESIDENTIAL AREA CLOSE TO THE CITY CENTRE. The property comprises; a ground floor lock up shop with two large display windows, store and w.c to rear. The self contained apartment has its own entrance and comprises; entrance hall, dining kitchen, first floor landing, living room/bedroom, 2 further bedrooms and bathroom/w.c. There is a small courtyard to the rear. Ideal investment purchase or for a purchaser looking for a business premises with private accommodation.

Property Ref: 34090300

Share:

Similar Properties

Sutherland Street, York

2 Bedroom Terraced House | £265,000

NO ONWARD CHAIN. SOUTH FACING COURTYARD AND TWO DOUBLE BEDROOMS. A well presented 2 bedroom period terraced house in one...

Blue Bridge Lane, York

2 Bedroom Apartment | Offers Over £260,000

Part of an exclusive walled garden development, Churchills are delighted to offer for sale this two bedroom first floor...

Gladstone Street, Acomb

2 Bedroom Terraced House | Guide Price £260,000

An exceptional two-bedroom period terrace property restored throughout to create a fabulous home with quality fittings a...

Sutherland Street, South Bank

2 Bedroom Terraced House | £270,000

A SUPERB FIRST TIME PURCHASE. A larger than average 2 bedroom period mid terrace house in this sought after location clo...

Trafalgar Street, York

2 Bedroom Terraced House | Guide Price £275,000

A LARGER THAN AVERAGE 2 BEDROOM PERIOD MID TERRACE HOUSE WITH A LONG REAR COURTYARD SET IN THIS SOUGHT AFTER LOCATION CL...

Bramblegate Road, Tockwith, York

3 Bedroom Semi-Detached House | Guide Price £275,000

Churchills Estate Agents are delighted to offer for sale this three bedroom semi detached house within the popular villa...

Churchills Estate Agents (York)

Bishopthorpe Road, York, Yorkshire, YO23 1NA

01904 646611

How much is your home worth?

Use our short form to request a valuation of your property.

Request a Valuation

Mortgage Calculator

Amount Borrowed: £
Total Amount Repayable: £
Total Monthly Payment: £
©2026 The Guild of Property Professionals. All rights reserved. Terms and Conditions | Privacy Policy | Cookie Policy | Complaints Policy | Members Login
The Guild of Property Professionals Trading Address: 121 Park Lane, London W1K 7AG. GPEA Limited. Registered in England & Wales.  Company No: 02819824.  Registered Office Address: 2 St. Stephen's Court, St. Stephen's Road, Bournemouth, Dorset, England, BH2 6LA.  VAT Registration No: 576 8795 61
Book a Property Valuation Update Cookies Preferences