Bramham Avenue, York

Guide Price
£250,000
SSTC
This property listing is now SSTC

2 Bedroom Terraced House for sale in York

2 2 1
  • Two Bedroom End Terrace Home
  • Sought After Location
  • Beautifully Presented Throughout
  • Driveway Providing Off Street Parking
  • Large Family Garden
  • Council Tax Band A
  • EPC C70

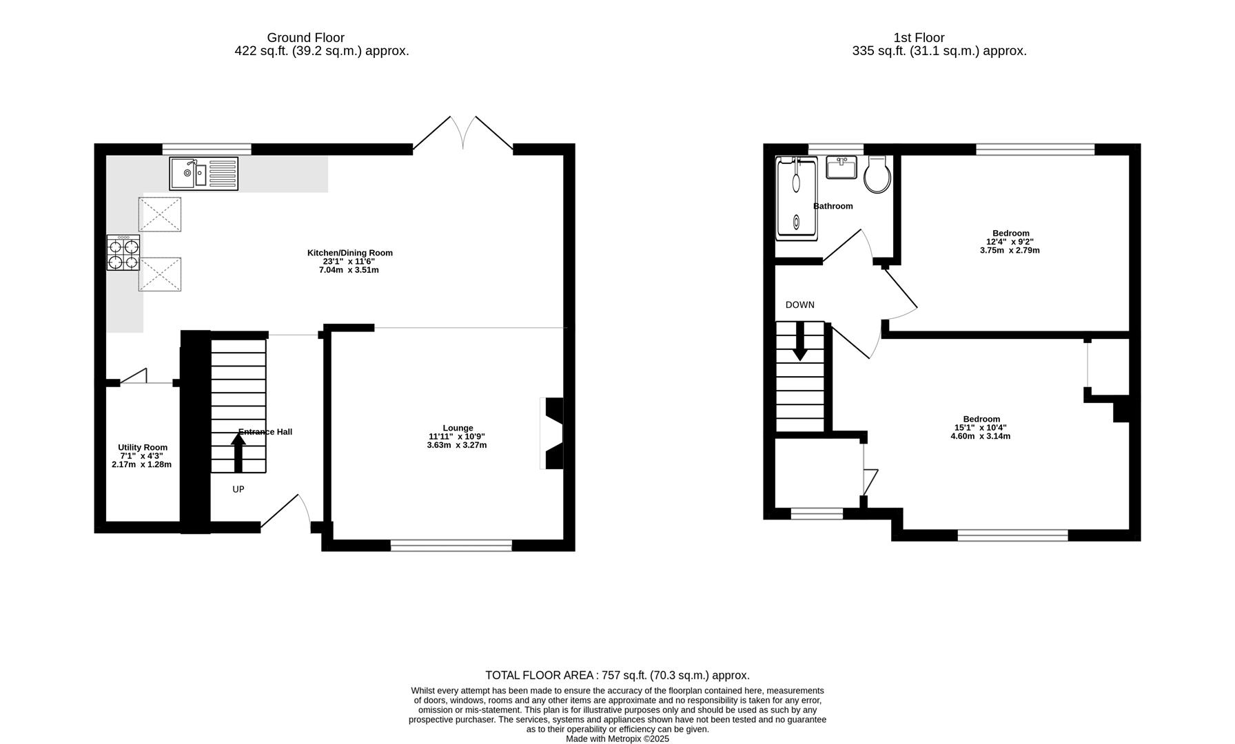
Churchills Estate Agents are delighted to offer For Sale this well presented two double bedroom end of terrace house located in this convenient and popular residential area close to Acomb front street, York's outer ring road with frequent bus links into the city centre. Updated to a very good standard throughout and benefitting from uPVC double glazing and central heating. The internal living accommodation comprises; entrance hallway, lounge, 23ft kitchen and dining room, utility, first floor landing, two first floor double bedrooms and three piece shower room. To the outside is a gravelled front driveway providing generous off street parking and the potential for electric car charging, side access to a paved rear garden with artificial turf area, external studio with power and lighting and further brick built storage. An accompanied viewing is highly recommended.

Entrance Hallway - Composite entrance door, tiled flooring, column radiator, power points, carpeted stairs to first floor

Lounge - uPVC double glazed window to front, feature log burner with hearth, carpeted flooring, TV and power points, single panelled radiator

Kitchen - uPVC window to rear, fitted wall and base units with countertop, one and half sink and draining board with mixer tap, built-in gas hob, eye level oven, two Velux windows, tiled flooring, column radiator, power points

Dining Area - Double glazed French doors onto garden, tiled flooring, power points

Utility Room - Plumbing and space for washing machine, tiled flooring, power points

First Floor Landing - Opaque window to side, carpeted flooring, loft access, power points

Bedroom 1 - Two uPVC windows to front, fitted storage, carpeted flooring, double panelled radiator, power points

Bedroom 2 - uPVC window to rear, carpeted flooring, double panelled radiator, power points

Shower Room - Opaque uPVC window to rear, walk-in mains fed shower cubicle, low level WC, wash hand basin, tiled walls, tiled flooring, towel radiator, recessed spotlights ,extractor fan

Outside - Gravelled front driveway, side access, paved patio, artificial turf, external studio, brick store with power and lighting, timber fence boundary.

Property Ref: 564471_34017561

Share:

Similar Properties

Neptune House, Olympian Court

2 Bedroom Apartment | Offers Over £250,000

SUPERB LARGER THAN AVERAGE TOP FLOOR APARTMENT BOASTING OVER 1,000 SQ FT AND READY TO VIEW! Churchills are delighted to...

Burlington Avenue, Off Melrosegate

3 Bedroom Terraced House | Guide Price £250,000

AN EXTENDED AND WELL PRESENTED END TOWN HOUSE WITH GARDEN AND OFF STREET PARKING LOCATED IN THIS CENTRAL AND POPULAR RES...

Amberley Street, York

2 Bedroom Terraced House | Guide Price £250,000

A delightful and wider than average period two bedroomed terraced house with superb rear courtyard on this quiet residen...

Queen Victoria Street, York

2 Bedroom Terraced House | Guide Price £255,000

AN IMPRESSIVE TWO BEDROOM MID-TERRACED HOUSE WITH ADDITIONAL LOFT SPACE, SET IN ONE OF SOUTH BANKS MOST POPULAR STREETS....

Fountayne House, Lawrence Square

3 Bedroom Apartment | Guide Price £259,950

INVESTMENT OPPORTUNITY IN PRIME AREA - Churchills Estate Agents offer for sale this three bedroom ground floor apartment...

Albemarle Road, York

2 Bedroom Apartment | Guide Price £260,000

NO ONWARD CHAIN! VIEWS OVERLOOKING THE KNAVESMIRE! TWO DOUBLE BEDROOMS AND PARKING! Churchills Estate Agents are delight...

Churchills Estate Agents (York)

Bishopthorpe Road, York, Yorkshire, YO23 1NA

01904 646611

How much is your home worth?

Use our short form to request a valuation of your property.

Request a Valuation

Mortgage Calculator

Amount Borrowed: £
Total Amount Repayable: £
Total Monthly Payment: £
©2025 The Guild of Property Professionals. All rights reserved. Terms and Conditions | Privacy Policy | Cookie Policy | Complaints Policy | Members Login
The Guild of Property Professionals Trading Address: 121 Park Lane, London W1K 7AG. GPEA Limited. Registered in England & Wales.  Company No: 02819824.  Registered Office Address: 2 St. Stephen's Court, St. Stephen's Road, Bournemouth, Dorset, England, BH2 6LA.  VAT Registration No: 576 8795 61
Book a Property Valuation Update Cookies Preferences