Chandlers Gate, Hursley Road, Chandler's Ford

£1,200pcm

2 Bedroom Flat for rent in Chandler's Ford

1 2 2

A modern purpose built two bedroom ground floor apartment with allocated parking positioned in a convenient location in the centre of Chandlers Ford within a gated development and offering a close proximity to the bus routes and rail networks.

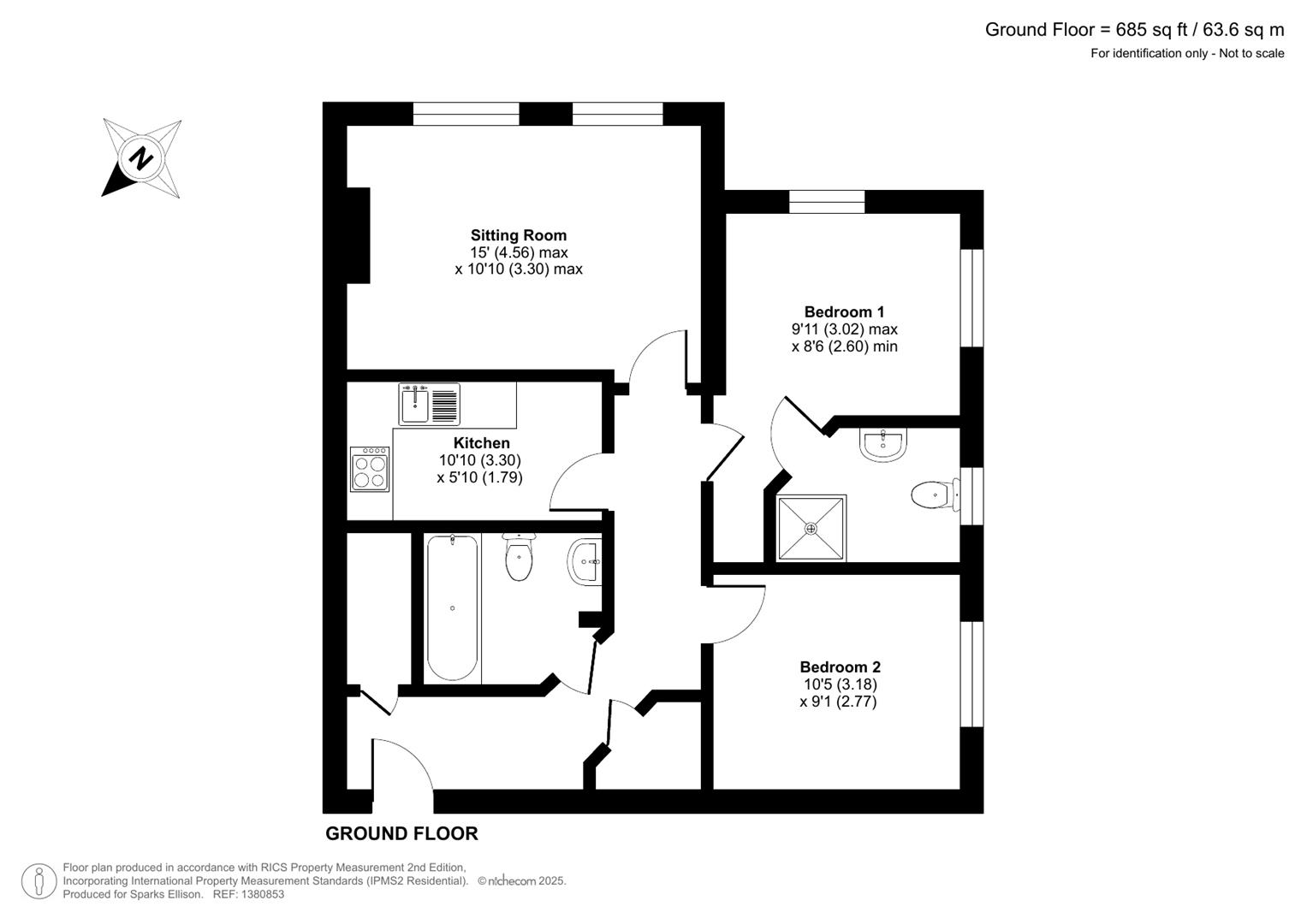
Accommodation -

Communal Front Door: - Leading to hallway

Private Front Door: -

Hallway: - Full height storage cupboard 2'9" x 6'5", further full height storage cupboard housing gas central heating combination boiler.

Sitting Room: - 15' x 10'10" (4.57m x 3.30m)

Kitchen: - 10'10" x 5'10" (3.30m x 1.78m) Modern fitted kitchen with a range of matching eye and base level units, space and provision for a variety of kitchen appliances.

Bedroom 1: - 9'10" x 14'6" narrowing to 8'6" (3.00m x 4.42m narrowing to 5.59m) Dual aspect room with windows to two elevations.

En-Suite: - 7'8" x 5'8" (2.34m x 1.73m) Closed shower cubicle, vanity wash hand basin, wc, electric shaver socket, extractor fan.

Bedroom 2: - 10'4" x 9' (3.15m x 2.74m)

Bathroom: - 7'9" x 6'5" (2.36m x 1.96m) Modern white suite comprising of shower attachment over panel enclosed bath, vanity wash hand basin, and wc.

Outside - The property sits in an attractive well manicured communal gardens and benefits from one allocated parking space.

Other Information -

Approximate Area: - 55sqm/592sqft (Details taken from EPC)

Managed: - Tanant find only

Security Deposit: - £1384

Holding Deposit: - £276.92

Availability: - December 2025

Heating: - Gas central heating

Windows: - Double glazing

Infant/Junior School: - Chandlers Ford Infant School/Merdon Junior School

Secondary School: - Toynbee Secondary School

Local Council: - Eastleigh Borough Council 02380 688000

Council Tax: - Band C

Property Ref: 6224678_34305862

Share:

Similar Properties

Colton Copse, Chandler's Ford, Eastleigh

2 Bedroom Terraced House | £1,250pcm

A modern two bedroom terraced home situated in a popular cul-de-sac location and within catchment for Knightwood and Tho...

Oakmount Road, Chandler's Ford

3 Bedroom Terraced House | £1,500pcm

*** NO MORE ENQUIRIES AS ALREADY LET AGREED ***A three bedroom middle terrace family home conveniently situated close to...

Jack Close, Knightwood Park, Chandlers Ford

3 Bedroom Detached House | £1,600pcm

A well presented three bedroom detached family home situated at the end of a quiet cul-de-sac within the popular Knightw...

Sparks Ellison (Chandler's Ford)

Chandler's Ford, Hampshire, SO53 2GJ

02380 018518

How much is your home worth?

Use our short form to request a valuation of your property.

Request a Valuation
©2025 The Guild of Property Professionals. All rights reserved. Terms and Conditions | Privacy Policy | Cookie Policy | Complaints Policy | Members Login
The Guild of Property Professionals Trading Address: 121 Park Lane, London W1K 7AG. GPEA Limited. Registered in England & Wales.  Company No: 02819824.  Registered Office Address: 2 St. Stephen's Court, St. Stephen's Road, Bournemouth, Dorset, England, BH2 6LA.  VAT Registration No: 576 8795 61
Book a Property Valuation Update Cookies Preferences