Richmond Road, Jericho, Oxford, OX1

£5,250pcm
Let Agreed
This property listing is now Let Agreed

4 Bedroom Terraced House for rent in Jericho

2 4 2

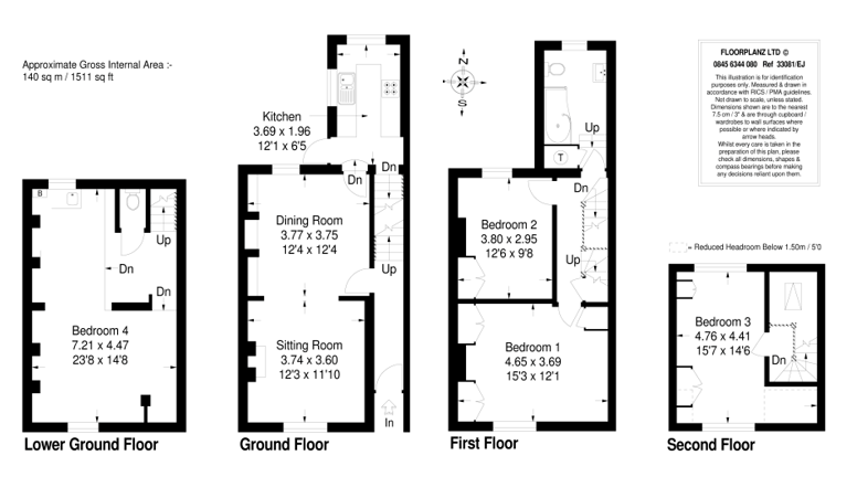
ACCOMODATION A charming four bedroom period town house refurbished to a very high standard throughout and set over four floors. The property features a large open plan sitting room and dining room with sash windows and an open fireplace. A modern fitted kitchen leads to a quaint rear garden. The property boasts a spacious lower ground floor double bedroom with bathroom and utility area, perfect for guests or older children. Two double bedrooms can be found on the first floor along with a Victorian style family bathroom. An additional double bedroom is situated in the loft room. Furnished. Available September 2026 for minimum 10 month tenancy. EPC Rating D.

LOCAL INFORMATION Situated on the quiet Richmond Road providing immediate access to all the local amenities on Walton Street and Jericho, including bars, restaurants and cinema. Just 0.3 miles from Oxford City Centre, the property is conveniently located for Oxford bus station and Oxford mainline station which is ideal for commuting, with London Paddington accessed in just 40 minutes.

OUTSIDE SPACE Pretty rear garden.

LOCAL AUTHORITY AND SERVICES Oxford City Council Tax Band F. On street permit parking avalaible through seperate application, at tenant's cost.

To check broadband and mobile phone coverage please visit Ofcom here ofcom.org.uk/phones-telecoms-and-internet/advice-for-consumers/advice/ofcom-checker

DISCLAIMER These particulars are a general guide only. They do not form part of any contract. Services, systems and appliances have not been tested. Viewings are offered on a first come first served basis.

CONGESTION CHARGE Please note: Certain areas of Oxford are subject to a congestion charge of £5. Please check the website below before driving to your viewing to confirm whether your journey will cross a charging location.
For further details, visit the Oxfordshire County Council website: https://www.oxfordshire.gov.uk/transport-and-travel/oxfords-temporary-congestion-charge-cars/map-locations

Property Ref: SLS200003_L

Share:

Similar Properties

Cumnor Hill, Oxford

6 Bedroom Detached House | £4,995pcm

Distinctive detached Art Deco property approached by a private residential lane on Cumnor Hill, finished to a high stand...

Oakthorpe Road, Oxford

4 Bedroom Terraced House | £4,500pcm

Recently refurbished, Victorian four bedroom family house in the heart of Summertown finished to a high standard through...

Cunliffe Close, Oxford

3 Bedroom Terraced House | £4,000pcm

This newly renovated three bedroom family property in a lovely area of Summertown finished to a high standard. The prope...

Farndon Road, Oxford

4 Bedroom End of Terrace House | £6,000pcm

Beautifully presented Victorian home, conveniently situated in a sought after side road, arranged over three floors with...

Penny & Sinclair (Summertown)

256 Banbury Road, Mayfield House, Summertown, Oxfordshire, OX2 7DE

01865 318013

How much is your home worth?

Use our short form to request a valuation of your property.

Request a Valuation
©2026 The Guild of Property Professionals. All rights reserved. Terms and Conditions | Privacy Policy | Cookie Policy | Complaints Policy | Members Login
The Guild of Property Professionals Trading Address: 121 Park Lane, London W1K 7AG. GPEA Limited. Registered in England & Wales.  Company No: 02819824.  Registered Office Address: 2 St. Stephen's Court, St. Stephen's Road, Bournemouth, Dorset, England, BH2 6LA.  VAT Registration No: 576 8795 61
Book a Property Valuation Update Cookies Preferences