Laburnum Grove, Portsmouth

£1,300pcm
Let Agreed
This property listing is now Let Agreed

2 Bedroom Flat for rent in Portsmouth

1 2 1
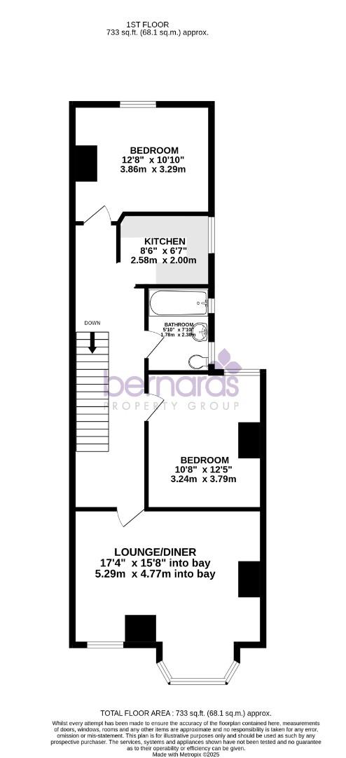
  • TWO BEDROOM APARTMENT
  • SPACIOUS THROUGHOUT
  • DOUBLE BEDROOMS
  • MODERN KITCHEN & BATHROOM
  • STYLISH & MODERN INTERIOR
  • FIRST FLOOR
  • CENTRAL LOCATION
  • AVAILABLE NOVEMBER
  • EPC RATING C
  • COUNCIL TAX BAND A

Nestled in the heart of Portsmouth on Laburnum Grove, this spacious two-bedroom first-floor apartment offers a delightful blend of modern living and stylish decor. The property has been thoughtfully converted, ensuring a contemporary yet homely atmosphere throughout.

As you enter, you are greeted by a well-proportioned reception room that serves as the perfect space for relaxation and dining. The neutral colour palette enhances the sense of space and light, making it an inviting area to unwind after a long day.

The modern kitchen is equipped with all the necessary amenities, providing both functionality and style for those who enjoy cooking. The bathroom has been designed with contemporary fixtures, ensuring a comfortable and pleasant experience.

With two generously sized bedrooms, this apartment is ideal for small families, couples, or individuals seeking extra space. Each room is designed to maximise comfort and tranquillity, making it easy to retreat and recharge.

Situated in a central location, residents will benefit from easy access to local amenities, transport links, and the vibrant culture that Portsmouth has to offer. This property is a perfect opportunity for those looking to embrace a modern lifestyle in a convenient setting.

Right To Rent Checks - Each applicant will be subject to the right to rent checks. This is a government requirement since February 2016. We are required to check and take a copy of the original version of acceptable documentation in order to adhere to the Right to rent checks. This will be carried out at referencing stage. Please speak to a member of staff for acceptable Identification.

Tenant Fees Act 2019 - As well as paying the rent, you may also be required to make the following permitted payments.

For properties in England, the Tenant Fees Act 2019 means that in addition to rent, lettings agents can only charge tenants (or anyone acting on the tenant's behalf) the following permitted payments:

· Holding deposits (a maximum of 1 week's rent);
· Deposits (a maximum deposit of 5 weeks' rent for annual rent below £50,000, or 6 weeks' rent for annual rental of £50,000 and above);
· Payments to change a tenancy agreement eg. change of sharer (capped at £50 or, if higher, any reasonable costs);
· Payments associated with early termination of a tenancy (capped at the landlord's loss or the agent's reasonably incurred costs);
· Where required, utilities (electricity, gas or other fuel, water, sewerage), communication services (telephone, internet, cable/satellite television), TV licence;
· Council tax (payable to the billing authority);
· Interest payments for the late payment of rent (up to 3% above Bank of England's annual percentage rate);
· Reasonable costs for replacement of lost keys or other security devices;
· Contractual damages in the event of the tenant's default of a tenancy agreement; and
· Any other permitted payments under the Tenant Fees Act 2019 and regulations applicable at the relevant time.

Property Ref: 901247_34180168

Share:

Similar Properties

Belgravia Road, Portsmouth

3 Bedroom Terraced House | £1,300pcm

***THREE BEDROOM FAMILY HOME ***Bernards are delighted to introduce to the rental market, this very well presented bedro...

Magdala Road, Cosham, Portsmouth

2 Bedroom Terraced House | £1,250pcm

***FULLY REFURBISHED***We are thrilled to welcome to the rental market, this two bedroom terraced house located in a sou...

Guildford Road, Portsmouth

2 Bedroom House | £1,250pcm

Located on Guildford Road, this delightful two-bedroom house offers a perfect mix of comfort and style. The spacious, li...

The Old Portsmouth Gaol

2 Bedroom Flat | £1,350pcm

New to the rental market is this well-presented two-bedroom, two-bathroom ground floor apartment, situated in the highly...

The Old Portsmouth Gaol

2 Bedroom Flat | £1,350pcm

We are delighted to offer this modern, converted two bedroom apartment with allocated parking to the market.The property...

The Old Road, Cosham

2 Bedroom End of Terrace House | £1,350pcm

Nestled in the charming area of Cosham, The Old Road presents a delightful opportunity to acquire a modern mid-terrace h...

Bernards Estate and Lettings Agents (Portsmouth)

129 London Road, North End, Portsmouth, PO2 9AA

02392 728090

How much is your home worth?

Use our short form to request a valuation of your property.

Request a Valuation
©2025 The Guild of Property Professionals. All rights reserved. Terms and Conditions | Privacy Policy | Cookie Policy | Complaints Policy | Members Login
The Guild of Property Professionals Trading Address: 121 Park Lane, London W1K 7AG. GPEA Limited. Registered in England & Wales.  Company No: 02819824.  Registered Office Address: 2 St. Stephen's Court, St. Stephen's Road, Bournemouth, Dorset, England, BH2 6LA.  VAT Registration No: 576 8795 61
Book a Property Valuation Update Cookies Preferences