The Goodens, Cheriton, Alresford

£1,500pcm
Let Agreed
This property listing is now Let Agreed

3 Bedroom Semi-Detached House for rent in Alresford

2 3 1
  • Energy Performance Rating E
  • Holding Deposit £346.15
  • Deposit £1730.75
  • Council Tax Band D
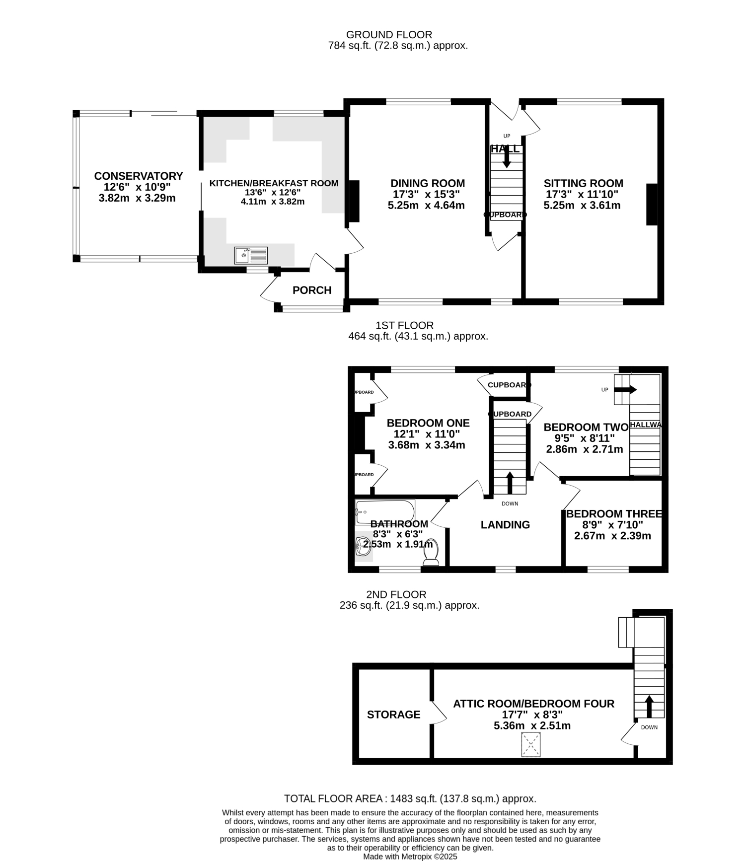
  • Three Bedrooms and an Attic Room
  • Two Reception Rooms
  • Kitchen/Breakfast Room
  • Conservatory
  • Large Garden and Parking
  • Close To Village Centre

A spacious extended home situated within a short walk of picturesque village centre of Cheriton.
The house has a versatile layout downstairs, with a good sized kitchen, adjacent conservatory, large dining/family room and separate cosy living room with an open fire.
Upstairs, there is a family bathroom with shower over the bath, three bedrooms on the first floor and a further room in the attic, which is accessed via a staircase leading from the second bedroom.
To the front of the property is a large drive with off road parking. There is a garden to the rear with patio area and mature hedges.
Ultrafast broadband is avialable (source: Ofcom). A mobile signal is likely from O2, liimted from EE and Vodafone, and none from Three (source: Ofcom)



Cheriton is a much sought after village within easy reach of Alresford and Winchester. Within the village itself there is a local shop, Post Office, primary school, bus service, church, recreation ground/tennis courts and a traditional public house (almost opposite). We understand that this house was built as one of a pair of former farm cottages which front the village street (Brandy Mount).

Property Ref: 420420_10160110

Share:

Similar Properties

Links Cottages, Tichborne Down, Alresford, SO24

2 Bedroom Cottage | £1,500pcm

A two bedroom character cottage on the southern fringe of the town, close to open countryside and the golf course. The p...

The Dean, Alresford, Hampshire, SO24

2 Bedroom Terraced House | £1,500pcm

A newly refurbished cottage, located on The Dean

East Street, Alresford, Hampshire, SO24

2 Bedroom Terraced House | £1,400pcm

A beautifully presented two bedroom character cottage, set in the heart of the Town.

Primrose Cottages, Hinton Ampner, Alresford, Hampshire, SO24

3 Bedroom Cottage | £1,600pcm

A semi-detached cottage, which has been newly refurbished and has views over surrounding countryside.

Pebble Beach Apartments, 6 Marine Parade East, Lee-on-the-Solent, Hampshire, PO13

2 Bedroom Apartment | £1,600pcm

A superbly presented ground floor flat, located on the seafront.

Little Hayes Lane, Itchen Abbas, Winchester, Hampshire, SO21

3 Bedroom Semi-Detached House | £1,700pcm

A charming three bedroom cottage set in the popular hamlet of Itchen Abbas, overlooking a green and with lovely views be...

Hellards Estate Agents (Alresford)

11 Broad Street, Alresford, Hampshire, SO24 9AR

01962 736333

How much is your home worth?

Use our short form to request a valuation of your property.

Request a Valuation
©2025 The Guild of Property Professionals. All rights reserved. Terms and Conditions | Privacy Policy | Cookie Policy | Complaints Policy | Members Login
The Guild of Property Professionals Trading Address: 121 Park Lane, London W1K 7AG. GPEA Limited. Registered in England & Wales.  Company No: 02819824.  Registered Office Address: 2 St. Stephen's Court, St. Stephen's Road, Bournemouth, Dorset, England, BH2 6LA.  VAT Registration No: 576 8795 61
Book a Property Valuation Update Cookies Preferences