Broad Street, Alresford, SO24

£1,200pcm
Let Agreed
This property listing is now Let Agreed

2 Bedroom Maisonette for rent in Alresford

2 2 1
  • EPC D
  • Holding Deposit £276.92
  • Deposit £1384.60
  • Council Tax Band A
  • Central Alresford location
  • Set over two floors
  • Sitting and dining rooms
  • Modern Kitchen
  • Two double bedrooms
  • Roof terrace

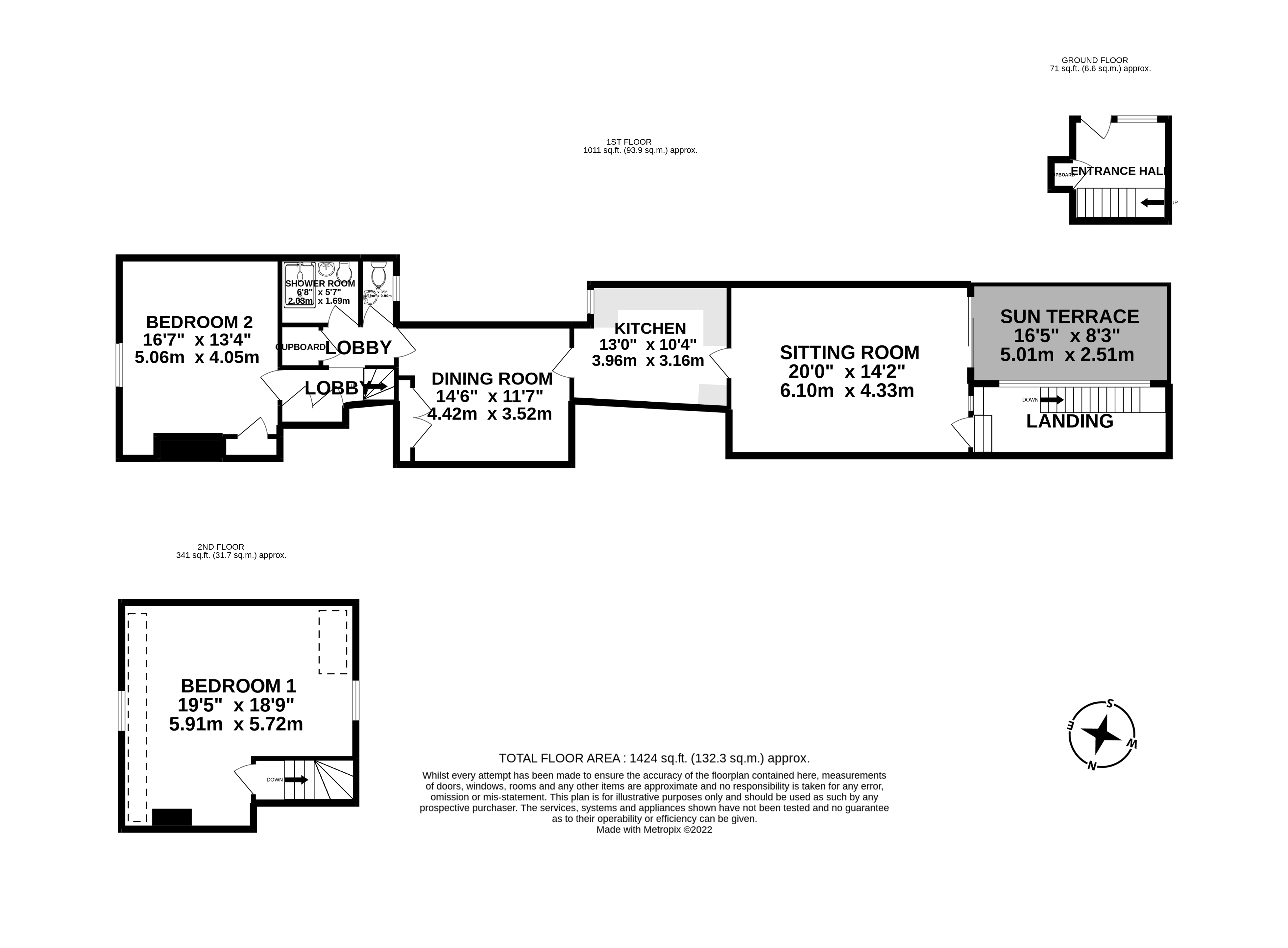
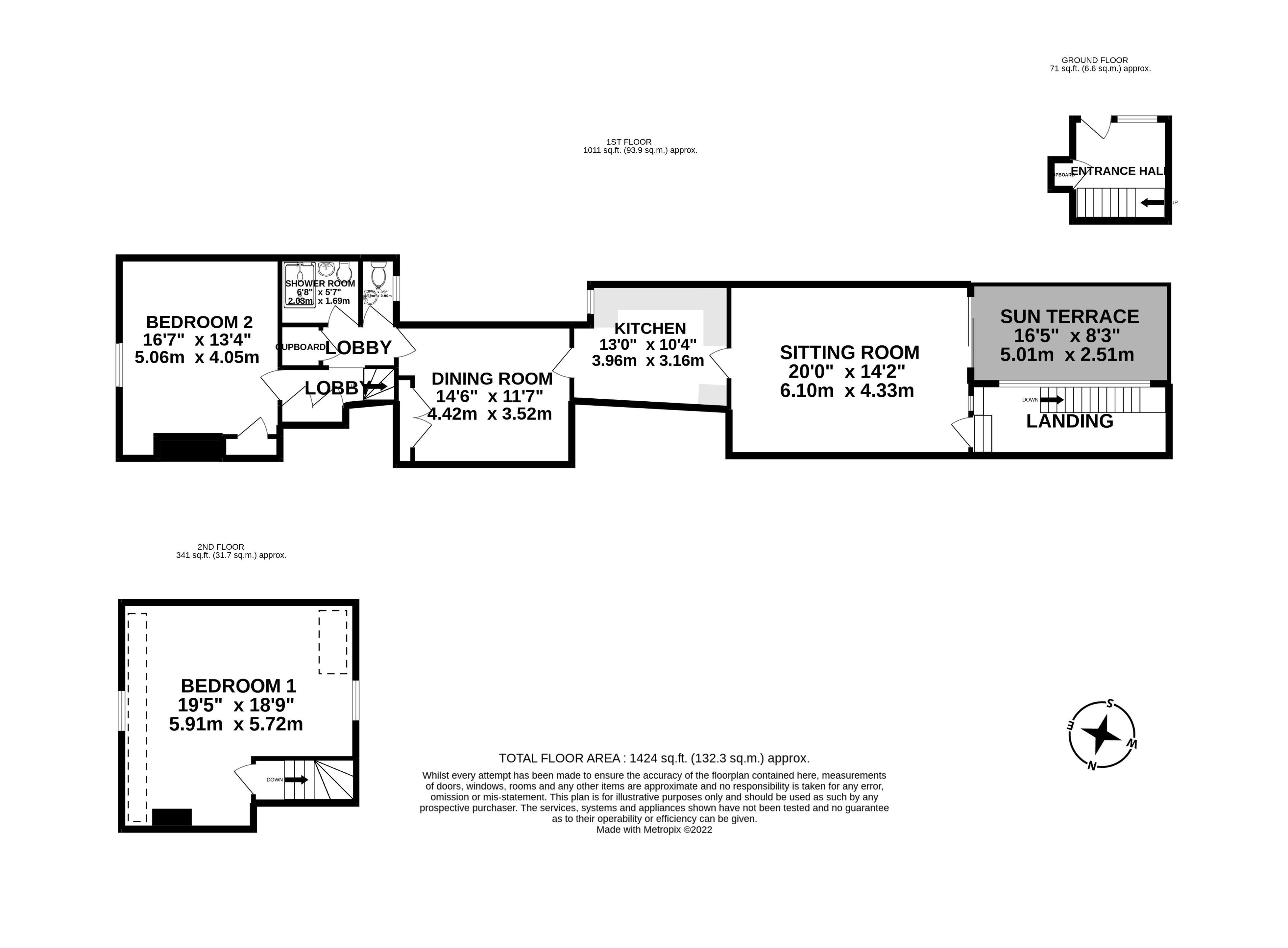
A well presented maisonette, set over two floors, in the heart of Broad Street. With secure access to the alleyway from the street, this is an ideal 'lock up and leave'.
On the ground floor is an entrance hall with stairs to the main floor, with galleried landing. The sitting room is a generous size, with sliding patio doors opening out onto a roof terrace. A door from the sitting room leads through to the newly fitted kitchen, which in turn leads into the dining room. A further door leads into the inner hallway, with WC, shower room and main bedroom. Winding stairs lead up to the second bedroom on the top floor
The cost of gas, electric and water is recharged to the Tenant by the Landlord at £350 pcm. The Landlord can supply broadband to the flat for a fee of £12 pcm. There is no allocated parking with the property.




Alresford is a beautiful Georgian town known for its variety of independent shops, restaurants and inns located in stunning surroundings on the edge of the South Downs National Park. Attractions include the Watercress steam railway, schools for infant, junior and secondary education, several churches and an active and inclusive community. The cathedral city of Winchester is about 7 miles away and there is easy access to the south coast, the midlands and London via the road network. There is also mainline rail access to London from both Winchester and Alton. Southampton airport is only about half an hour away by car.

Property Ref: 420420_10159755

Share:

Similar Properties

Broad Street, Alresford, Hampshire, SO24

2 Bedroom Apartment | £1,200pcm

A well presented top floor apartment in the centre of town, offering far reaching views and an enviable location.

Bay Tree Yard, West Street, Alresford

1 Bedroom Cottage | £1,200pcm

A charming 18th century cottage with parking, conveniently located in the middle of the town.

Burgage Mews, West Street, Alresford, Hampshire, SO24

2 Bedroom Apartment | £1,100pcm

A superb first floor maisonette , built and fitted out to a high specification, located in the centre of Alresford.

Bryony Gardens, Horton Heath, Eastleigh, Hampshire, SO50

2 Bedroom Terraced House | £1,250pcm

A newly redecorated two bedroom home, set in this popular residential location.

Cheriton, Alresford, Hampshire, SO24

2 Bedroom Apartment | £1,300pcm

An unique opportunity to rent this self-contained flat set within the curtilage of a country home, on the outskirts of t...

35 Orchard Close, Alresford, SO24

2 Bedroom Terraced House | £1,300pcm

A newly redecorated home located in this popular residential road.

Hellards Estate Agents (Alresford)

11 Broad Street, Alresford, Hampshire, SO24 9AR

01962 736333

How much is your home worth?

Use our short form to request a valuation of your property.

Request a Valuation
©2026 The Guild of Property Professionals. All rights reserved. Terms and Conditions | Privacy Policy | Cookie Policy | Complaints Policy | Members Login
The Guild of Property Professionals Trading Address: 121 Park Lane, London W1K 7AG. GPEA Limited. Registered in England & Wales.  Company No: 02819824.  Registered Office Address: 2 St. Stephen's Court, St. Stephen's Road, Bournemouth, Dorset, England, BH2 6LA.  VAT Registration No: 576 8795 61
Book a Property Valuation Update Cookies Preferences