Bay Tree Yard, West Street, Alresford, Hampshire, SO24

£1,400pcm
Let Agreed
This property listing is now Let Agreed

3 Bedroom Apartment for rent in Alresford

1 3 1
  • Energy Performance Rating C
  • Holding Deposit £323.07
  • Deposit £1615.35
  • Council Tax Band C
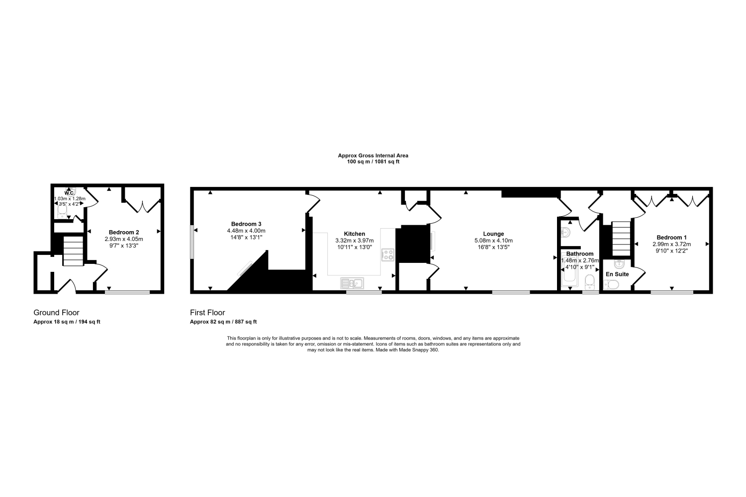
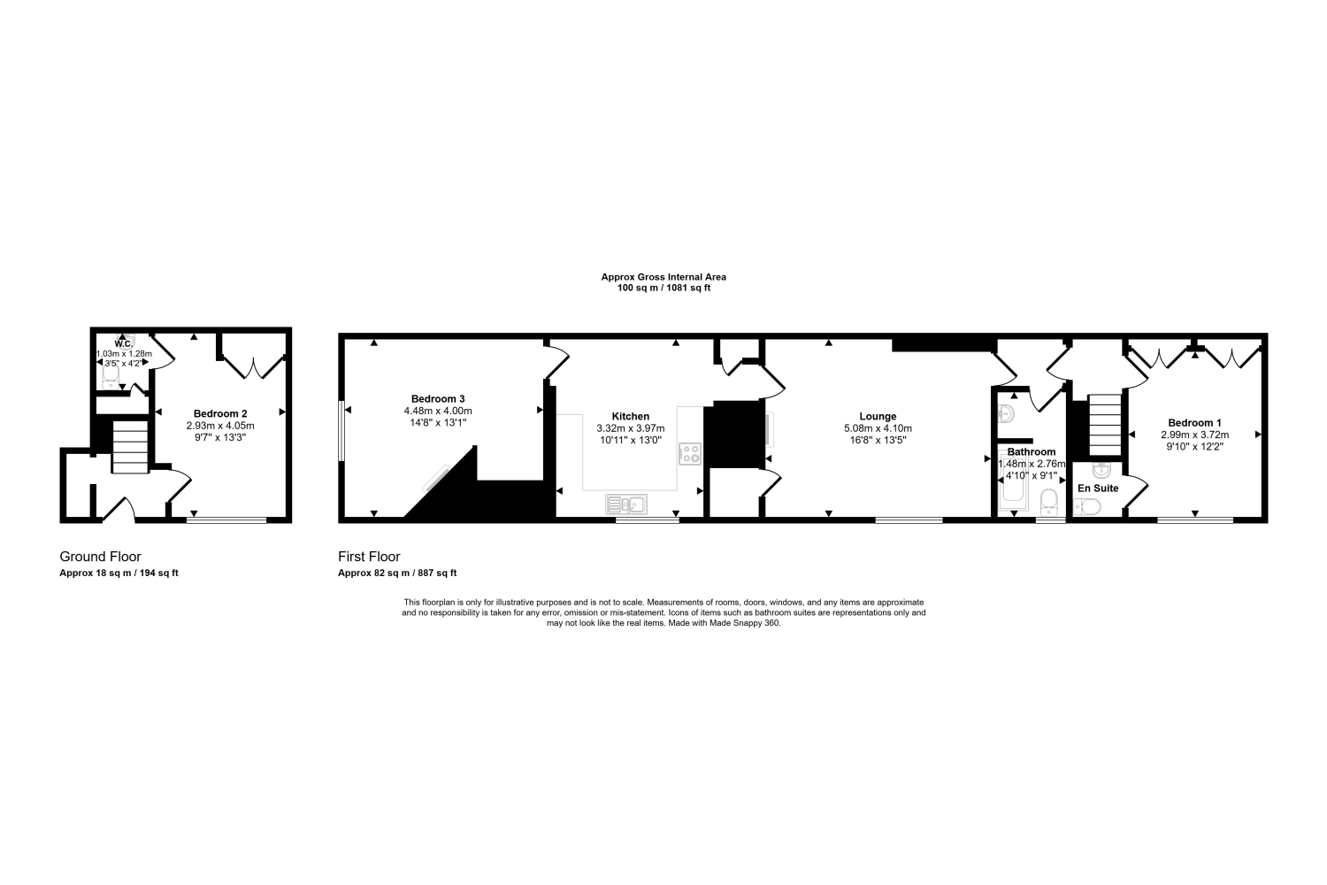
  • Three Bedrooms - two with ensuite WC
  • Large Kitchen/Dining Room
  • Sitting Room with Exposed BEams
  • Modern Bathroom
  • Town Centre Location

A beautiful and spacious town centre apartment.
Upon entering, there is a lobby with stairs to the first floor and a door through to the downstairs bedroom which features and en-suite WC. Upstairs there are two double bedrooms, one of which has an en-suite WC, a family bathroom with shower over the bath, a beautiful beamed sitting room with a decorative fireplace and a generously sized fitted kitchen/breakfast room.
There is no allocated parking with the property but parking permits can be obtained at a reasonable cost for the pay and display car parks in Alresford.
There is ultrafast broadband available (source: Ofcom). A mobile signal is likely from Three, O2 and Vodafone, but limited from EE (source: Ofcom).
Alresford is a beautiful Georgian town known for its variety of independent shops, restaurants and inns located in stunning surroundings on the edge of the South Downs National Park. Attractions include the Watercress steam railway, schools for infant, junior and secondary education, several churches and an active and inclusive community. The cathedral city of Winchester is about 7 miles away and there is easy access to the south coast, the midlands and London via the road network. There is also mainline rail access to London from both Winchester and Alton. Southampton airport is only about half an hour away by car.

Property Ref: 420420_10159862

Share:

Similar Properties

East Street, Alresford, Hampshire, SO24

2 Bedroom Terraced House | £1,400pcm

A beautifully presented two bedroom character cottage, set in the heart of the Town.

East Lodge, 2 Marine Parade East, Lee-on-the-Solent, Hampshire, PO13

2 Bedroom Apartment | £1,400pcm

A superb top floor apartment with far reaching views over the Solent, towards the Isle of Wight.

35 Orchard Close, Alresford, SO24

2 Bedroom Terraced House | £1,300pcm

A newly redecorated home located in this popular residential road.

Links Cottages, Tichborne Down, Alresford, SO24

2 Bedroom Cottage | £1,500pcm

A two bedroom character cottage on the southern fringe of the town, close to open countryside and the golf course. The p...

The Goodens, Cheriton, Alresford

3 Bedroom Semi-Detached House | £1,500pcm

A spacious home situated within a short walk of Cheriton village centre with its picture-postcard village green, lying b...

The Dean, Alresford, Hampshire, SO24

2 Bedroom Terraced House | £1,500pcm

A newly refurbished cottage, located on The Dean

Hellards Estate Agents (Alresford)

11 Broad Street, Alresford, Hampshire, SO24 9AR

01962 736333

How much is your home worth?

Use our short form to request a valuation of your property.

Request a Valuation
©2025 The Guild of Property Professionals. All rights reserved. Terms and Conditions | Privacy Policy | Cookie Policy | Complaints Policy | Members Login
The Guild of Property Professionals Trading Address: 121 Park Lane, London W1K 7AG. GPEA Limited. Registered in England & Wales.  Company No: 02819824.  Registered Office Address: 2 St. Stephen's Court, St. Stephen's Road, Bournemouth, Dorset, England, BH2 6LA.  VAT Registration No: 576 8795 61
Book a Property Valuation Update Cookies Preferences