The College, ASTHALL

£1,350pcm
Let Agreed
This property listing is now Let Agreed

2 Bedroom Cottage for rent in Asthall

1 2 2
  • Lovely Period Cotswold Stone Cottage
  • Kitchen Diner
  • Separate Living Room With Logburner
  • 2 Bedrooms
  • Oil Fired Central Heating
  • Courtyard Cottage Garden
  • Gigaclear Broadband Option
  • Secluded Position In Popular Village

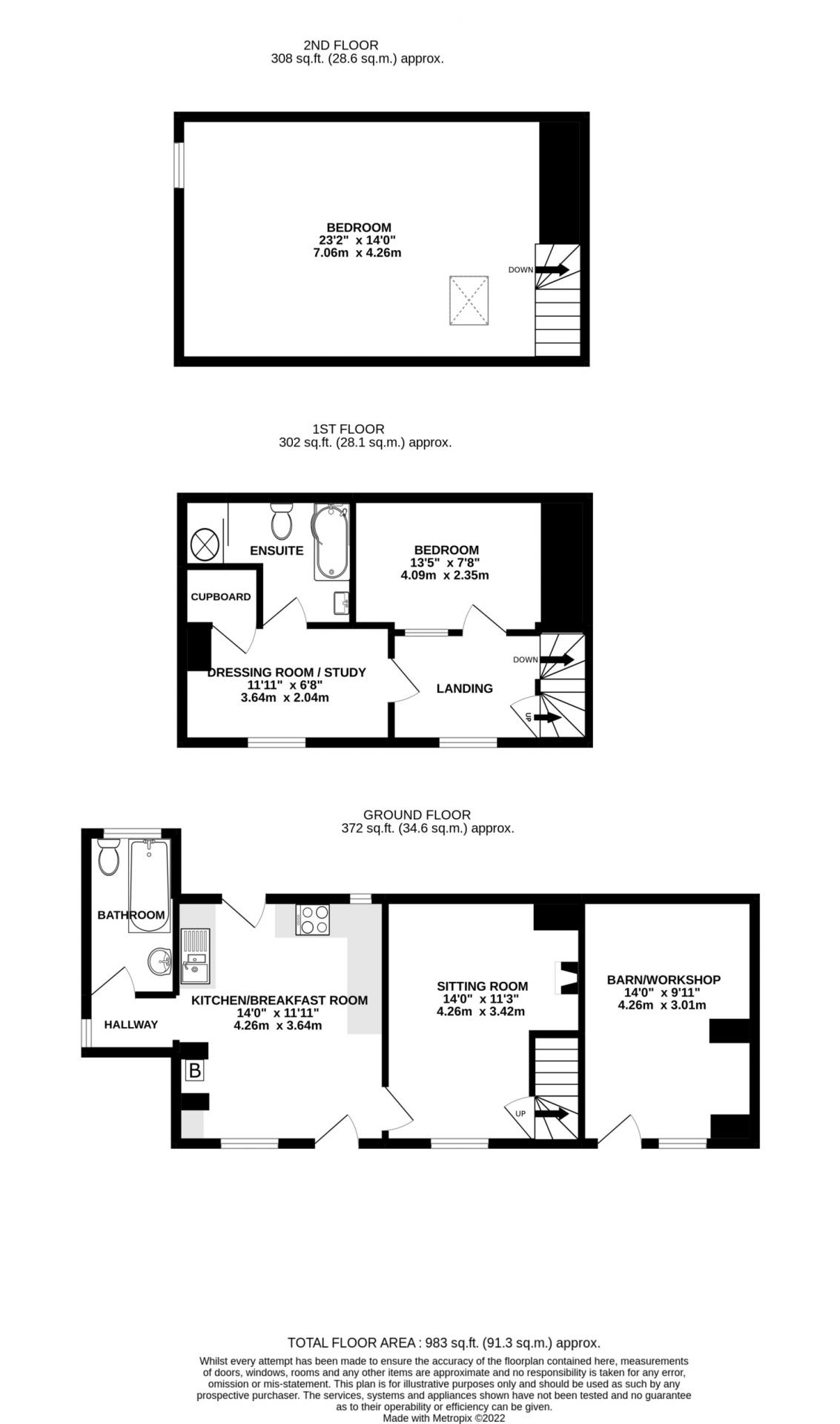
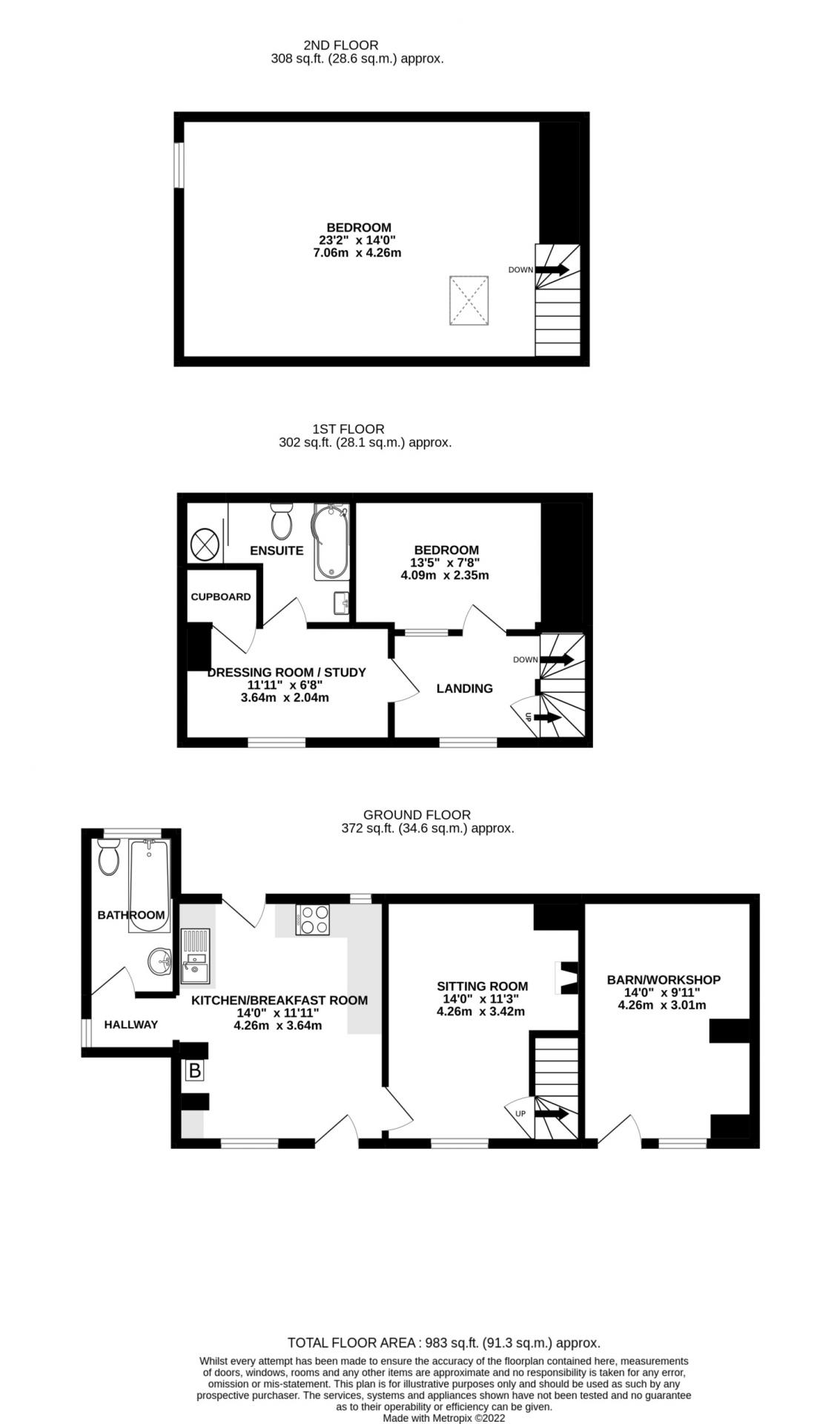
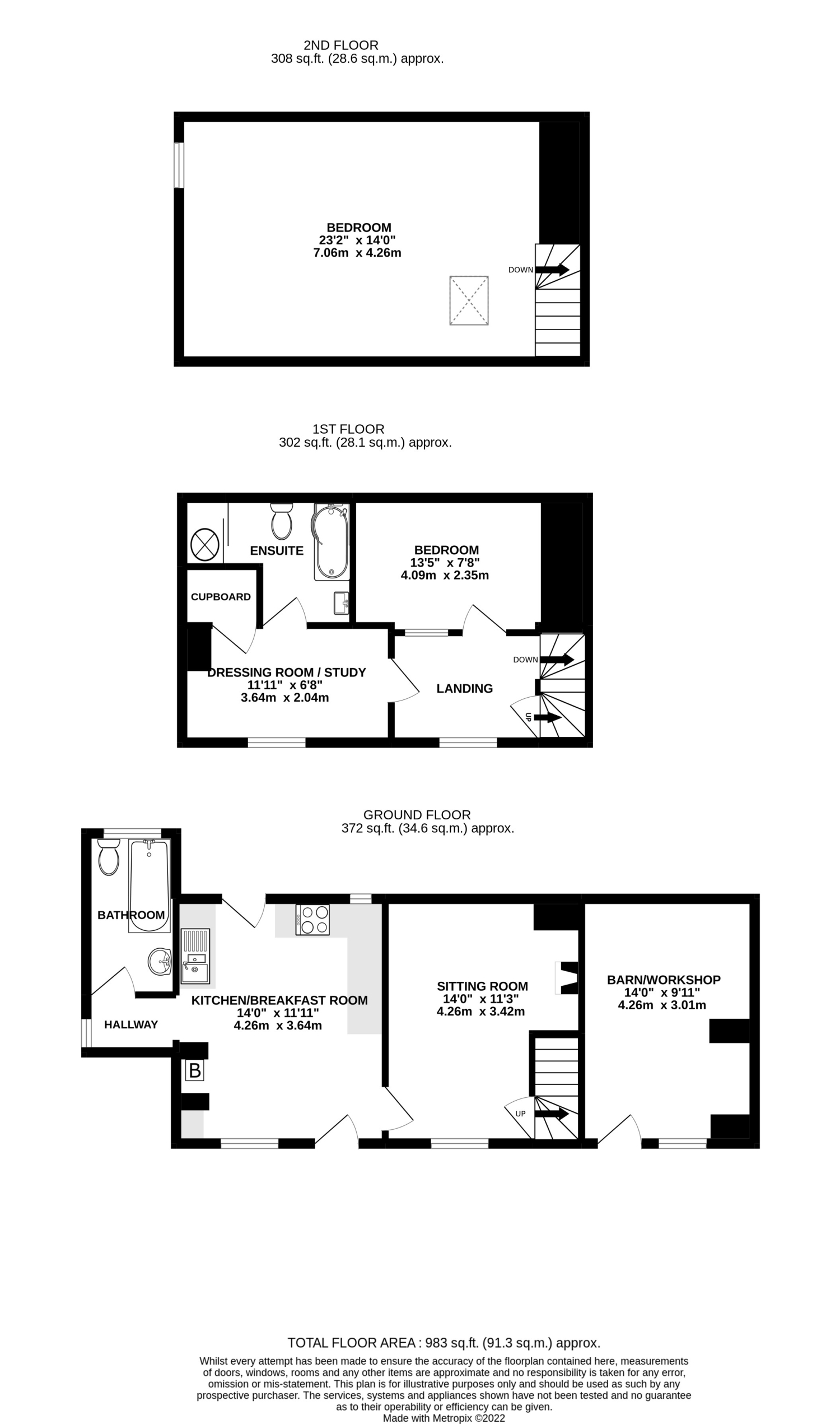
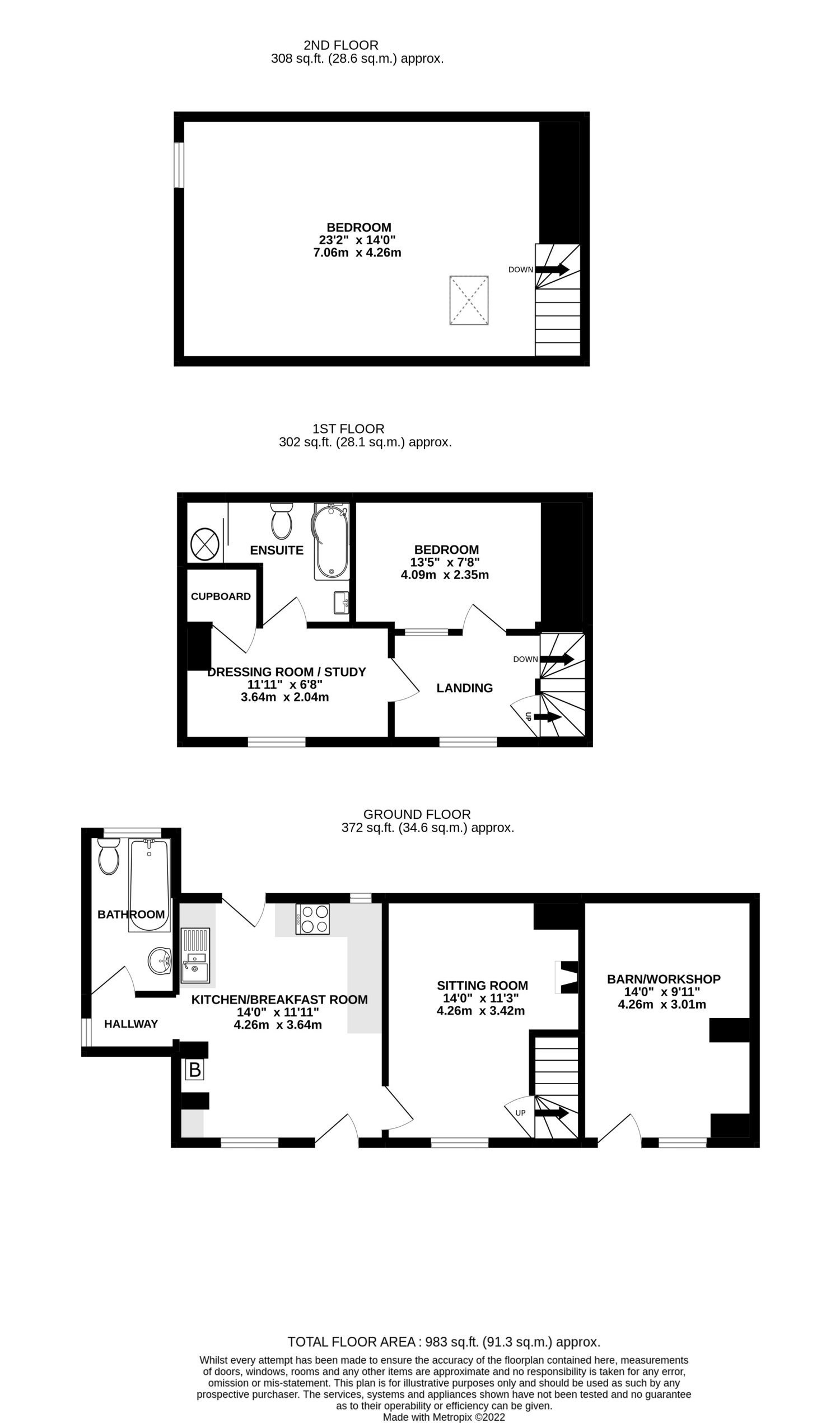
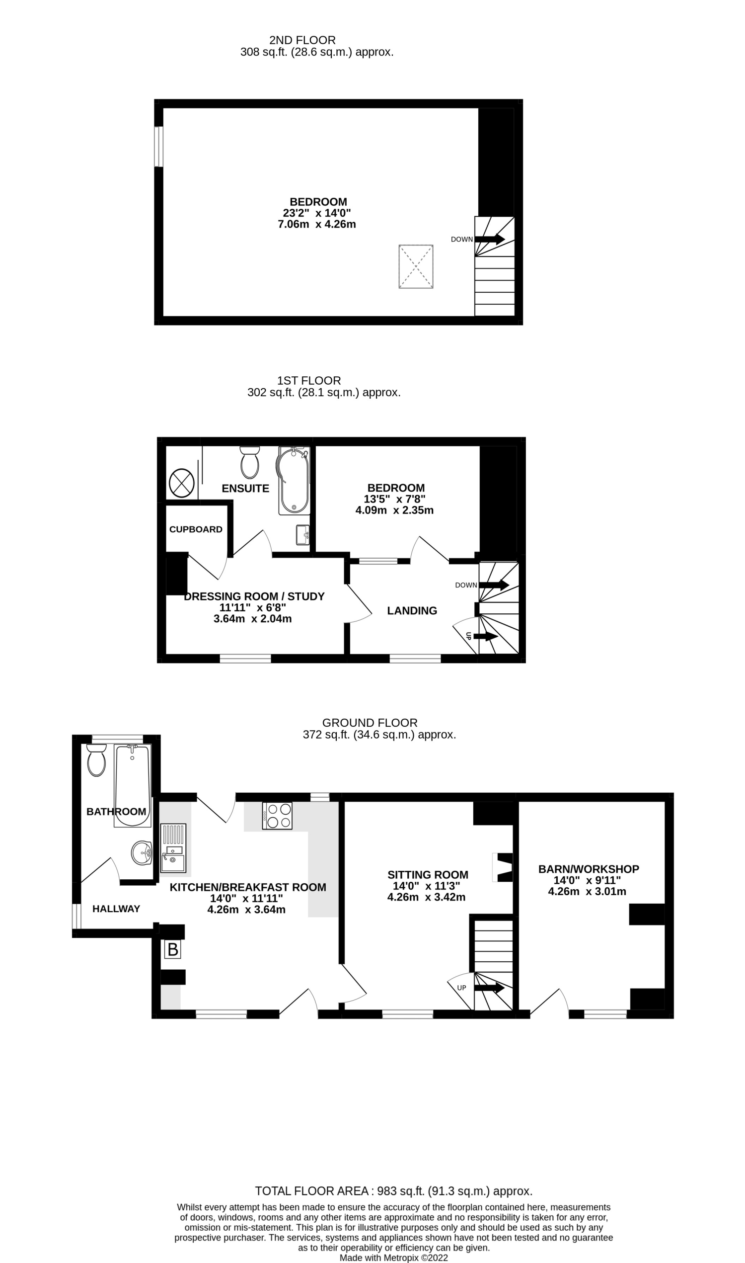
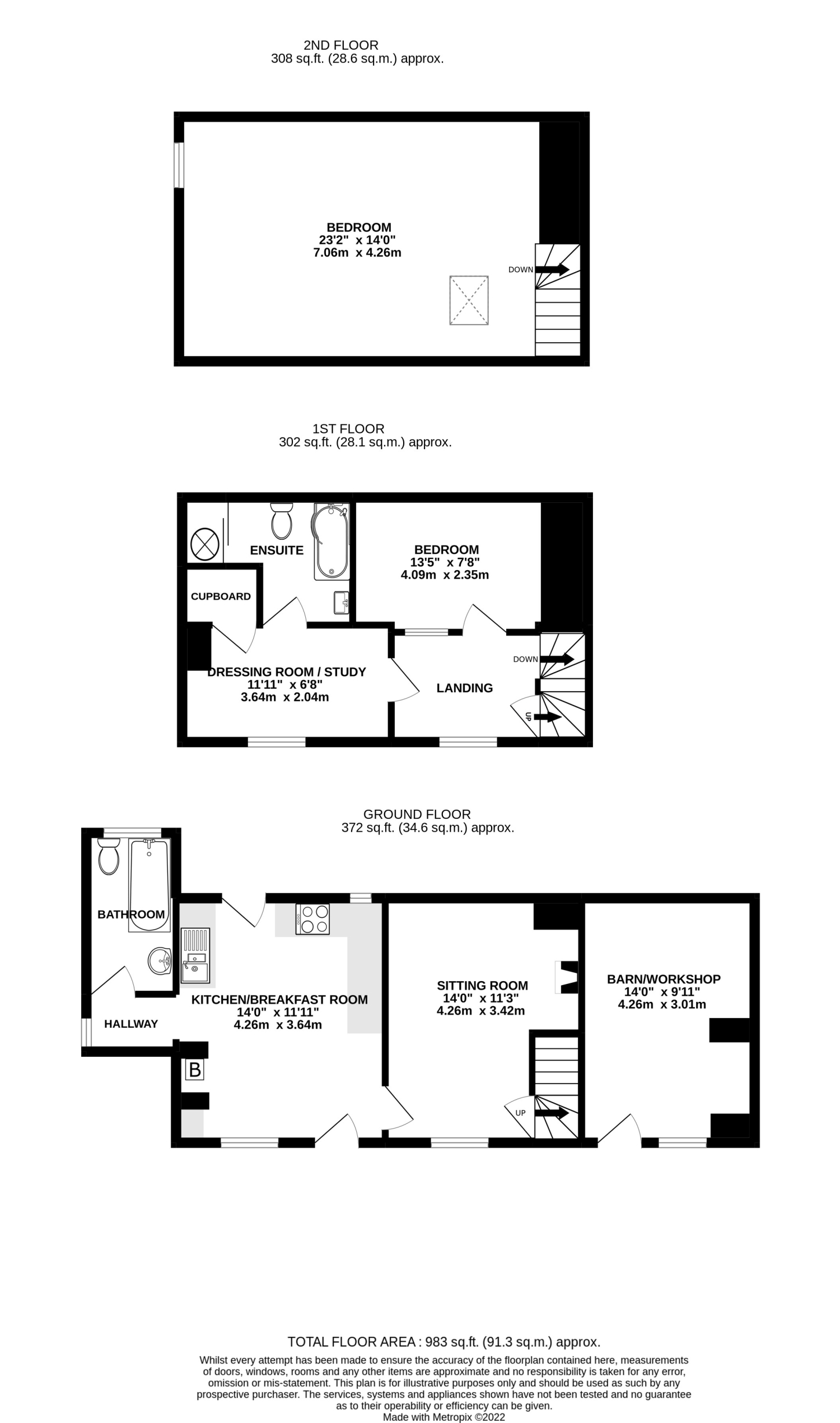
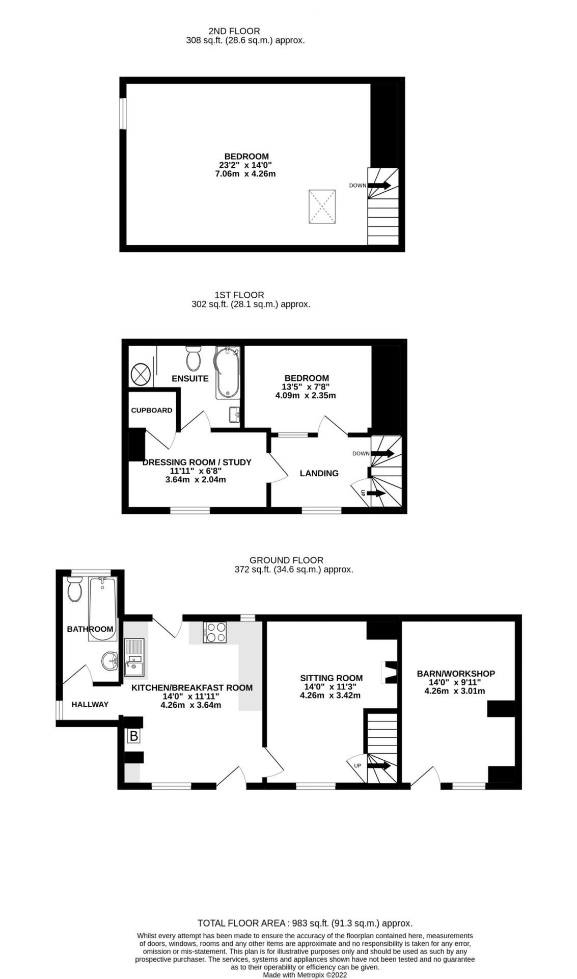
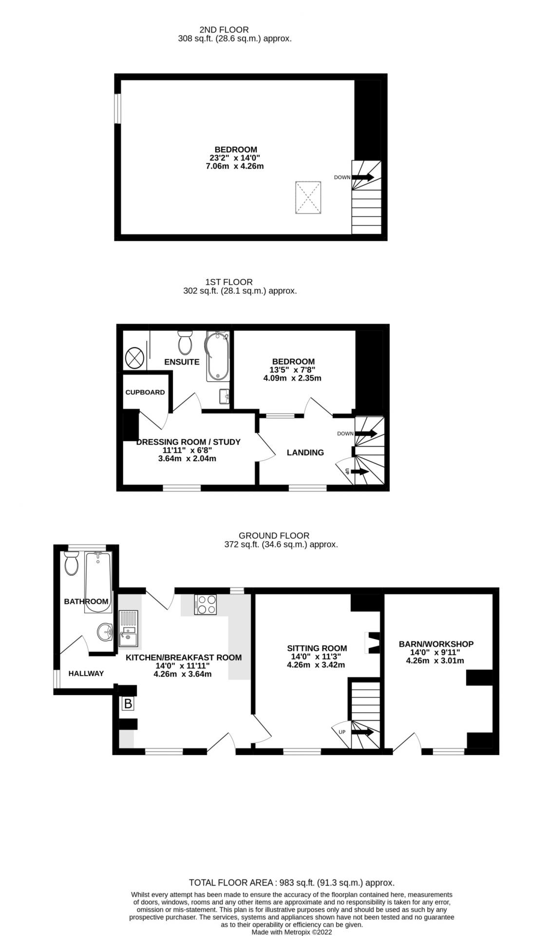
A spacious and much improved 2-bedroom, 2-bathroom period cottage within a peaceful and sought-after rural hamlet of the Windrush valley between Burford and witney. Available immediately and for a long let if desired, the charming period cottage includes an attic room conversion as well as a, second bathroom, to provide a superb blend of historical character with modern convenience. Further benefits include a generously proportioned kitchen diner - with a good selection of units together with an oven and hob - with extractor over, alongside ample space for further appliances, dining table and seating. The adjacent sitting room is also of good-sized proportions and features hardwearing flagstone flooring and a large inglenook fireplace complete with inset log burning stove. In addition, there is a ground floor bathroom with shower over the bath. A traditional wooden turned staircase leads to a first-floor landing with a bedroom off and access through to a dressing area and newly fitted bathroom with a fitted shower over the bath. Completing the accommodation is a further winding staircase leading to a generously sized, dual aspect, attic bedroom. heating is supplied via an oil-fired central heating system feeding radiators and Giga clear ultrafast fibre broadband is also available to connect and ideal whether for streaming entertainment or home working. externally, to the rear of the cottage there is an enclosed courtyard garden - with opportunities for alfresco dining, whilst to the front there is allocated off street parking and a sizeable stone outbuilding and separate log store. available shortly and for a long let if desired, we would urge an early viewing of this excellent opportunity to avoid disappointment.
Agent notes: these particulars have been prepared as a general guide only. A detailed survey has not been carried out, nor the services, appliances, fittings, etc, been tested. If room sizes are included, they are for guidance and illustration purposes only. They may not be to scale and should not be relied upon for furnishing or other purposes. If there are any important matters likely to affect your decision to proceed, please contact us before viewing the property.

Tenant protection: Moore Allen & Innocent is a member of the royal institution of chartered surveyor's client money protection scheme, and a member of the property ombudsman independent redress scheme. You can find out more details via our website or by contacting the office directly.

Landlords: do you own a similar property? Moore Allen & Innocent are an independent, multi-award winning, sales and lettings estate agency with over 175 years of property experience across the Cotswolds and beyond. If you have a similar property that you would like rented out or are looking for an agent to take away the stress and manage a property for you, we would be delighted to discuss how we can help. For more information regarding our services and a free, no-obligation review, please contact us today.

Property Ref: 593341_9204016

Share:

Similar Properties

Elmer Close, MALMESBURY

3 Bedroom Semi-Detached House | £1,350pcm

*** MOORE ALLEN & INNOCENT *** are delighted to offer this EXTENDED AND GREATLY IMPROVED 3 bedroom family home situated...

The Pentre, KEMPSFORD

3 Bedroom Cottage | £1,350pcm

*** MOORE ALLEN & INNOCENT *** Are delighted to offer this newly extended and refurbished 3 bedroom cottage with garden...

Bibury Road, HATHEROP

2 Bedroom Semi-Detached House | £1,350pcm

*** MOORE ALLEN & INNOCENT *** are delighted to offer this NEWLY AND COMPREHENSIVELY RENOVATED 2 DOUBLE BEDROOM Cotswold...

Church Street, CIRENCESTER

3 Bedroom Semi-Detached House | £1,375pcm

*** MOORE ALLEN & INNOCENT *** are delighted to offer this DECEPTIVELY SPACIOUS 3 bedroom, 2 reception room property in...

Winchcombe Gardens, SOUTH CERNEY

3 Bedroom Semi-Detached House | £1,395pcm

*** MOORE ALLEN & INNOCENT *** are delighted to offer this very WELL-PRESENTED 3-bedroom modern family home within a sec...

Church Lane, DRIFFIELD

3 Bedroom Cottage | £1,395pcm

*** MOORE ALLEN & INNOCENT *** are delighted to offer this charming and well-presented 2 DOUBLE BEDROOM cottage with a S...

Moore Allen & Innocent (Cirencester)

33 Castle Street, Cirencester, Gloucestershire, GL7 1QD

01285 648100

How much is your home worth?

Use our short form to request a valuation of your property.

Request a Valuation
©2026 The Guild of Property Professionals. All rights reserved. Terms and Conditions | Privacy Policy | Cookie Policy | Complaints Policy | Members Login
The Guild of Property Professionals Trading Address: 121 Park Lane, London W1K 7AG. GPEA Limited. Registered in England & Wales.  Company No: 02819824.  Registered Office Address: 2 St. Stephen's Court, St. Stephen's Road, Bournemouth, Dorset, England, BH2 6LA.  VAT Registration No: 576 8795 61
Book a Property Valuation Update Cookies Preferences