Elmer Close, MALMESBURY

£1,350pcm
Let Agreed
This property listing is now Let Agreed

3 Bedroom Semi-Detached House for rent in Malmesbury

2 3 1
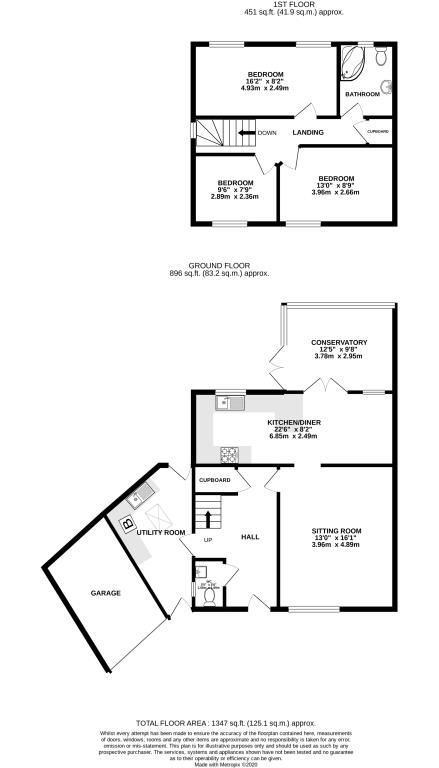
  • Extended 3 Bedroom Family Home
  • Generously Proportioned Rooms
  • Separate Sitting & Dining Rooms
  • Conservatory & Large Utility
  • Landscaped Rear Garden
  • Garage & Off Road Parking
  • Available For A Long Let If Desired
  • Secluded Cul-De-Sac Location
  • Walking Distance To Town Centre

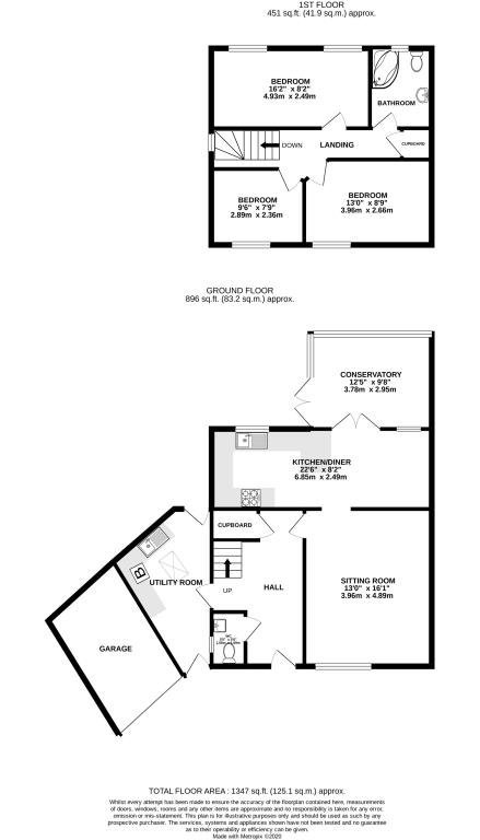
An extended 3-bedroom family home situated within a secluded cul-de-sac of the established Reeds Farm residential area of town, yet convenient for the towns primary and secondary schools, gym, supermarkets and High Street. This well-appointed property offers spacious accommodation set over 2 floors including a generously proportioned conservatory and a large, dedicated utility room with fitted units, space for appliances and access to the integral single garage. Available for a long let if desired the semi-detached property also features a generously sized kitchen/dining room including a very good range of appliances alongside a good number of base and eye level fitted storage units. Also on the ground floor is a good-sized sitting room, a useful downstairs cloakroom and sizeable entrance hall. To the first floor there are 3 bedrooms in total comprising 2 double bedrooms together with a smaller bedroom 3, which could alternatively be used as a study/home office if preferred. Completing the accommodation is an attractive family bathroom featuring a corner bath with shower over. Externally the property enjoys the benefit of a landscaped rear garden incorporating patio areas, raised decking, lawn and shrubs, whilst to the front there is off-road parking area with space for 3 cars as well as the single garage. The property is warmed throughout via a gas fired central heating system complemented by uPVC double glazing. Available for a long let if desired it is one of the best examples of its type of enlarged properties and viewing is therefore highly recommended.
Viewings are welcomed by appointment 6 days a week although be aware that viewings may require at least 24 hours' notice to arrange access. Please note that prior to any subsequent tenancy offer being accepted, all prospective tenants will be required to supply identification documents and proof of affordability.
Agent notes: these particulars have been prepared as a general guide only. A detailed survey has not been carried out, nor the services, appliances, fittings, etc, been tested. If room sizes are included, they are for guidance and illustration purposes only. They may not be to scale and should not be relied upon for furnishing or other purposes. If there are any important matters likely to affect your decision to proceed, please contact us before viewing the property.

Tenant protection: Moore Allen & Innocent is a member of the royal institution of chartered surveyor's client money protection scheme, and a member of the property ombudsman independent redress scheme. You can find out more details via our website or by contacting the office directly.

Landlords: do you own a similar property? Moore Allen & Innocent are an independent, multi-award winning, sales and lettings estate agency with over 175 years of property experience across the Cotswolds and beyond. If you have a similar property that you would like rented out or are looking for an agent to take away the stress and manage a property for you, we would be delighted to discuss how we can help. For more information regarding our services and a free, no-obligation review, please contact us today.

Property Ref: 593341_9204621

Share:

Similar Properties

The Pentre, KEMPSFORD

3 Bedroom Cottage | £1,350pcm

*** MOORE ALLEN & INNOCENT *** Are delighted to offer this newly extended and refurbished 3 bedroom cottage with garden...

Bibury Road, HATHEROP

2 Bedroom Semi-Detached House | £1,350pcm

*** MOORE ALLEN & INNOCENT *** are delighted to offer this NEWLY AND COMPREHENSIVELY RENOVATED 2 DOUBLE BEDROOM Cotswold...

The College, ASTHALL

2 Bedroom Cottage | £1,350pcm

*** MOORE ALLEN & INNOCENT *** are delighted to offer this attractive and GENEROUSLY PROPORTIONED 2 BEDROOM Period cotta...

Church Street, CIRENCESTER

3 Bedroom Semi-Detached House | £1,375pcm

*** MOORE ALLEN & INNOCENT *** are delighted to offer this DECEPTIVELY SPACIOUS 3 bedroom, 2 reception room property in...

Winchcombe Gardens, SOUTH CERNEY

3 Bedroom Semi-Detached House | £1,395pcm

*** MOORE ALLEN & INNOCENT *** are delighted to offer this very WELL-PRESENTED 3-bedroom modern family home within a sec...

Church Lane, DRIFFIELD

3 Bedroom Cottage | £1,395pcm

*** MOORE ALLEN & INNOCENT *** are delighted to offer this charming and well-presented 2 DOUBLE BEDROOM cottage with a S...

Moore Allen & Innocent (Cirencester)

33 Castle Street, Cirencester, Gloucestershire, GL7 1QD

01285 648100

How much is your home worth?

Use our short form to request a valuation of your property.

Request a Valuation
©2026 The Guild of Property Professionals. All rights reserved. Terms and Conditions | Privacy Policy | Cookie Policy | Complaints Policy | Members Login
The Guild of Property Professionals Trading Address: 121 Park Lane, London W1K 7AG. GPEA Limited. Registered in England & Wales.  Company No: 02819824.  Registered Office Address: 2 St. Stephen's Court, St. Stephen's Road, Bournemouth, Dorset, England, BH2 6LA.  VAT Registration No: 576 8795 61
Book a Property Valuation Update Cookies Preferences