This bright and airy first-floor office offers a versatile Use Class E space. The generous natural light makes it suitab

£55,000pa

Office for rent in Barnet

  • Large Office
  • Allocated Parking
  • Class E Use
  • New Lease

LOCATION

Located just over a mile from High Barnet Underground Station, the property is also a 15-minute walk from High Barnet High Street. Queens Road is located off Wood Street, Barnet, in a peaceful residential turning. The unit is located towards the end of Wood Street, with close access to Third Field.



Tenants will have easy access to a variety of cafes and restaurants along High Barnet, High Street, with retailers such as Greggs, Costa Coffee, Iceland, and the main shopping centre, The Spires.



DESCRIPTION

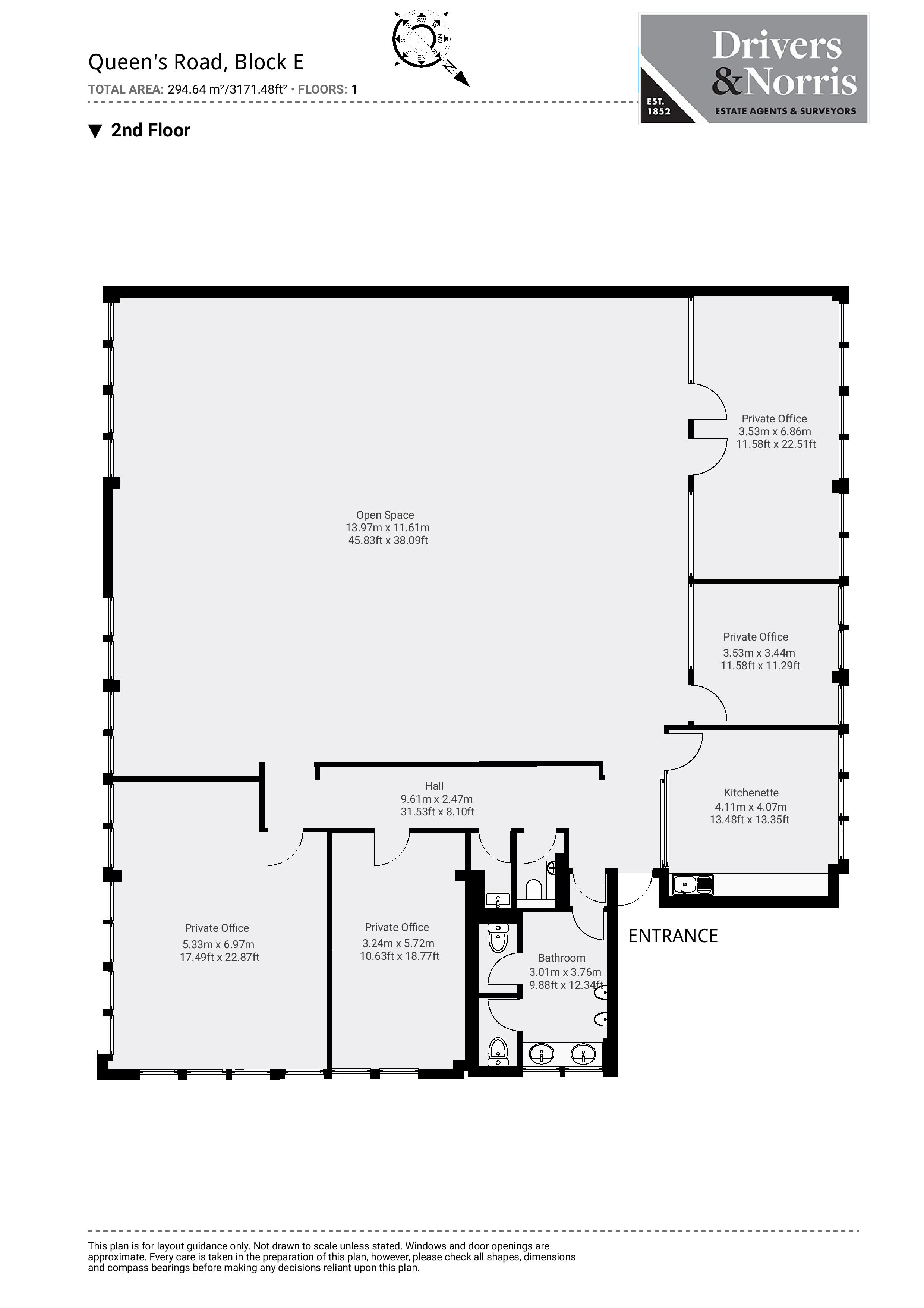
This self-contained office occupies the entire first floor. The space is primarily open-plan and includes a kitchenette, four private meeting rooms, and WC facilities.



The layout offers flexible accommodation and is suitable for various uses, subject to obtaining the necessary planning consent.



Rent + Service Charge (paid quartlery in advance)



Estate Charge - £1186.69

Building Service Charge - £1031.12



ACCOMMODATION

Gross internal floor area 3171.48 Sq Ft / 294.64 Sq M



AMENITIES

Allocated Parking spaces

Air Conditioning (Heating & Cooling)

Private Office Meeting Rooms

WC facilities

Kitchen

Abundance of natural light

Service Charge fee applicable



TERMS

New Full Repairing and Insuring lease will be granted to the ingoing tenant, subject to periodic rent reviews, terms to be agreed.



VAT

Property is elected for VAT

Property Ref: DAN_DAN250631

Share:

Similar Properties

First floor office space located in light industrial/office estate, available by way of a new lease. The property also i

Office | £40,000pcm

LOCATION Located just over a mile from High Barnet Underground Station, the property is also a 15-minute walk from High...

To Let: ground floor office, available by way of a new lease

Office | £24,000pa

New lease - Self contained ground floor office/studio space, thought suitable for a number of trades, subject to plannin...

Oakfield Court Haslemere Road

3 Bedroom Flat | £10,833pcm

Three bedroom FLAT set within small development just a short walk from FINSBURY PARK. Benefitting from FITTED KITCHEN, l...

Halton Road Islington

1 Bedroom Flat | Asking Price £210,000

An opportunity to purchase a 50% share in this second floor purpose built one bedroom apartment on this attractive tree...

Moriatry Close Holloway

Flat | Asking Price £260,000

This well-presented purpose-built studio apartment offers smart, efficient living space of approximately 325 sq.ft, idea...

City Point 107 York Way

1 Bedroom Flat | Offers in excess of £275,000

One bedroom apartment arranged over two floors within this contemporary development superbly located between Islington,...

Drivers & Norris (Holloway)

Holloway, London, N7 6HP

0207 607 5001

How much is your home worth?

Use our short form to request a valuation of your property.

Request a Valuation
©2025 The Guild of Property Professionals. All rights reserved. Terms and Conditions | Privacy Policy | Cookie Policy | Complaints Policy | Members Login
The Guild of Property Professionals Trading Address: 121 Park Lane, London W1K 7AG. GPEA Limited. Registered in England & Wales.  Company No: 02819824.  Registered Office Address: 2 St. Stephen's Court, St. Stephen's Road, Bournemouth, Dorset, England, BH2 6LA.  VAT Registration No: 576 8795 61
Book a Property Valuation Update Cookies Preferences