The Forge High Street Benfleet

£1,350pcm
Let Agreed
This property listing is now Let Agreed

2 Bedroom Flat for rent in Benfleet

1 2 1
  • 2 BEDROOM GROUND FLAT
  • TWO DOUBLE BEDS
  • BEDROOMS WITH DOORS TO DECKED AREA
  • SIDE ACCESS
  • OPEN PLAN KITCHEN/LOUNGE
  • KITCHEN WITH APPLIANCES
  • BENFLEET STATION OVER THE ROAD
  • CLOSE TO COUNTRY PARK
  • LARGE SHOWER ROOM

Welcome to this charming property located in the heart of Benfleet at The Forge on High Street. This delightful flat boasts a cosy reception room, perfect for relaxing or entertaining guests. With two bedrooms, newly fitted shower room.

Convenience is key with this property being close to the station, making commuting a breeze. Situated on the ground floor, accessibility is a plus for all. The large shower room offers a luxurious touch, providing a comfortable and modern space for your daily routines.

One of the standout features of this property is the own rear garden, a rare find for a flat. Imagine enjoying a cup of tea or hosting a barbecue in your private outdoor space. Additionally, the double-glazed windows ensure a peaceful and energy-efficient environment.

Don't miss out on the opportunity to own this lovely flat in a prime location with fantastic amenities. Book a viewing today and envision the possibilities of making this property your new home.

EPC Rating C. Council tax band B

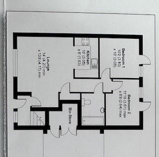
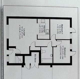
Lounge - 4.27m x 4.17m (14' x 13'8") -

Kitchen - 3.05m x 1.83m (10' x 6') -

Bedroom 1 - 3.10m x 3.05m (10'2" x 10') -

Bedroom 2 - 3.61m x 2.64m (11'10" x 8'8") -

Bathroom - 2.44m x 1.50m (8' x 4'11") -

Garden - 5.79m x 8.23m (19' x 27') -

Property Ref: 27381_34284989

Share:

Similar Properties

Southside, Leigh Road, Leigh On Sea

2 Bedroom Apartment | £1,275pcm

A charming two-bedroom ground floor apartment located in the desirable Southside area of Leigh On Sea. This purpose-buil...

Oakleigh Park DriveLeigh On SeaEssex

1 Bedroom Flat | £950pcm

Nestled in the heart of Leigh On Sea, this charming first-floor flat in Oakleigh Park Drive offers a delightful blend of...

Morello QuarterCherrydown EastBasildonEssex

2 Bedroom Flat | £1,450pcm

Welcome to this beautifully presented flat located in the desirable Morello Quarter of Cherrydown East, Basildon, Essex....

Morello Quarter Cherrydown East Basildon Essex

2 Bedroom Apartment | £1,450pcm

This modern two-bedroom apartment offers stylish and convenient living, featuring a spacious lounge with access to a pri...

Morello Quarter, Cherrydown East, Basildon

2 Bedroom Apartment | £1,495pcm

Welcome to this modern apartment located in the desirable area of Cherrydown East, Basildon. This well-appointed propert...

Brown & Brand (Hadleigh)

Hadleigh, Essex, SS7 2RD

01702 552966

How much is your home worth?

Use our short form to request a valuation of your property.

Request a Valuation
©2025 The Guild of Property Professionals. All rights reserved. Terms and Conditions | Privacy Policy | Cookie Policy | Complaints Policy | Members Login
The Guild of Property Professionals Trading Address: 121 Park Lane, London W1K 7AG. GPEA Limited. Registered in England & Wales.  Company No: 02819824.  Registered Office Address: 2 St. Stephen's Court, St. Stephen's Road, Bournemouth, Dorset, England, BH2 6LA.  VAT Registration No: 576 8795 61
Book a Property Valuation Update Cookies Preferences