Station Road, Clacton-on-Sea

£7,000pa

Office for rent in Clacton-on-Sea

  • Available Now
  • Prominent Town Centre Location
  • Commercial Office Premises to Rent
  • Kitchen Area
  • W.C
  • Seven Seperate Office Spaces
  • Neutrally Decorated
  • Three Parking Spaces Negotiable
  • Approx 1,200 Sq Ft

Rent: £7000 PA
Deposit: £1750
Type of Lease: Full maintaining, repairing and insuring lease
Lease Length: 5 year lease with negotiable break clause

The rent and deposit is negotiable upon application.

Additional notes: There are three parking spaces behind the premises which the landlord is offering at £200 per quarter, per parking space. Please note this is additional to the agreed monthly rent.

Deposit: £1,750
Holding Deposit: £500

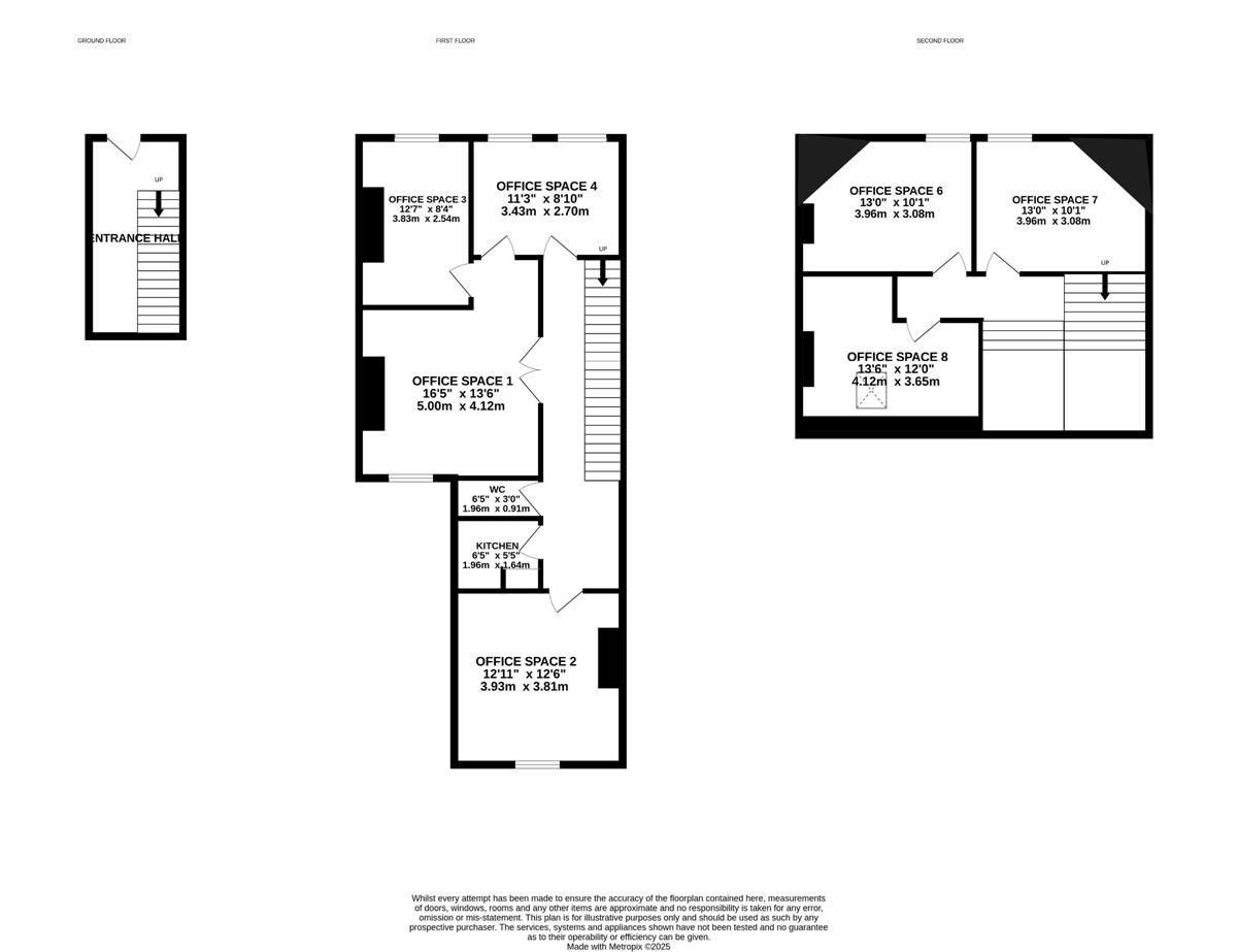
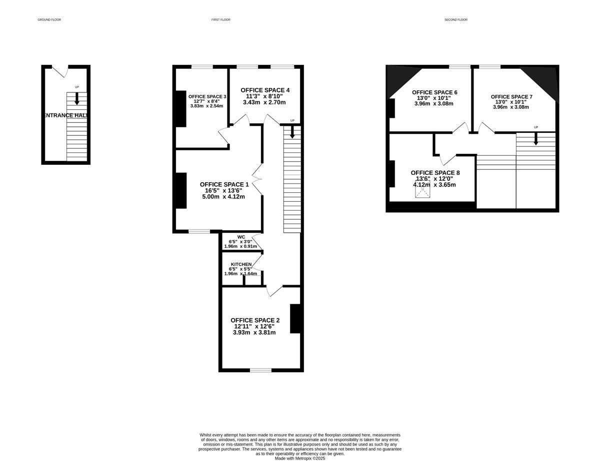
Details with approximate only room sizes
Entrance door to

Communal Hall
Stairs to first floor landing, door leading to

Office 2 w: 3.38m x l: 3.69m (w: 11' 1" x l: 12' 1")
Window to rear

Kitchen w: 1.53m x l: 2.15m (w: 5' x l: 7' 1")
Window to side, a range of white fronted base level units including cupboards and drawers, additional storage cupboard.

Wet Room w: 0.76m x l: 1.84m (w: 2' 6" x l: 6' )
Window to side, low level W.C and pedestal wash hand basin

Office 1 w: 3.97m x l: 3.68m (w: 13' x l: 12' 1")
Window to rear

Office 3 w: 2.45m x l: 3.67m (w: 8' x l: 12' )
Window to front

Office 4 w: 3.36m x l: 2.46m (w: 11' x l: 8' 1")
Two windows to front

Second Floor Landing
Access to all second floor rooms

Room 1 w: 3.96m x l: 3.04m (w: 13' x l: 10' )
Window to front, restricted head height in some areas due to being in the eaves.

Room 2 w: 3.96m x l: 3.04m (w: 13' x l: 10' )
Window to front, restricted head height in some areas due to being in the eaves.

Room 3 w: 3.99m x l: 0m (w: 13' 1" x l: )
Velux window, restricted head height in some areas due to being in the eaves.

Outside
Additional 3 parking spaces can be purchased for £200 per quarter per space

Property Ref: 5628112_CL0094

Share:

Similar Properties

St Johns Road, Clacton-on-Sea

Office | £6,000pa

We are pleased to offer for rent this commercial premises situated in the sought after area of Great Clacton. The premis...

St. Andrews Road, Clacton-on-Sea

3 Bedroom Terraced House | £1,350pcm

We are pleased to offer for rent this three bedroom, terraced house positioned within easy reach of the town centre, tra...

Coopers Lane, Clacton-on-Sea

3 Bedroom Semi-Detached House | £1,350pcm

Mike Vincent & Son are pleased to offer for rent this spacious, three bedroom semi detached home benefitting from lounge...

Highfield Grange Holiday Park, London Road, Clacton-on-Sea

2 Bedroom Chalet | £30,000

This 2016 'Harwood' model static caravan measures 40' x 12'6 overall and is offered in immaculate decorative order throu...

Beach Way, Jaywick, Clacton-On-Sea

Land | £35,000

** INVESTMENT & DEVELOPMENT ** Following extensive fire damage we are offering for sale this site which is approx. 35' w...

The Lodge, Hall Crescent, Holland-on-Sea, Clacton-on-Sea

1 Bedroom Studio Apartment | £45,000

Situated on a retirement complex is this one bedroom studio apartment in good decorative order offering independent livi...

Mike Vincent & Son (Clacton on Sea)

Clacton on Sea, Essex, CO15 1SD

01255220232

How much is your home worth?

Use our short form to request a valuation of your property.

Request a Valuation
©2025 The Guild of Property Professionals. All rights reserved. Terms and Conditions | Privacy Policy | Cookie Policy | Complaints Policy | Members Login
The Guild of Property Professionals Trading Address: 121 Park Lane, London W1K 7AG. GPEA Limited. Registered in England & Wales.  Company No: 02819824.  Registered Office Address: 2 St. Stephen's Court, St. Stephen's Road, Bournemouth, Dorset, England, BH2 6LA.  VAT Registration No: 576 8795 61
Book a Property Valuation Update Cookies Preferences