Hele Lane Hill, Black Dog, Crediton, EX17 4RQ

£1,300pcm

3 Bedroom Not Specified for rent in Crediton

1 3 1
  • Substantial three bed detached property
  • Garage and private drive
  • Pleasant village location
  • Brand new double glazing
  • New carpets and redecorated
  • Very large, private garden

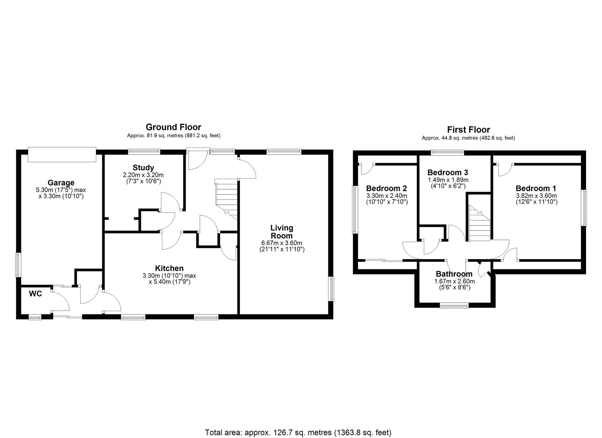
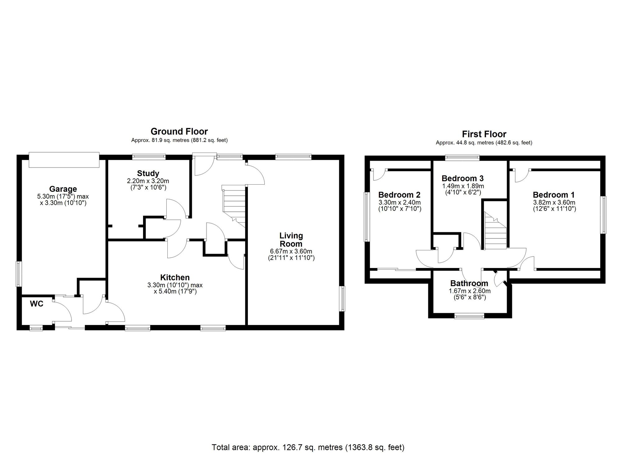
Tree Oak is a three bedroom, detached property in the village of Black Dog that is currently undergoing, substantial renovation. The property is set back from the road and is accessed via its own private drive and offers parking for a number of cars as well as the attached garage. There is a small front garden and then a very large, level back garden which is grassed and has some fruit trees.

Internally the property offers generous living space, on the ground floor there is a large, country style kitchen, with inbuilt double oven and ceramic hob as well as oil fired Rayburn and plenty of space for a dining table, there is also a large living room and a separate study or play room as well as hallway offering access to the rear garden. On the first floor there are good sized, double bedrooms as well as a smaller third bedroom and the family bathroom. As is clear from the pictures the property is undergoing extensive refurbishment, which includes new double glazing, decoration and new carpets, which when complete will offer a great family home and lifestyle.

Interested in a viewing?

Give us a call or drop us an email with a couple of dates and times that work for you and we will get you booked in.  You will always find our latest opening hours on the Helmores website so you know when the team is available.

Ready to apply?

We can send you a simple online application form or provide a paper copy if you prefer.  We will also need to check your ID to meet the Right to Rent rules, which apply to all tenancies. Full government guidance can be found here:

https://www.gov.uk/government/publications/right-to-rent-document-checks-a-user-guide

Need help with the renting process?

Our rentals team is here to guide you from first enquiry to move in day, keeping everything clear and straightforward.  If you’d like to read ahead, our step by step renting guide is here:

https://helmores.com/guide-to-renting-property

 

Available :  Mid March

Rent : £1300 pcm

Deposit : - £1300 Protected with the Deposit Protection Scheme (DPS) https://www.depositprotection.com

Furnished : No

Pets : Considered

Parking :  Yes

EPC Rating : TBC

Tenancy Type : Assured Shorthold Tenancy

Broadband : Check local providers and speeds at https://checker.ofcom.org.uk/broadband-coverage

Mobile Signal : Coverage varies by network. Check your provider at https://checker.ofcom.org.uk/mobile-coverage

Redress Scheme : Helmores is a member of The Property Ombudsman (TPO) https://www.tpos.co.uk

Client Money Protection : Helmores is covered by Propertymark Client Money Protection https://www.propertymark.co.uk/professional-standards/client-money-protection/

Tenant Checks : All applicants will undergo full referencing and must meet Right to Rent requirements. Government guidance :

https://www.gov.uk/government/publications/right-to-rent-document-checks-a-user-guide

Tenant Fees : No other tenant fees apply under the Tenant Fees Act 2019.

 

DIRECTIONS :

For sat nav purposes please use the property name or the postcode

What3words - ///reshape.idealist.reflector

BLACK DOG is a pretty little village sitting astride one of the highest ridges of land between Dartmoor and Exmoor with panoramic views across the countryside. The village is perfect for those seeking a quiet, rural idyll. Three miles away is Morchard Bishop where there’s a lovely community-run shop as well as a doctors and a primary school. Further south, six miles away is the market town of Crediton with its selection of independent shops and larger supermarkets.

Energy Efficiency Current: 35.0
Energy Efficiency Potential: 79.0

Important Information

  • This Council Tax band for this property is: D

Property Ref: 8daa6e7e-6c6e-4357-991b-30c6d9988461

Share:

Similar Properties

Blagdon Rise, Crediton, EX17

3 Bedroom Detached Bungalow | £1,250pcm

A modernised, well presented & extended 3 bedroom detached bungalow, with good sized gardens & parking

Collatons Walk, Bow, EX17

3 Bedroom Link Detached House | £1,200pcm

Three bedroom, link detached property in very good condition with garage, garden with outbuilding and set in quiet villa...

Saxon Close, Crediton, EX17

3 Bedroom Link Detached House | £1,200pcm

Very well presented, 3 bedroom link detached property with garage and off road parking

Penton Lane, Crediton, EX17

4 Bedroom Detached House | £1,600pcm

Individual and substantial 4 bedroom property with double garage and large garden in central location

High Street, Crediton, EX17

Not Specified | Guide Price £54,995

Commercial shop 35sq metres, (380sq ft) in High Street location, store room & WC

Union Road, Redvers House Union Road, EX17

1 Bedroom Retirement Property | Guide Price £85,000

Lovely larger than average retirement flat with views over the park with great access to Crediton High Street, parking i...

Helmores (Crediton)

Crediton, Devon, EX17 3LF

01363 777999

How much is your home worth?

Use our short form to request a valuation of your property.

Request a Valuation
©2026 The Guild of Property Professionals. All rights reserved. Terms and Conditions | Privacy Policy | Cookie Policy | Complaints Policy | Members Login
The Guild of Property Professionals Trading Address: 121 Park Lane, London W1K 7AG. GPEA Limited. Registered in England & Wales.  Company No: 02819824.  Registered Office Address: 2 St. Stephen's Court, St. Stephen's Road, Bournemouth, Dorset, England, BH2 6LA.  VAT Registration No: 576 8795 61
Book a Property Valuation Update Cookies Preferences