Spreyton, Crediton, EX17

£1,450pcm

2 Bedroom Detached House for rent in Crediton

1 2 1
  • Beautiful barn conversion in rural location
  • Air source heat pump and very good energy performance
  • Large open plan kitchen/living space
  • Very large outside space
  • Outbuildings and parking for several cars

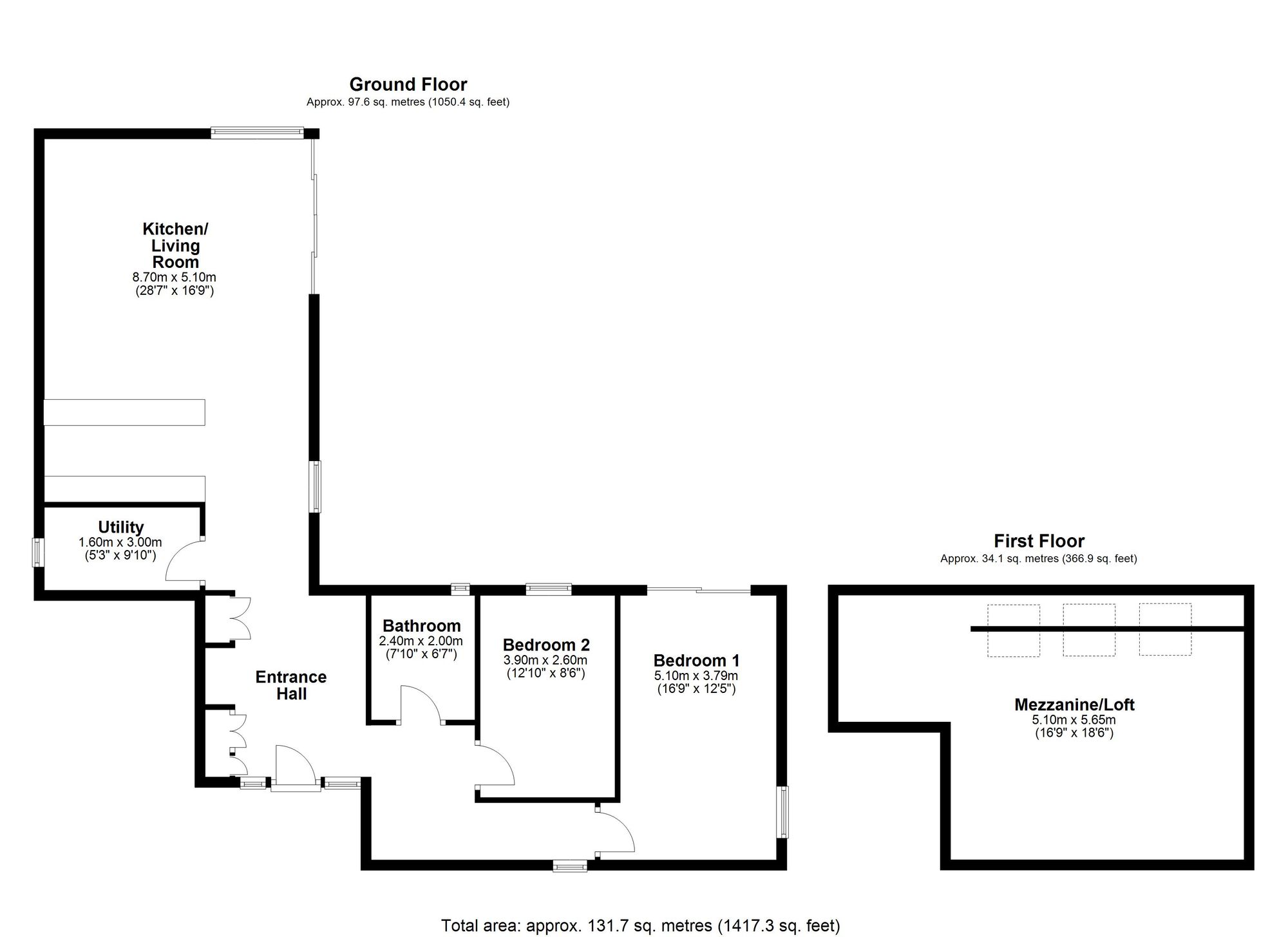
The Little Tractor Barn near Spreyton, is a recently completed conversion and offers a unique and bespoke property with large outside space. The property is situated between Spreyton and Bow and consists of a large, elegant kitchen, diner/living space that looks out on to the garden and the countryside beyond. This is equipped with modern kitchen including cooker and electric hob and integrated appliances and has large bi-fold doors that let in plenty of natural light and offer a fantastic view. There are two bedrooms and a lovely bathroom with bath and shower as well as utility area with log burner. There is a mezzanine level that offers additional space for storage. Outside of the property there is a large patio area as well as the very generous garden, outbuilding and parking. The property is equipped with full double glazing and is served by new air source heat pump.

TERMS :

Available - Now

Rent - £1450pcm

Deposit - £1450

Unfurnished

Heating - Air source heat pump and log burner

Pets - Considered

DIRECTIONS : Please use the postcode for sat nav purposes

What3words - /////////relations.miracles.lookout

SPREYTON lies to the north of Dartmoor National Park and is famous for its connection to the tale of Old Uncle Tom Cobley. The village has a well regarded local pub, a small primary school, modern village hall, community shop and monthly farmers market. The village is really convenient for the A30 linking to Okehampton and Cornwall to the west, and Exeter and the M5 to the east.

I’m INTERESTED to look! What next?

We’ll fix you a viewing appointment - phone, email or call into the office (we’re open 7 days a week) with some dates and times that suit you.

I want to APPLY! What next?

You’ll need to complete an application form which you can be given a paper copy of or we can send you a link to your email.

We also need to check your ID so that we comply with the Right to Rent check, which is a legal requirement now for all tenancies – this can be found at https://www.gov.uk/government/publications/right-to-rent-document-checks-a-user-guide

HELP! I need more information on the whole renting process!

We’re here to hold your hand through the entire process. So, get in touch with Helmores rental dept – the team are very friendly, helpful, knowledgeable and REALLY want to HELP you find your perfect home!

You can also check out our step by step RENTING GUIDE here: http://www.helmores.com/rent/renting-guide

Energy Efficiency Current: 78.0
Energy Efficiency Potential: 106.0

Important Information

  • This Council Tax band for this property is: D

Property Ref: abbba5b7-ac14-4901-922f-d54ce4566bff

Share:

Similar Properties

Shambles Drive, Copplestone, EX17

4 Bedroom Townhouse | £1,350pcm

4 Shambles drive is a large, modern 4 bedroom property in village location, only 5 minutes from Crediton.

Tedburn St. Mary, Exeter, EX6

3 Bedroom Detached House | £1,300pcm

Modern, three bedroom property with garage and off-road parking

Lapford, Crediton, EX17

3 Bedroom House | £1,295pcm

Large, character property on grounds of public attraction in village location

Coleford, Crediton, EX17

Not Specified | Offers Over £25,000

*DUE TO THE LEVEL OF INTEREST RECEIVED ON THIS PROPERTY, WE ARE NO LONGER TAKING ANY FURTHER ENQUIRIES AT THIS TIME * A...

High Street, Crediton, EX17

Not Specified | Guide Price £54,995

Commercial shop 35sq metres, (380sq ft) in High Street location, store room & WC

Union Road, Crediton, EX17

1 Bedroom Flat | Guide Price £55,000

No Chain! This double bedroom retirement apartment includes a modern shower room, uPVC double glazed windows, plus a sch...

Helmores (Crediton)

Crediton, Devon, EX17 3LF

01363 777999

How much is your home worth?

Use our short form to request a valuation of your property.

Request a Valuation
©2025 The Guild of Property Professionals. All rights reserved. Terms and Conditions | Privacy Policy | Cookie Policy | Complaints Policy | Members Login
The Guild of Property Professionals Trading Address: 121 Park Lane, London W1K 7AG. GPEA Limited. Registered in England & Wales.  Company No: 02819824.  Registered Office Address: 2 St. Stephen's Court, St. Stephen's Road, Bournemouth, Dorset, England, BH2 6LA.  VAT Registration No: 576 8795 61
Book a Property Valuation Update Cookies Preferences