Shambles Drive, Copplestone, EX17

£1,350pcm
Let Agreed
This property listing is now Let Agreed

4 Bedroom Townhouse for rent in Crediton

2 4 2
  • 4 Bedroom, modern property
  • Accommodation over 3 levels
  • Two separate bathrooms
  • Off road, car port for 2 vehicles
  • Rear, private garden
  • Gas Central Heating
  • Fully double glazed
  • EPC - C75

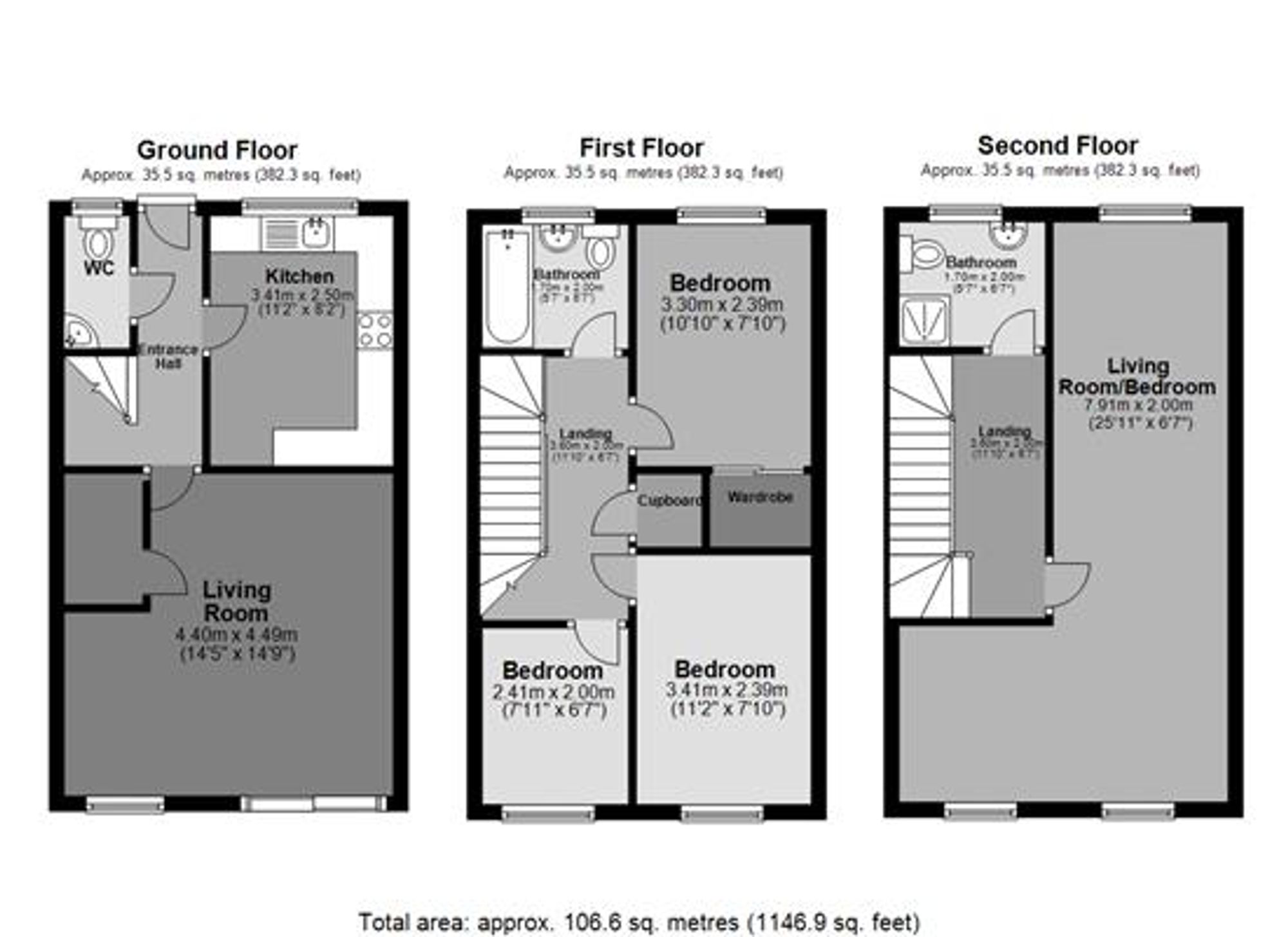
4 Shambles Drive is a large, modern 4 bedroom, 3 story house on the outskirts of Copplestone. The location is ideal for professional couples or families as is within easy walking distance of Copplestone train station and the other local amenities including shop/post office, Primary School and bus stops. The property itself is split over three levels, on entry to the ground floor there is a good sized kitchen and rear living room with patio doors to the enclosed, private garden which in turn leads out to a back yard and car port area for 2 vehicles. On the first floor there are three bedrooms (2 doubles and a single) as well as a well equipped, modern family bathroom. The second floor consists of a large room that would be a great bedroom or alternatively an additional living room or office as well as a further family bathroom. The property benefits from full double glazing, gas central heating and has a high EPC rating.

TERMS :

Rent - £13000pcm

Available - January

Unfurnished

Heating - Gas

Pets - Considered

DIRECTIONS : Follow the A377 from Crediton to Copplestone and follow the one way system through the village. As you are leaving Copplestone there is a turning for Shambles Drive on your right, follow this road down toward Station Road and No4 Shambles Drive is on your right

For sat nav please follow postcode, EX17 5HP or property address

What3words - ///committee.shop.certified

COPPLESTONE is a popular Mid Devon village adjoining the A377 Exeter /Barnstaple road about 4 miles west of Crediton. The Cathedral City of Exeter is about 12 miles to the East,with excellent connections including the M5 motorway, main line rail stations and its airport to the east of the city. To the south west and the north east of Copplestone are the National Parks of Dartmoor and Exmoor, renowned for their spectacular scenery with excellent facilities for walking, riding and fishing. The village has a post office / general stores and a modern primary school. There is a bus service through the village to Exeter via Crediton. The village also has a railway station with rains every hour to both Barnstaple and Exeter. In the village stands an ancient granite cross which is mentioned in a Saxon charter of the year 974. This cross is virtually in the centre of the County.

I’m INTERESTED to look! What next?

We’ll fix you a viewing appointment - phone, email or call into the office (we’re open 7 days a week) with some dates and times that suit you.

I want to APPLY! What next?

You’ll need to complete an application form which you can be given a paper copy of or we can send you a link to your email. We also need to check your ID so that we comply with the Right to Rent check, which is a legal requirement now for all tenancies – this can be found at https://www.gov.uk/government/publications/right-to-rent-document-checks-a-user-guide

HELP! I need more information on the whole renting process!

We’re here to hold your hand through the entire process. So, get in touch with Helmores rental dept – the team are very friendly, helpful, knowledgeable and REALLY want to HELP you find your perfect home!

You can also check out our step by step RENTING GUIDE here: https://www.helmores.com/rent/renting-guide

Energy Efficiency Current: 75.0
Energy Efficiency Potential: 86.0

Important Information

  • This Council Tax band for this property is: D

Property Ref: 399f8a09-2f9a-45ea-a7f5-93a3102dca94

Share:

Similar Properties

Tedburn St. Mary, Exeter, EX6

3 Bedroom Detached House | £1,300pcm

Modern, three bedroom property with garage and off-road parking

Lapford, Crediton, EX17

3 Bedroom House | £1,295pcm

Large, character property on grounds of public attraction in village location

Woodlands, Newton St. Cyres, EX5

3 Bedroom Semi-Detached House | £1,250pcm

3 bedroom semi-detached house in highly sought after village, New shower room , large living room, enclosed garden, gara...

Spreyton, Crediton, EX17

2 Bedroom Detached House | £1,450pcm

High quality, new barn conversion in peaceful, rural location

Coleford, Crediton, EX17

Not Specified | Offers Over £25,000

*DUE TO THE LEVEL OF INTEREST RECEIVED ON THIS PROPERTY, WE ARE NO LONGER TAKING ANY FURTHER ENQUIRIES AT THIS TIME * A...

High Street, Crediton, EX17

Not Specified | Guide Price £54,995

Commercial shop 35sq metres, (380sq ft) in High Street location, store room & WC

Helmores (Crediton)

Crediton, Devon, EX17 3LF

01363 777999

How much is your home worth?

Use our short form to request a valuation of your property.

Request a Valuation
©2025 The Guild of Property Professionals. All rights reserved. Terms and Conditions | Privacy Policy | Cookie Policy | Complaints Policy | Members Login
The Guild of Property Professionals Trading Address: 121 Park Lane, London W1K 7AG. GPEA Limited. Registered in England & Wales.  Company No: 02819824.  Registered Office Address: 2 St. Stephen's Court, St. Stephen's Road, Bournemouth, Dorset, England, BH2 6LA.  VAT Registration No: 576 8795 61
Book a Property Valuation Update Cookies Preferences