Chatsworth Road, Croydon, CR0

£1,100pcm

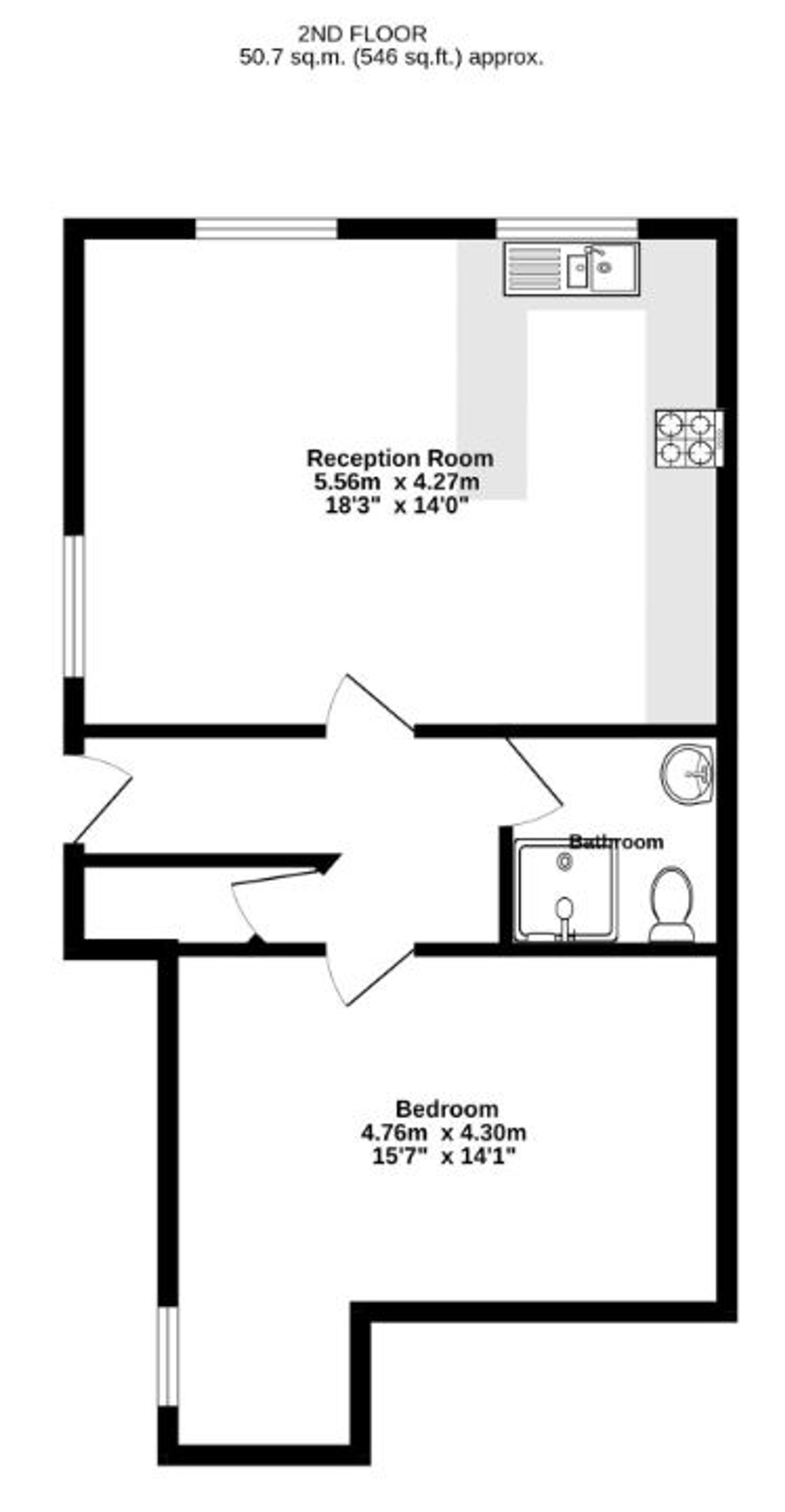
1 Bedroom Flat for rent in Croydon

1 1 1
  • Open Plan Kitchen/Living Room
  • 0.5 Miles from East Croydon Station
  • 0.2 Miles from Park Hill Park
  • 0.7 Miles from Whitgift Centre
  • Large Double Bedroom
  • Bright and Airy

A lovely 1 bedroom top floor flat situated a short distance from East Croydon Station.

The property benefits from an open plan kitchen/living room, 3 piece bathroom and a large double bedroom, with built in storage.

Park Hill Park is located just 0.2 miles away, East Croydon is easily accessible only 0.5 miles way, providing direct links to London Bridge. The Whitgift centre is only 0.7 miles away.

The property is ideal for a single professional or a couple, but also suitable for a small family.

Property Ref: 9e4a204f-18c0-4f2c-b9af-26450d8361dd

Share:

Similar Properties

Lewin Road, London, SW16

1 Bedroom Flat | £1,300pcm

Guide Price £230,000 - £250,000 A superb CHAIN FREE Studio flat flat located just 0.2 miles from Streatham Common statio...

Barrow Road, London, SW16

1 Bedroom Flat | £1,500pcm

Beautiful 1 bedroom flat tucked away on a quiet residential street in Streatham with great access to Streatham Station a...

Streatham High Road, Norwich House, SW16

1 Bedroom Flat | £1,600pcm

Modern 1 Bedroom flat in the sought after Norwich House Apartments only 0.1 miles away from Streatham Hill Station!

Malixons (Tooting)

Tooting, London, SW17 7AA

020 3196 4789

How much is your home worth?

Use our short form to request a valuation of your property.

Request a Valuation
©2025 The Guild of Property Professionals. All rights reserved. Terms and Conditions | Privacy Policy | Cookie Policy | Complaints Policy | Members Login
The Guild of Property Professionals Trading Address: 121 Park Lane, London W1K 7AG. GPEA Limited. Registered in England & Wales.  Company No: 02819824.  Registered Office Address: 2 St. Stephen's Court, St. Stephen's Road, Bournemouth, Dorset, England, BH2 6LA.  VAT Registration No: 576 8795 61
Book a Property Valuation Update Cookies Preferences