Chesterton Lane, CIRENCESTER

£1,425pcm
Let Agreed
This property listing is now Let Agreed

3 Bedroom Terraced House for rent in Gloucestershire

3 3 2
  • Period Town House
  • 3-4 Bedrooms
  • Ground Floor Bedroom With Ensuite Shower Room
  • Separate Sitting And Dining Rooms
  • Fitted Kitchen With Separate Utility
  • Gas Fired Central Heating
  • Off Road Parking
  • Good Sized Rear Garden

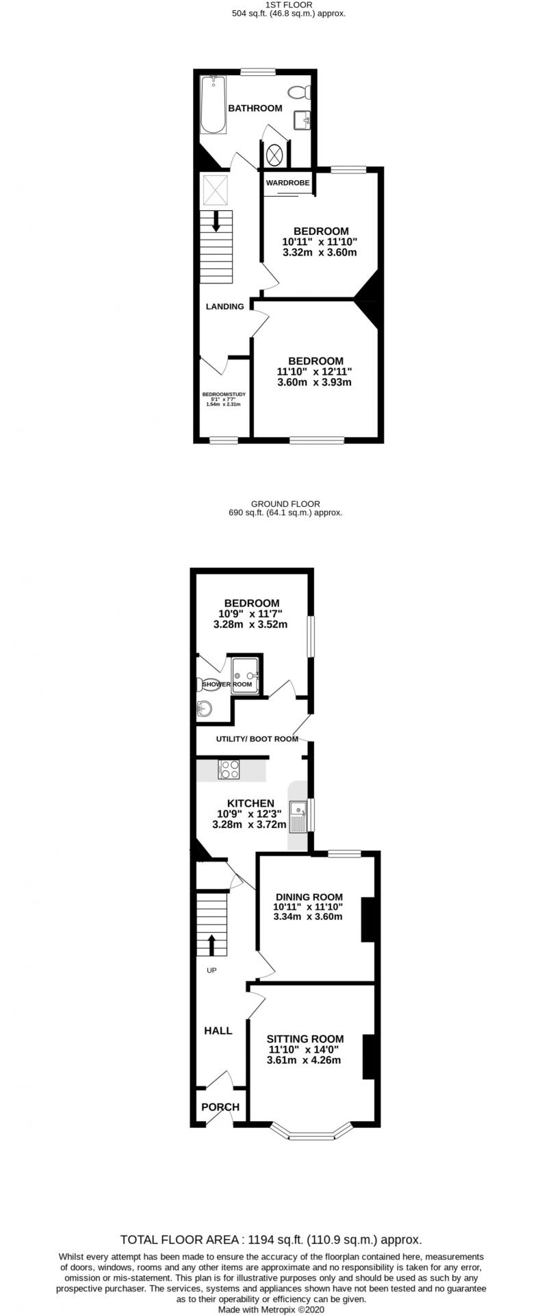
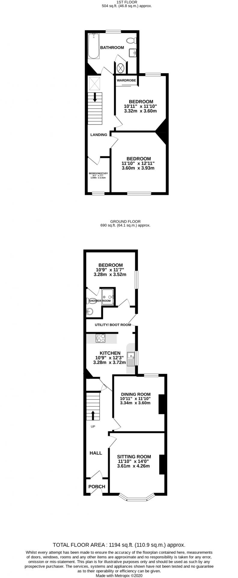
An extended and superbly presented 3/4-bedroom Edwardian town house located in a convenient position close to a range of amenities and facilities including primary and secondary schools.
The centrally heated and neutrally decorated accommodation is accessed via a welcoming entrance hallway with pretty quarry tiled flooring, stairs to the first floor and access to the principal rooms.
On the ground floor there are 2 separate reception rooms including a front room which benefits from a bay window to the front aspect.
There is a modern style fitted kitchen together with an integrated oven and hob as well as space and plumbing for additional appliances as required. adjoining the kitchen is the very useful utility /boot room area, together with a side door to the rear courtyard and door through to the ground floor bedroom /family room. which could equally be used as a bedroom 4 /guest suite on account of the well-appointed ensuite shower room.
On the first floor the high ceilings, open balustrade stairs and natural light ceiling panel accentuates the real sense of space associated with this style of property. There are doors off the landing to all rooms including 2 generously proportioned double bedrooms – with fitted storage to one, and a small bedroom 3 which would alternatively lend itself as perhaps a nursery, study or home office? in addition, there is a sizeable Modern family bathroom.
Externally, there is the off-road parking to the front of the property, whilst to the rear there is a small, enclosed courtyard area and a gate through to the sizeable rear garden which is enclosed with timber panel fencing.


Viewings are welcomed by appointment 6 days a week although be aware that viewings may require at least 24 hours' notice to arrange access. Please note that prior to any subsequent tenancy offer being accepted, all prospective tenants will be required to supply identification documents and proof of affordability.

Agent notes: these particulars have been prepared as a general guide only. A detailed survey has not been carried out, nor the services, appliances, fittings, etc, been tested. If room sizes are included, they are for guidance and illustration purposes only. They may not be to scale and should not be relied upon for furnishing or other purposes. If there are any important matters likely to affect your decision to proceed, please contact us before viewing the property.

Tenant protection: Moore Allen & Innocent is a member of the royal institution of chartered surveyor's client money protection scheme, and a member of the property ombudsman independent redress scheme. You can find out more details via our website or by contacting the office directly.

Landlords: do you own a similar property? Moore Allen & Innocent are an independent, multi-award winning, sales and lettings estate agency with over 175 years of property experience across the Cotswolds and beyond. If you have a similar property that you would like rented out or are looking for an agent to take away the stress and manage a property for you, we would be delighted to discuss how we can help. For more information regarding our services and a free, no-obligation review, please contact us today.
Viewings are welcomed by appointment 6 days a week although be aware that viewings may require at least 24 hours' notice to arrange access. Please note that prior to any subsequent tenancy offer being accepted, all prospective tenants will be required to supply identification documents and proof of affordability.
Agent notes: these particulars have been prepared as a general guide only. A detailed survey has not been carried out, nor the services, appliances, fittings, etc, been tested. If room sizes are included, they are for guidance and illustration purposes only. They may not be to scale and should not be relied upon for furnishing or other purposes. If there are any important matters likely to affect your decision to proceed, please contact us before viewing the property.
Tenant protection: Moore Allen & Innocent is a member of the royal institution of chartered surveyor's client money protection scheme, and a member of the property ombudsman independent redress scheme. You can find out more details via our website or by contacting the office directly.
Landlords: do you own a similar property? Moore Allen & Innocent are an independent, multi-award winning, sales and lettings estate agency with over 175 years of property experience across the Cotswolds and beyond. If you have a similar property that you would like rented out or are looking for an agent to take away the stress and manage a property for you, we would be delighted to discuss how we can help. For more information regarding our services and a free, no-obligation review, please contact us today.

Property Ref: 593341_9205139

Share:

Similar Properties

The Green, Quenington

3 Bedroom Terraced House | £1,425pcm

*** MOORE ALLEN & INNOCENT *** are delighted to offer this REFURBISHED 3 BEDROOM home near to the heart of this popular...

Ampney Crucis, Gloucestershire

3 Bedroom Semi-Detached House | £1,425pcm

*** MOORE ALLEN & INNOCENT *** are pleased to offer for rent this 3 bedroom Semi detached Cotswold stone cottage with la...

Turkdean, Cheltenham, GL54

3 Bedroom Terraced House | £1,425pcm

*** MOORE ALLEN & INNOCENT *** are delighted to offer this 3 DOUBLE BEDROOM SEMI DETACHED House quietly situated within...

Nutbeam, DUNTISBOURNE LEER

1 Bedroom Cottage | £1,450pcm

*** MOORE ALLEN & INNOCENT *** are delighted to offer this NEWLY BEAUTIFUL barn conversion within the STUNNING RURAL SET...

Barnsley Park, BARNSLEY

2 Bedroom Barn Conversion | £1,450pcm

*** MOORE ALLEN & INNOCENT *** are very pleased to offer this BEAUTIFULLY CONVERTED 2 DOUBLE BEDROOM single storey cotta...

Hambidge Lane, LECHLADE

3 Bedroom Semi-Detached House | £1,450pcm

*** MOORE ALLEN & INNOCENT *** are delighted to offer this UPDATED 3 BEDROOM family home - with garden and GARAGE, posit...

Moore Allen & Innocent (Cirencester)

33 Castle Street, Cirencester, Gloucestershire, GL7 1QD

01285 648100

How much is your home worth?

Use our short form to request a valuation of your property.

Request a Valuation
©2025 The Guild of Property Professionals. All rights reserved. Terms and Conditions | Privacy Policy | Cookie Policy | Complaints Policy | Members Login
The Guild of Property Professionals Trading Address: 121 Park Lane, London W1K 7AG. GPEA Limited. Registered in England & Wales.  Company No: 02819824.  Registered Office Address: 2 St. Stephen's Court, St. Stephen's Road, Bournemouth, Dorset, England, BH2 6LA.  VAT Registration No: 576 8795 61
Book a Property Valuation Update Cookies Preferences