Gunwharf Quays, Hampshire

£2,750pcm

2 Bedroom Apartment for rent in Hampshire

2 2
  • A Two Bedroom Purpose Built Prestigious Apartment
  • Recently Re-fitted Kitchen with Appliances
  • Lounge/Dining Room/Kitchen Leading to Balcony
  • En-Suite & Bathroom, Utility Cupboard
  • Allocated Secure Parking
  • Concierge & Lift Service
  • Available December 2025
  • Viewing Highly Recommended
  • Council Tax Band E - Portsmouth City Council

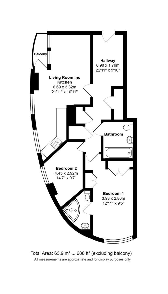
PROPERTY SUMMARY A two bedroom apartment in the prestigious No.1 Building, located on 17th floor with outstanding views towards Old Portsmouth, Southsea Common, HMS Temeraire, the Solent and Isle of Wight beyond. The internal accommodation provides 688 sq ft of living space and comprises; hallway, open plan living room / recently re-fitted kitchen with appliances and door to covered balcony, two bedrooms, an en-suite shower room and separate bathroom. The apartment benefits from underfloor heating, double glazing, secure car parking space, a concierge service and a lift service to all floors. The social and retails outlets of Gunwharf Quays are a short stroll away and the apartment is close to mainline railway station to London, Waterloo via Portsmouth Harbour, continental ferry port and commutable road links. The apartment is available from December 2025 and is offered unfurnished, early internal viewing is strongly recommended to appreciate both the accommodation and location on offer. 

COMMUNAL ENTRANCE Remote controlled doors leading to foyer with concierge desk (not 24 hours). Door to: 

INNER HALLWAY Stairs and lift service to all floors, access to car parking. 

17TH FLOOR Landing with door to No.106. 

APARTMENT 106 Main front door with security spy-hole leading to: 

HALLWAY 22' 3" x 6' 5" maximum (6.78m x 1.96m) Wood laminate flooring, entry phone system, ceiling spotlights, wired-in alarm, built-in storage cupboard with two hanging rails, spotlight, matching wooden flooring, meter cupboard with electric consumer box. 

UTILITY CUPBOARD Hot water cylinder, Mega-flow system, Indesit washing machine, tiled flooring, range of shelving, ceiling spotlights. 

LIVING ROOM INC. KITCHEN 24' 1" decreasing to 12'2" x 17' 0" increasing to 18'5" maximum (7.34m x 5.18m) Living Room: Double glazed full height windows with blinds and door to balcony with outstanding views, wood laminate flooring with underfloor heating, ceiling spotlights, chrome fronted power points.

Kitchen: Recently refitted, range of matching white wall and floor soft close units with quartz work surface, range of pan drawers, Miele induction hob, glass splashback, inset sink unit with mixer tap, range of drawer and bin drawer, integrated eye-level Miele double ovens with grill and microwave, storage cupboards over and half-size built-in AEG dishwasher under, chrome fronted power points, integrated Miele Dynacool fridge/freezer with matching doors, extractor fan, ceiling spotlights, double glazed windows with blinds and outstanding views over HMS Temeraire, the City of Portsmouth, Southsea Common, the Solent and Isle of Wight in the distance, matching flooring.
 

BALCONY 9' 5" x 4' 8" (2.87m x 1.42m) Glass screen, chrome fender and wooden decking, outstanding views towards Old Portsmouth, the Cathedral, Southsea Common, the Solent and Isle of Wight. 

BEDROOM 2 14' 7" maximum x 9' 7" (4.44m x 2.92m) Range of mirror fronted floor to ceiling built-in wardrobes to one wall with hanging space and shelving, ceiling spotlights, controls for underfloor heating, double glazed windows to side aspect with views towards HMS Temeraire, the Solent and Southsea.

 

BATHROOM Shower cubicle with wall mounted controls and separate shower attachment with tiled surrounds, tiled flooring, chrome heated towel rail, plinth with oval wash hand basin with drawer under and large mirror over, concealed cistern w.c., double doored medicine cabinet, ceiling spotlights, chrome heated towel rail. 

BEDROOM 1 12' 3" x 9' 0" (3.73m x 2.74m) Measurements do not include recessed area for door opening and access to wardrobe. Double doored built-in wardrobe with integral chest of drawers, hanging space and lighting, controls for underfloor heating, chest of drawers, built-in wardrobe to one wall with mirror fronted door, ceiling spotlights, double glazed window to rear aspect with views towards HMS Temeraire, the City of Portsmouth and far reaching views towards the South Downs, wall mounted Samsung T.V., door to: 

EN-SUITE WET ROOM Angled to corner, plinth with oval wash hand basin and drawer under, mirror over, tiled flooring with underfloor heating, concealed cistern w.c., ladder style heated towel rail, built-in medicine cabinet with shaver point, glazed shelving, step leading up to wet room area, large shower screen, extractor fan, drench style ceiling mounted hood, wall mounted controls and separate shower attachment, tiled flooring with underfloor heating. 

PARKING Allocated car parking space No.126 on the upper level 

AGENTS NOTES Council Tax Band E - Portsmouth City Council
Broadband – ADSL/FTTC Fibre Checker (openreach.com)
Flood Risk – Refer to - (GOV.UK (check-long-term-flood-risk.service.gov.uk)

Currently (December 2026) ongoing FRAEW (Fire Risk Appraisal of External Walls), a comprehensive assessment of the fire safety risks associated with a building's external wall construction and cladding.

 

CHARGES If an application for a tenancy is successful, below is an example of the amounts required are shown below:

Holding Fee (1 weeks rent): £634.61 (will be returned on completion of acceptable referencing)

One Month's rent in advance: £2,750.00

Deposit (equivalent to 5 weeks rent): £3,173.05

(Please note the above move in figures are for guidance purposes only).

TENANCY TERMS AND CONDITIONS – TENANTS Revised 3rd December 2025

Approved Tenant Charges

The only payments you can expect in connection with a tenancy are:

a) the rent

b) a refundable tenancy deposit capped at no more than five weeks' rent. This will be held in a Deposit Scheme as security for the performance of all obligations in connection with the tenancy for example in the case of any damage at the end of the tenancy or a charge to an independent company providing a deposit alternative service, if offered.

c) A refundable holding deposit (to reserve a property) capped at no more than one week's rent. Example - equivalent to One Weeks Rent – i.e. £1,000.00 pcm rent equates to £230.76 holding deposit).

We can retain this holding deposit if you:

• Provide false or misleading information which reasonably affects our decision to let the property to you (i.e. calls into question your suitability as a tenant, this can include your behaviour in providing the false or misleading information).
• Fail a right to rent check
• Withdraw from the proposed agreement (decide not to let) or
• Fail to take reasonable steps to enter an agreement (i.e. responding to reasonable requests for information required to progress the agreement) when the landlord and / or agent has done so.

Where we wish to retain the holding deposit, we will set out in writing the reason for this within 7 days of deciding not to enter the agreement or the 'deadline for agreement'. The 'deadline for agreement' for both parties is usually 15 days after a holding deposit has been received by a landlord or agent (unless otherwise agreed in writing).

d) Payments to change the tenancy when requested by the tenant (e.g. a change of sharer or permission to keep pets at the property) capped at £60.00 inc. VAT.
e) Payments associated with early termination of the tenancy, when requested by the tenant and agreed by the landlord. This would not exceed the financial loss that a landlord will suffer in permitting , or reasonable cost that have been incurred by the agent in arranging for, the tenant t leave early.
f) Payments in respects of utilities, communication services, TV licence and council tax
g) A default fee for late payment of rent and replacement of lost key/security device. 

Property Ref: 57518_100157007957

Share:

Similar Properties

Gunwharf Quays, Hampshire

4 Bedroom Townhouse | £2,750pcm

An impressive townhouse, which was built approximately 23 years ago by the Berkerley Group as part of the Gunwharf Quays...

Drayton, Hampshire

4 Bedroom Detached House | £2,500pcm

An individually designed, detached family home which is situated in a popular elevated cul-de-sac location with outstand...

Southsea, Hampshire

4 Bedroom Semi-Detached House | £2,500pcm

Anglesey is an impressive semi-detached Victorian villa which is situated in a popular conservation area of Southsea yet...

Waterlooville, Hampshire

6 Bedroom Detached House | £2,800pcm

Although sitting in a primary residential cul-de-sac location No.9 can only be described as unique, as it backs onto est...

Southsea, Hampshire

5 Bedroom Semi-Detached House | £3,500pcm

This semi-detached family home has been professionally extended, updated and redecorated to a high standard with an impr...

Gunwharf Quays, Hampshire

2 Bedroom Apartment | £3,800pcm

This waterfront 26th floor apartment is something special, packed with features such as elevator access, underfloor heat...

Town & Country Southern (Drayton, Portsmouth)

Drayton, Portsmouth, Hampshire, PO6 2AA

02393 277 288

How much is your home worth?

Use our short form to request a valuation of your property.

Request a Valuation
©2025 The Guild of Property Professionals. All rights reserved. Terms and Conditions | Privacy Policy | Cookie Policy | Complaints Policy | Members Login
The Guild of Property Professionals Trading Address: 121 Park Lane, London W1K 7AG. GPEA Limited. Registered in England & Wales.  Company No: 02819824.  Registered Office Address: 2 St. Stephen's Court, St. Stephen's Road, Bournemouth, Dorset, England, BH2 6LA.  VAT Registration No: 576 8795 61
Book a Property Valuation Update Cookies Preferences