Craigmount, Radlett, Hertfordshire, WD7

£1,725pcm
Let Agreed
This property listing is now Let Agreed

2 Bedroom Apartment for rent in Hertfordshire

1 2 1

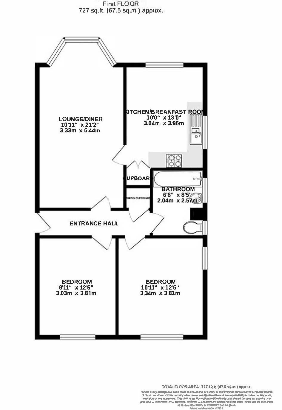
A bright and spacious first floor flat in the heart of the popular Radlett. This property benefits from a large open plan modern kitchen and dining area. Adjacent to the kitchen / diner is a spacious lounge.

Two large double bedrooms along with a family bathroom complete this apartment.

Located on a quiet no through road in a popular development, the apartment is within walking distance of Radlett High Street and Station and various local amenities situated along the high street. Available end of May. Unfurnished. Allocated parking available to the rear.

Property Ref: LUM230041_L

Share:

Similar Properties

Watling Mansions, Watling Street, Radlett, Hertfordshire, WD7

2 Bedroom Apartment | £1,700pcm

A rare opportunity to rent this exceptional two double bedroom apartment situated in the very popular Watling Mansions D...

High Cross, Aldenham, Watford, Hertfordshire, WD25

2 Bedroom Semi-Detached House | £1,700pcm

A lovely 2 bedroom 1 bathroom cottage located in the sought after village of Aldenham. Just a short drive away from Radl...

Woodfield Road, Radlett, Hertfordshire, WD7

2 Bedroom Maisonette | £1,650pcm

Attractive Two-Bedroom Raised Ground Floor Maisonette – Available Mid-JuneThis purpose-built raised ground floor maisone...

Nightingale Court, Park Road, Radlett, Hertfordshire, WD7

2 Bedroom Apartment | £1,750pcm

A 2 double bedroom 2 bathroom apartment, located on the top (2nd) floor of this beautifully maintained apartment buildin...

Brendon Court, The Avenue, Radlett, Hertfordshire, WD7

2 Bedroom Apartment | £1,800pcm

A lovely two double bedroom second floor apartment situated on one of Radlett's finest roads 'The Avenue'. Benefiting fr...

Lambourn Chase, Radlett, Hertfordshire, WD7

2 Bedroom Terraced House | £1,800pcm

A fantastic opportunity to rent a beautiful, newly renovated two bedroom terraced house situated within a popular locati...

Lumley Estates (Radlett)

72 Watling Street, Radlett, Hertfordshire, WD7 7NP

01923 853366

How much is your home worth?

Use our short form to request a valuation of your property.

Request a Valuation
©2026 The Guild of Property Professionals. All rights reserved. Terms and Conditions | Privacy Policy | Cookie Policy | Complaints Policy | Members Login
The Guild of Property Professionals Trading Address: 121 Park Lane, London W1K 7AG. GPEA Limited. Registered in England & Wales.  Company No: 02819824.  Registered Office Address: 2 St. Stephen's Court, St. Stephen's Road, Bournemouth, Dorset, England, BH2 6LA.  VAT Registration No: 576 8795 61
Book a Property Valuation Update Cookies Preferences