Nightingale Court, Park Road, Radlett, Hertfordshire, WD7

£1,750pcm
Let Agreed
This property listing is now Let Agreed

2 Bedroom Apartment for rent in Radlett

1 2 2
  • two bedrooms
  • two bathrooms
  • second floor
  • underground parking
  • ideal location
  • council tax - band F

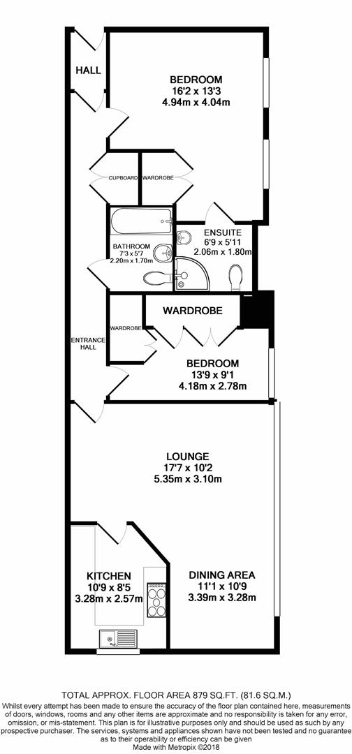
A 2 double bedroom 2 bathroom apartment, located on the top (2nd) floor of this beautifully maintained apartment building. The property features high ceilings and large windows which flood the living areas with natural light.

Internally the property features a stunning light filled living/dining room and large windows, a fully fitted kitchen, large master bedroom with en-suite shower room and fitted wardrobes, second double bedroom (currently used as a dressing room) and further bathroom.

The communal areas, external spaces, lift to all floors & underground parking areas are meticulously maintained by the managing agents. In addition, the apartment has secure gated underground parking with 2 allocated spaces.

Conveniently located in the centre of Radlett within a few hundred yards of Radlett's busy high street, mainline station, local shops and restaurants.

Awaiting new pictures - grey carpets throughout.

Property Ref: LUM210182_L

Share:

Similar Properties

Craigmount, Radlett, Hertfordshire, WD7

2 Bedroom Apartment | £1,725pcm

A bright and spacious first floor flat in the heart of the popular Radlett. This property benefits from a large open pla...

Watling Mansions, Watling Street, Radlett, Hertfordshire, WD7

2 Bedroom Apartment | £1,700pcm

A rare opportunity to rent this exceptional two double bedroom apartment situated in the very popular Watling Mansions D...

High Cross, Aldenham, Watford, Hertfordshire, WD25

2 Bedroom Semi-Detached House | £1,700pcm

A lovely 2 bedroom 1 bathroom cottage located in the sought after village of Aldenham. Just a short drive away from Radl...

Brendon Court, The Avenue, Radlett, Hertfordshire, WD7

2 Bedroom Apartment | £1,800pcm

A lovely two double bedroom second floor apartment situated on one of Radlett's finest roads 'The Avenue'. Benefiting fr...

Lambourn Chase, Radlett, Hertfordshire, WD7

2 Bedroom Terraced House | £1,800pcm

A fantastic opportunity to rent a beautiful, newly renovated two bedroom terraced house situated within a popular locati...

Common Lane, Letchmore Heath, Watford, Hertfordshire, WD25

2 Bedroom Terraced House | £1,800pcm

A charming 2-Bedroom Cottage in the Heart of Letchmore HeathNestled in the picturesque and highly sought-after village o...

Lumley Estates (Radlett)

72 Watling Street, Radlett, Hertfordshire, WD7 7NP

01923 853366

How much is your home worth?

Use our short form to request a valuation of your property.

Request a Valuation
©2026 The Guild of Property Professionals. All rights reserved. Terms and Conditions | Privacy Policy | Cookie Policy | Complaints Policy | Members Login
The Guild of Property Professionals Trading Address: 121 Park Lane, London W1K 7AG. GPEA Limited. Registered in England & Wales.  Company No: 02819824.  Registered Office Address: 2 St. Stephen's Court, St. Stephen's Road, Bournemouth, Dorset, England, BH2 6LA.  VAT Registration No: 576 8795 61
Book a Property Valuation Update Cookies Preferences