Berrigan Way, Branston

£1,400pcm

3 Bedroom End of Terrace House for rent in Lincoln

3 2
  • Driveway & Single Garage
  • Enclosed Garden with Patio
  • Three Double Bedrooms
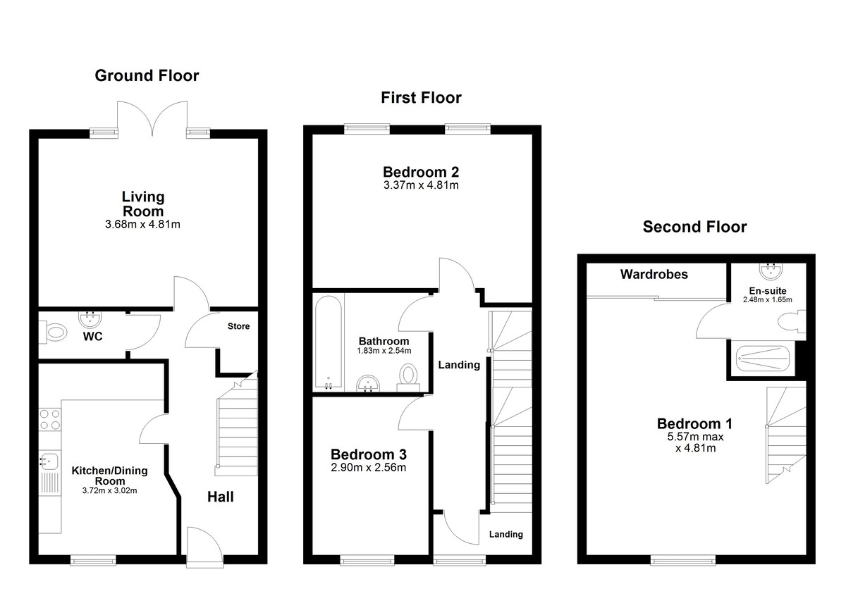
  • Three Storey Home
  • Spacious Kitchen Diner with appliances
  • Quiet Cul-de-sac Location
  • En-Suite Shower to Bedroom One
  • EPC Energy Rating - B
  • Council Tax Band - A (North Kesteven District Council)

LOCATION Berrigan Way lies in Branston, just south-east of Lincoln, offering a village setting with easy access to city amenities. Nearby on Station Road you'll find shops, cafes and the Co-op supermarket. Branston Community Academy (11–18) is a short walk away. Public transport and road links into Lincoln are convenient, and green spaces and local parks lie within close reach. 

ACCOMMODATION This Three Storey Home has internal accommodation arranged with an Entrance Hall leading to a Kitchen/Diner, Lounge, downstairs WC and under stairs storage cupboard. Stairs rise to a First Floor landing that gives access to Two Double Bedrooms and a Family Bathroom. An additional set of stairs lead to the Second Floor to a Double Bedroom with built-in Wardrobes and an En-Suite Shower Room. An early viewing is highly recommended!  

OUTSIDE The property also benefits from front gardens with a Driveway and Single Garage. To the rear of the property there is an enclosed Garden that includes a patio area. 

RENT AND DEPOSIT The asking Rent for the property is £1400 per calendar month and the Tenancy Deposit is £1615 (equal to 5 weeks' rent).

The Holding Deposit for this property is £320. 

TENANCY TERM The Landlord's preference is to let the property with a 12 month minimum/fixed term, unless negotiated otherwise.  

ADDITIONAL FEES There are no application fees payable. You will be required to pay a Holding Deposit equal to one weeks rent to secure the property. More information on charges to Tenants can be found on our website - https://mundys.net/additional-fees/ 

VIEWINGS By prior appointment through Mundys. 

Property Ref: 58704_102125035208

Share:

Similar Properties

Barratts Close, Lincoln

4 Bedroom Semi-Detached House | £1,400pcm

CATHEDRAL VIEW FROM FRONT. The internal accommodation briefly comprises of Entrance Hall, Lounge, Dining Room and Kitche...

Broadway, Lincoln

4 Bedroom Detached Bungalow | £1,400pcm

LARGE DRIVEWAY – The property comprises of an Entrance Hall, spacious Lounge, Kitchen Diner, Bedroom One with En-suite a...

Sleaford Road, Nocton Heath, Lincoln

3 Bedroom Detached Bungalow | £1,400pcm

DETACHED BUNGALOW WITH SINGLE GARAGE!The property benefits from an Open Plan Dining Kitchen, Utility Room, Cloakroom, sp...

Watermill Lane, Nettleham

4 Bedroom Semi-Detached House | £1,800pcm

EXECUTIVE HOME! This stunning property features a fantastic Open Plan Lounge, Dining, and Kitchen Area with top-of-the-r...

Geralds Close, Lincoln

4 Bedroom Detached Bungalow | £1,800pcm

PRIME LOCATION & PART FURNISHED! Early viewing is required to secure this well presented Detached Bungalow boasting 4 Be...

West Torrington, Market Rasen

6 Bedroom Detached House | £1,800pcm

FARM HOUSE SET ON LARGE GROUNDS - Set on large grounds this Farm House comprises of; Entrance Hall, three Reception Room...

Mundys (Lincoln)

29 Silver Street, Lincoln, Lincolnshire, LN2 1AS

01522 556099

How much is your home worth?

Use our short form to request a valuation of your property.

Request a Valuation
©2025 The Guild of Property Professionals. All rights reserved. Terms and Conditions | Privacy Policy | Cookie Policy | Complaints Policy | Members Login
The Guild of Property Professionals Trading Address: 121 Park Lane, London W1K 7AG. GPEA Limited. Registered in England & Wales.  Company No: 02819824.  Registered Office Address: 2 St. Stephen's Court, St. Stephen's Road, Bournemouth, Dorset, England, BH2 6LA.  VAT Registration No: 576 8795 61
Book a Property Valuation Update Cookies Preferences