Wordsworth Street, Lincoln

£2,500pcm

4 Bedroom Apartment for rent in Lincoln

4 3
  • Luxury Penthouse Apartment
  • Over 3,000 Square Feet
  • 35ft Open Plan Living/Dining
  • 4 Double Bedrooms
  • High Specification Luxury Fittings
  • Exclusive Gated Development
  • Roof Terrace with Cathedral & Castle Views
  • Gated Parking
  • EPC Energy Rating - D
  • Council Tax Band - F (Lincoln City Council)

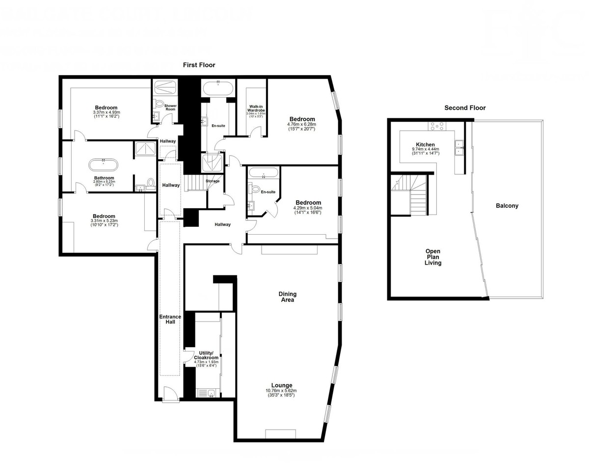
A rare opportunity to occupy the penthouse apartment at Bailgate Court, Lincoln. This unique property is situated within the heart of the Cathedral Quarter of historic Lincoln and provides over 3,000 square feet of spacious, luxury accommodation across two floors. The internal accommodation includes: 35" x 18" living / dining room with bar, 4 en suite bedrooms, dressing room, utility, living / dining kitchen and stunning roof terrace with unrivalled views of Lincoln Castle and Lincoln Cathedral. Viewing is required to appreciate the size and standard of the accommodation on offer.  

LOCATION Bailgate Court is situated within the heart of the Cathedral Quarter of historic Lincoln. A desirable gated development of 13 apartments, harnessing elegant Georgian architecture with a contemporary extension. The property sits beside the quaint shops and restaurants in the Bailgate area of 'Uphill' Lincoln and is a stones throw from Lincoln's City centre shops, train station and university. A full range of services and faculties are situated within a close proximity of the property.
 

ACCOMMODATION The property benefits from gated access leading to a secure communal entrance with lift access leading to the property. The property provides internal accommodation briefly comprising of Entrance Hall with exposed timbers and glazing ceiling, Utility/Cloakroom with built-in storage, Hallway leading to Bedroom 1 with walk-in wardrobe/dressing room and high specification en-suite bathroom off, Bedroom 2 with En-Suite Bathroom, Bedroom 3 with En-Suite Bathroom, Bedroom 4/Office with built-in fittings including drop down bed and En-Suite Shower Room, Large open plan Lounge - Dining Room (35'3" x 18'5") with bar area and full height glazed doors that can tilt and open onto Juliette balconies with Cathedral and Castle views. Stairs leading to the open plan Living - Dining area with fully fitted Kitchen with Dekton work surface and sliding doors onto the roof terrace. Viewing is highly recommended.  

OUTSIDE The spacious roof terrace has a mix of decked and AstroTurf finishes and fitted lighting. There are also communal gardens that are principally laid to lawn overlooking the city. The property benefits from two allocated parking spaces within the gated communal parking area. 

RENT AND DEPOSIT The asking Rent for the property is £2500 per calendar month and the Tenancy Deposit is £2880 (equal to 5 weeks' rent).

The Holding Deposit for this property is £575. 

TENANCY TERM The property is to be let with an initial 12 month fixed term, unless negotiated otherwise.  

CHARGES TO TENANTS There are no application fees payable. You will be required to pay a Holding Deposit equal to one weeks rent to secure the property. More information on charges to Tenants can be found on our website - https://mundys.net/additional-fees/ 

VIEWINGS By prior appointment through Mundys. 

Property Ref: 58704_102125028636

Share:

Similar Properties

Willis Close, Lincoln

4 Bedroom Detached House | £2,000pcm

QUIET LOCATION – PRIME POSITION – The internal accommodation briefly comprises: Entrance Porch, Reception Hallway, Showe...

Prestons Farm Barns, Eagle Hall, Lincoln

3 Bedroom Detached House | £1,850pcm

MODERN DETACHED HOME WITHIN AN EXECUTIVE DEVELOPMENT! Viewing is required to appreciate the standard of accommodation an...

Watermill Lane, Nettleham

4 Bedroom Semi-Detached House | £1,800pcm

EXECUTIVE HOME! This stunning property features a fantastic Open Plan Lounge, Dining, and Kitchen Area with top-of-the-r...

Maple Avenue, The Elms, Torksey

2 Bedroom Park Home | £60,000

A tidy two bedroomed park home situated within The Elms retirement development at Torksey. The Elms is an exclusive and...

Chestnut Crescent, The Elms, Torksey

2 Bedroom Park Home | £63,700

A two bedroom Single Park Home positioned in this popular development of The Elms, Torksey. The site has 24-hour manned...

Poplar Drive, The Elms, Lincoln

2 Bedroom Park Home | £70,000

A two bedroom Single Park Home positioned in this award-winning over 50's retirement development of The Elms, Torksey. T...

Mundys (Lincoln)

29 Silver Street, Lincoln, Lincolnshire, LN2 1AS

01522 556099

How much is your home worth?

Use our short form to request a valuation of your property.

Request a Valuation
©2025 The Guild of Property Professionals. All rights reserved. Terms and Conditions | Privacy Policy | Cookie Policy | Complaints Policy | Members Login
The Guild of Property Professionals Trading Address: 121 Park Lane, London W1K 7AG. GPEA Limited. Registered in England & Wales.  Company No: 02819824.  Registered Office Address: 2 St. Stephen's Court, St. Stephen's Road, Bournemouth, Dorset, England, BH2 6LA.  VAT Registration No: 576 8795 61
Book a Property Valuation Update Cookies Preferences