Deansleigh, Lincoln

£950pcm
Let Agreed
This property listing is now Let Agreed

3 Bedroom Semi-Detached House for rent in Lincoln

3 1
  • Three Bedroom Semi Detached House
  • Driveway - Two Cars
  • Kitchen and Dining Room
  • Enclosed Rear Courtyard
  • Bathroom with Bath and Shower Overhead
  • Popular Residential Area
  • Entrance Hall & Downstairs WC
  • Council Tax Band - B (Lincoln City Council)
  • Energy Rating C

LOCATION Deansleigh is situated just off Queen Elizabeth Road in Lincoln, in a well-established residential area. The street is close to a variety of local amenities including shops, cafés, and takeaways, with easy access to Lincoln city centre. The area benefits from good transport links and provides a convenient and accessible location while remaining in a quiet residential setting. 

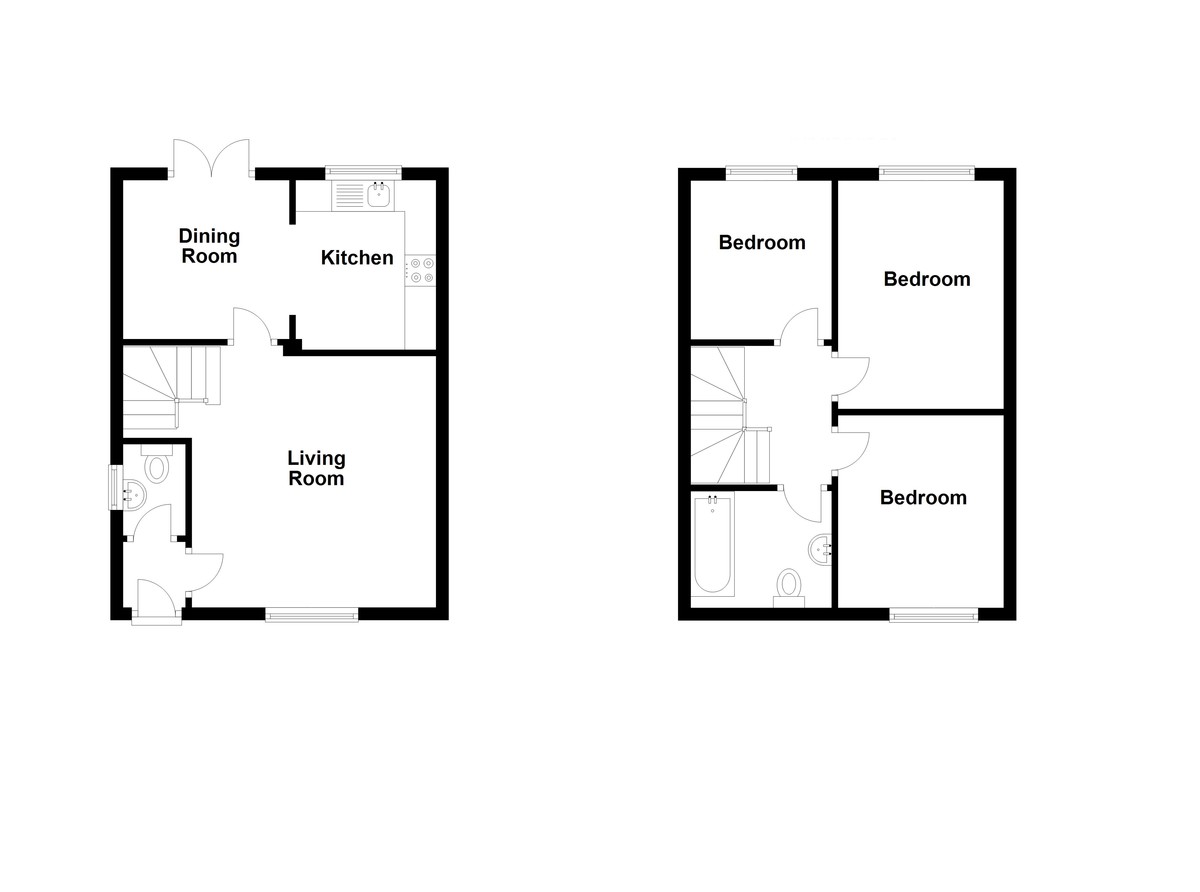
ACCOMMODATION An early viewing is recommended for this home, available now. The internal accommodation comprises an Entrance Hall leading to a downstairs WC and a spacious Lounge, Dining Room, and Kitchen. Access to the Rear Courtyard is via the Dining Room, with stairs to the First Floor Landing located in the Lounge. All three Bedrooms are accessed off the Landing, along with a Family Bathroom with bath and shower overhead. 

OUTSIDE Garden to the front, enclosed rear courtyard with decking area, and a driveway to the side providing parking for two cars. 

RENT AND DEPOSIT The asking Rent for the property is £950.00 per calendar month and the Tenancy Deposit is £1,095.00 (equal to 5 weeks' rent).

The Holding Deposit for this property is £215.00 

TENANCY TERM The Landlord's preference is to let the property with a 12 month minimum/fixed term.  

ADDITIONAL FEES There are no application fees payable. You will be required to pay a Holding Deposit equal to one weeks rent to secure the property. More information on charges to Tenants can be found on our website - https://mundys.net/additional-fees/ 

VIEWINGS By prior appointment through Mundys. 

Property Ref: 58704_102125001353

Share:

Similar Properties

Willow Close, Glentham, Market Rasen

2 Bedroom Terraced Bungalow | £950pcm

A* ECO RATED BRAND NEW HOME - The accommodation briefly comprises of Entrance Hall with storage, providing access to two...

Chapel Court, Silver Street, Wragby

3 Bedroom Semi-Detached Bungalow | £950pcm

DRIVEWAY AND GARAGE - Accommodation briefly comprises of Entrance Hall leading to a Kitchen and Utility Room, Lounge, Di...

High Street, Saxilby

2 Bedroom Detached Bungalow | £925pcm

FRONT DRIVEWAY! The property briefly comprises of an Entrance Hall, Open Plan Lounge-Dining Room with a fitted Kitchen,...

Meadow Rise, Saxilby

3 Bedroom Detached Bungalow | £995pcm

EXTENSIVE REAR GARDEN - The property briefly comprises of a Hallway, Three Bedrooms, Lounge, Kitchen, Utility/Sun Room,...

Ploughmans Lane, Lincoln

3 Bedroom Semi-Detached House | £995pcm

NEWLY PAINTED AND NEW CARPETS! Available now, the property briefly comprises of an Entrance Hall, Lounge, modernised Kit...

Ashfield, Sturton By Stow, Lincoln

2 Bedroom Detached House | £995pcm

DESIRABLE VILLAGE LOCATION & AVAILABLE NOW! Viewing is recommended of this well-presented two bedroom home. The property...

Mundys (Lincoln)

29 Silver Street, Lincoln, Lincolnshire, LN2 1AS

01522 556099

How much is your home worth?

Use our short form to request a valuation of your property.

Request a Valuation
©2025 The Guild of Property Professionals. All rights reserved. Terms and Conditions | Privacy Policy | Cookie Policy | Complaints Policy | Members Login
The Guild of Property Professionals Trading Address: 121 Park Lane, London W1K 7AG. GPEA Limited. Registered in England & Wales.  Company No: 02819824.  Registered Office Address: 2 St. Stephen's Court, St. Stephen's Road, Bournemouth, Dorset, England, BH2 6LA.  VAT Registration No: 576 8795 61
Book a Property Valuation Update Cookies Preferences