26-28 Warwick Way, London

£65,000pa
Let Agreed
This property listing is now Let Agreed

Retail Property (High Street) for rent in London

  • Prime Pimlico retail position
  • Class E commercial use.
  • EPC: Energy Rating B
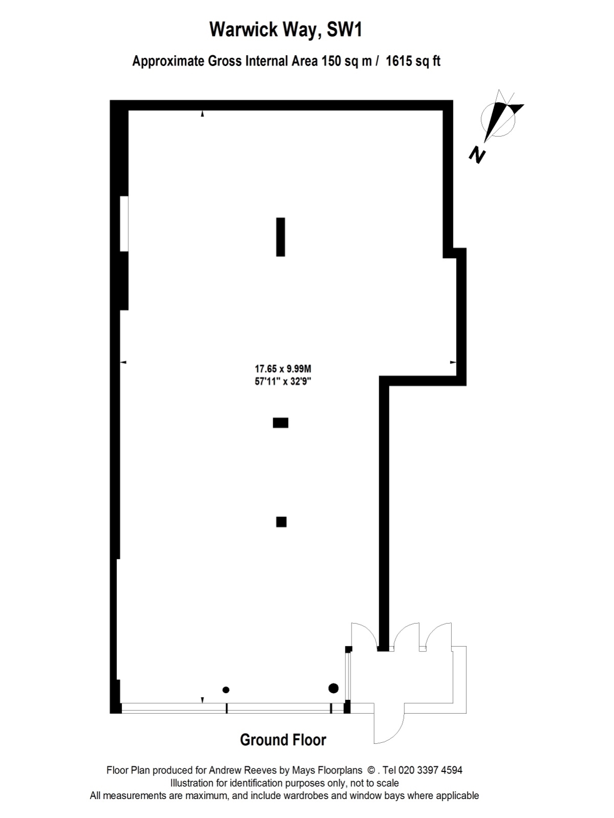
  • 1,617 sqft all on ground floor
  • 7 minutes walk from Victoria Station

A double retail unit in shell & core condition with capped services and arranged over ground floor only extending to 1,617 sft (150.2 sqm). The property has an internal depth of 17.7 metres and an internal maximum width of 10.0 metres. The ceiling height varies from 2.69 to 3.0 metres.

The premises form the ground floor of a three storey Victorian terraced building with basement.

Property Ref: 59667_10201862

Share:

Similar Properties

Second floor, 10 Buckingham Place, London, SW1E

Office | £62,855pa

An attractive Victorian building with rear courtyard. A fully refurbished office a short walk to Victoria Station. Entir...

Vauxhall Sky Gardens, 153 Wandsworth Road, London, SW8

Office | £50,000pa

Vauxhall Sky Gardens comprises a mixed-use 120 metre tall 36-floor tower constructed in 2014. The first seven floors com...

Denbigh Street, Pimlico, London, SW1V

Shop | £45,000pa

2 Denbigh Street comprises a Victorian end-of-terrace three storey building arranged over lower ground, ground and two u...

Unit 7, Sevenoaks Enterprise Centre, Bat & Ball Road, Sevenoaks, Kent, TN14 5LJ

Distribution Warehouse | £95,000pcm

A well-located headquarters style warehouse with roller shutter and 6.4m minimum eaves height. The warehouse has a high...

Admiral House, Willow Place, London, SW1P

1 Bedroom Apartment | Guide Price £395,000

A well presented one bedroom apartment located on the 4th floor (with lift) of Admiral House, Willow Place. Comprising b...

63 Lupus Street, Pimlico, London SW1V 3EY

Mixed Use | £420,000

Freehold Investment FOR SALE An attractive mid-Victorian building. Three apartments are sold off on long leases and the...

Andrew Reeves (Westminster)

81 Rochester Row, Westminster, London, SW1P 1LJ

02078 811320

How much is your home worth?

Use our short form to request a valuation of your property.

Request a Valuation
©2025 The Guild of Property Professionals. All rights reserved. Terms and Conditions | Privacy Policy | Cookie Policy | Complaints Policy | Members Login
The Guild of Property Professionals Trading Address: 121 Park Lane, London W1K 7AG. GPEA Limited. Registered in England & Wales.  Company No: 02819824.  Registered Office Address: 2 St. Stephen's Court, St. Stephen's Road, Bournemouth, Dorset, England, BH2 6LA.  VAT Registration No: 576 8795 61
Book a Property Valuation Update Cookies Preferences