Unit 7, Sevenoaks Enterprise Centre, Bat & Ball Road, Sevenoaks, Kent, TN14 5LJ

£95,000pcm
Let Agreed
This property listing is now Let Agreed

Distribution Warehouse for rent in Sevenoaks

  • 5,597 sq ft
  • Warehouse
  • High office content
  • £95,000 pa
  • 14 car parking space
  • Secure site with CCTV
  • Located opposite Bat & Ball railway station
  • Located 1.5 miles from Sevenoaks town centre

UNIT:
• Detached self-contained warehouse
building of portal frame construction
• Minimum eaves height 6.4 metres (21 feet)
• Phase 3 power
• High intensity lighting to warehousing
• Surface level electrically operated loading
doors
• Part refurbished two storey offices with
electric heating, suspended ceilings, Cat II
lights, double glazing, perimeter trunking
and kitchens.
• Well maintained to a modern standard
throughout
• Odexion racking and forklifts available by
separate negotiation
• Generous yard with approx 14 car parking spaces

LOCATION
The properties are located in an established industrial location close to the A25, 3 miles from the M25 (Junction 5), 8 miles from
the M20 and 25 miles from London Gatwick Airport. Sevenoaks town centre is 1 mile to the south. Bat & Ball National Railway is
opposite the property providing regular direct services to London Blackfriars and indirect services to London Victoria via Bromley South and London Cannon Street via Sevenoaks. The station has been refurbished to provide an attractive café and meeting rooms.

The Sevenoaks Enterprise Centre comprises 8 units - 1-6 comprise warehouses, trade counters (including a Halford auto centre) and a large gym. Units 7 and 8 are adjacent but separate from the main site.

DESCRIPTION
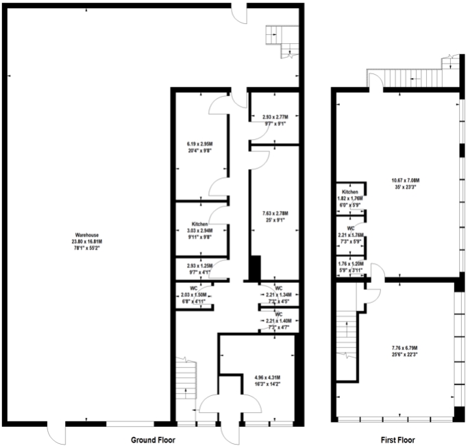
Unit 7 comprises an industrial/warehouse building of steel portal frame construction having 6.4 m clear internal height.
Office accommodation is provided at ground and first floor levels and is well presented with Cat II lights, suspended ceilings, double glazing, electric heating, separate kitchens and three WCs including accessible cubicles at ground floor levels.
Unit 7 has a high office content which was recently refurbished.

Property Ref: 59667_6569317

Share:

Similar Properties

26-28 Warwick Way, London

Retail Property (High Street) | £65,000pa

A double retail unit in shell & core condition with capped services and arranged over ground floor only extending to 1,6...

Second floor, 10 Buckingham Place, London, SW1E

Office | £62,855pa

An attractive Victorian building with rear courtyard. A fully refurbished office a short walk to Victoria Station. Entir...

Vauxhall Sky Gardens, 153 Wandsworth Road, London, SW8

Office | £50,000pa

Vauxhall Sky Gardens comprises a mixed-use 120 metre tall 36-floor tower constructed in 2014. The first seven floors com...

Admiral House, Willow Place, London, SW1P

1 Bedroom Apartment | Guide Price £395,000

A well presented one bedroom apartment located on the 4th floor (with lift) of Admiral House, Willow Place. Comprising b...

63 Lupus Street, Pimlico, London SW1V 3EY

Mixed Use | £420,000

Freehold Investment FOR SALE An attractive mid-Victorian building. Three apartments are sold off on long leases and the...

Astral House, Regency Place, London, SW1P

1 Bedroom Apartment | £500,000

A beautifully presented one bedroom flat with separate study located in the heart of Westminster.

Andrew Reeves (Westminster)

81 Rochester Row, Westminster, London, SW1P 1LJ

02078 811320

How much is your home worth?

Use our short form to request a valuation of your property.

Request a Valuation
©2025 The Guild of Property Professionals. All rights reserved. Terms and Conditions | Privacy Policy | Cookie Policy | Complaints Policy | Members Login
The Guild of Property Professionals Trading Address: 121 Park Lane, London W1K 7AG. GPEA Limited. Registered in England & Wales.  Company No: 02819824.  Registered Office Address: 2 St. Stephen's Court, St. Stephen's Road, Bournemouth, Dorset, England, BH2 6LA.  VAT Registration No: 576 8795 61
Book a Property Valuation Update Cookies Preferences