Courtyard House The Ridgeway

£2,000pcm

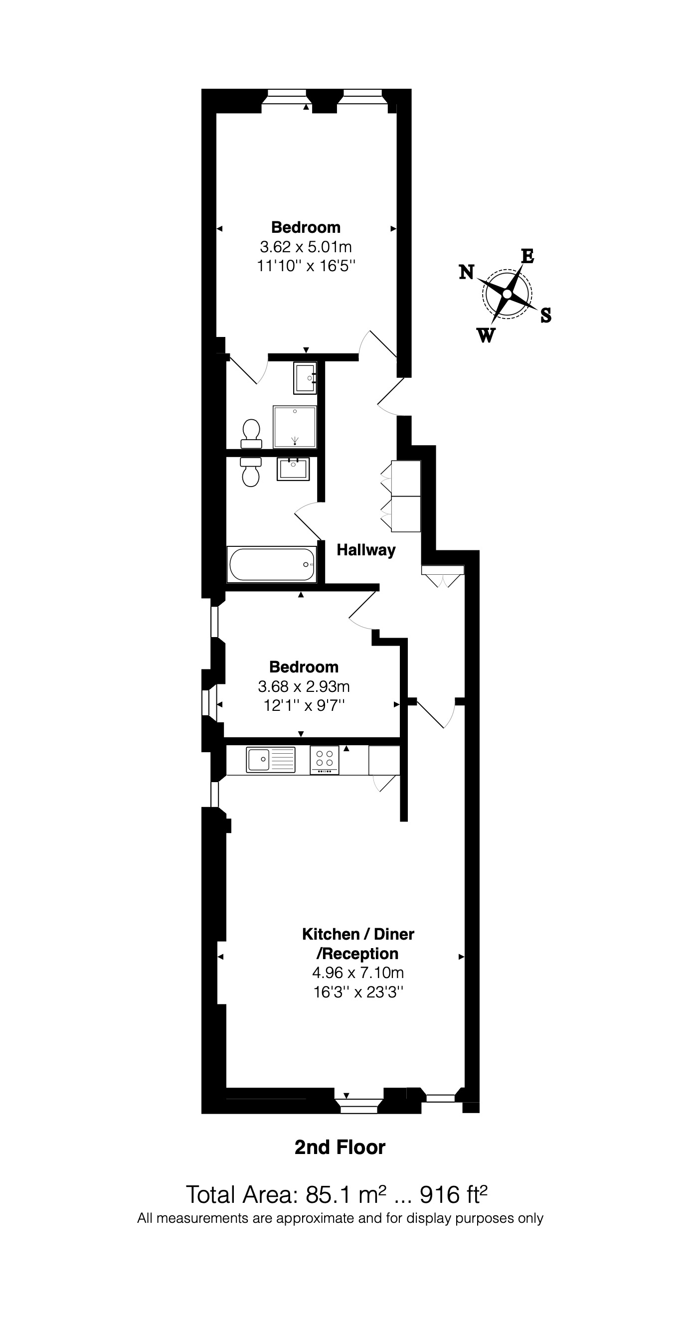
2 Bedroom Flat for rent in Mill Hill

1 2 2
  • - Allocated Gated Parking
  • - Spacious Lounge
  • - Master Bedrooms with en-suite
  • - Gated Development
  • - Close to Northern Line
  • - Waitrose and Virgin Active

Set within this exclusive luxury PRIVATE GATED development this TWO DOUBLE BEDROOM LARGER THAN AVERAGE APARTMENT with ALLOCATED PARKING offers modern fixtures and fittings, with bright spacious room just a short walk from MILL HILL STATION. The property comprises a LARGE RECEPTION room with DUAL ASPECT WINDOWS, A LUXURIOUS FITTED KITCHEN, The MASTER BEDROOM has an ensuite LUXURY BATHROOM WC, THE SECOND DOUBLE BEDROOM benefits from use of a LUXURY SHOWER ROOM WC. UNFURNISHED

Important Information

  • This Council Tax band for this property is: F
  • EPC Rating is C

Property Ref: FIN_FIN250248

Share:

Similar Properties

Gerrards Close, N14

3 Bedroom Maisonette | £2,000pcm

This delightful Ground Floor Maisonette boasts a cosy reception room, with three bedrooms. The property features a well-...

High Road East Finchley

2 Bedroom Flat | £2,000pcm

Two bedroom APARTMENT with a PRIVATE ROOF TERRACE set within SMALL DEVELOPMENT and just a stone throw from EAST FINCHLEY...

Mountgrove Road Highbury

1 Bedroom Flat | £2,000pcm

One bedroom FLAT set within SMALL CONVERSION and just a short walk from HIGHBURY FIELDS. Benefitting from open plan livi...

High Road

2 Bedroom Flat | £2,040pcm

A well-presented two-bedroom, second-floor flat located just a short walk from Seven Sisters Road Station. The property...

Holloway Road Islington

1 Bedroom Flat | £2,050pcm

A stunning brand new one bedroom second floor flat set within a beautifully restored listed period conversion, ideally l...

Holloway Road Islington

1 Bedroom Ground Floor Flat | £2,050pcm

*WATER BILL INCLUDED* A beautifully refurbished one-bedroom ground-floor flat set within a listed period conversion, jus...

Drivers & Norris (Holloway)

Holloway, London, N7 6HP

0207 607 5001

How much is your home worth?

Use our short form to request a valuation of your property.

Request a Valuation
©2026 The Guild of Property Professionals. All rights reserved. Terms and Conditions | Privacy Policy | Cookie Policy | Complaints Policy | Members Login
The Guild of Property Professionals Trading Address: 121 Park Lane, London W1K 7AG. GPEA Limited. Registered in England & Wales.  Company No: 02819824.  Registered Office Address: 2 St. Stephen's Court, St. Stephen's Road, Bournemouth, Dorset, England, BH2 6LA.  VAT Registration No: 576 8795 61
Book a Property Valuation Update Cookies Preferences