Ingleby Road Great Broughton

£795pcm
Let
This property listing is now Let

2 Bedroom Ground Floor Flat for rent in North Yorkshire

1 2 2
  • Ground Floor Apartment
  • Two Bedrooms
  • Modern Kitchen with Appliances
  • Bathroom and En Suite
  • Fitted Wardrobes
  • Village Location
  • 12 Month Minimum Tenancy
  • Council Tax Band 'B'

PROPERTY NOW LET!

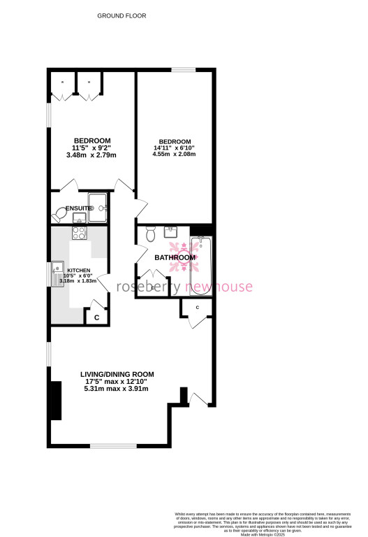
This two-bedroom ground floor apartment is situated in the idyllic village of Great Broughton.
The apartment is one of four in this small development. The apartment is accessed via a communal entrance with front door to an open plan living/dining room with electric fireplace, kitchen with integrated appliances, master bedroom with fitted wardrobes and an en suite shower room, second bedroom and a modern bathroom. Allocated parking.

PROPERTY NOW LET!



Spacious ground floor two bedroom apartment. Bathroom, ensuite, and allocated parking. Located within the popular Great Broughton Village.

Important Information

  • This Council Tax band for this property is: B
  • EPC Rating is C

Property Ref: STL_STL250069

Share:

Similar Properties

Finchfield Close Eaglescliffe

2 Bedroom Semi-Detached Bungalow | £795pcm

Located on the desirable Orchard Estate in Eaglescliffe this two bedroom bungalow is ideally positioned close to a range...

Strathaven Drive Eaglescliffe

3 Bedroom Semi-Detached House | £795pcm

Three bedroom semi detached house, situated on the popular Sunningdale residential development. South facing rear lawn g...

Uldale Drive Egglescliffe

2 Bedroom Semi-Detached Bungalow | £795pcm

PROPERTY NOW LET Immaculately presented two bedroom semi-detached bungalow located towards the end of a cul-de sac, wit...

Mill Lane Norton

1 Bedroom Ground Floor Flat | £800pcm

Chesterfield House is a fine example of modern day living with a mix of character charm. One bedroom FURNISHED ground fl...

Yarm Road Eaglescliffe

2 Bedroom Flat | £825pcm

PROPERTY NOW LET!! Spacious two bedroom, two bathroom FURNISHED apartment situated in this prestigious development on t...

West Street Yarm

2 Bedroom End of Terrace House | £825pcm

PROPERTY NOW LET! Set amongst a row of similar properties on West Street, positioned in this highly desirable location...

Roseberry Newhouse Lettings (Stokesley)

Stokesley, North Yorkshire, TS9 5DU

01642 927288

How much is your home worth?

Use our short form to request a valuation of your property.

Request a Valuation
©2025 The Guild of Property Professionals. All rights reserved. Terms and Conditions | Privacy Policy | Cookie Policy | Complaints Policy | Members Login
The Guild of Property Professionals Trading Address: 121 Park Lane, London W1K 7AG. GPEA Limited. Registered in England & Wales.  Company No: 02819824.  Registered Office Address: 2 St. Stephen's Court, St. Stephen's Road, Bournemouth, Dorset, England, BH2 6LA.  VAT Registration No: 576 8795 61
Book a Property Valuation Update Cookies Preferences