Portland Street, Norwich

£1,200pcm
Let Agreed
This property listing is now Let Agreed

2 Bedroom House for rent in Norwich

2 2 1
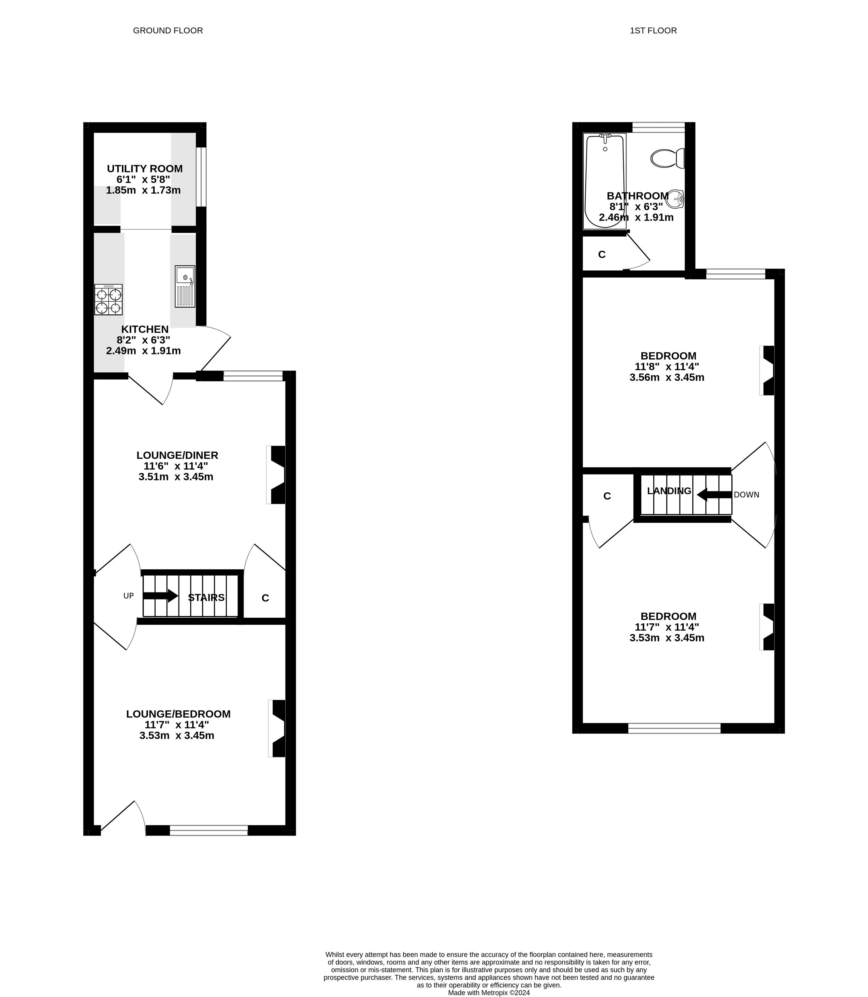
  • Period Terrace House
  • Two Double Bedrooms
  • Wealth Of Character Features
  • Lounge & Dining Room
  • Kitchen
  • Upstairs bathroom
  • Upvc Windows
  • Gas central Heating
  • Sought After Golden Triangle Location
  • Epc Band D / Council Tax Band B

***READY TO RENT*** Iconic estate agents are delighted to offer for let this well presented period terrace house situated in the desirable Golden Triangle area of Norwich. The property has a wealth of period features and accommodation that comprises; lounge with feature fire place and strip wood flooring, dining room and fitted kitchen. Upstairs there are two double bedrooms with a white three piece family bathroom suite off the master bedroom. Outside the property has an enclosed garden to the front while to the rear there is a bisected enclosed garden. The property has on road permit parking and is situated within easy access of the local amenities, city centre and university so call today to book a slot to view this property.

Property Ref: EAXML11851_12520051

Share:

Similar Properties

Trimming Walk, Taverham, Norwich

3 Bedroom House | £1,200pcm

Lovingly refreshed throughout with a real stylish finish is this 3 bedroom semi-detached home sitting proud ready for it...

Olive Avenue, Newton Flotman, Norwich

3 Bedroom House | £1,200pcm

Iconic estate agents are delighted to bring to the rental market this immaculately presented three bedroom semi detached...

Mokyll Croft, Norwich

3 Bedroom House | £1,200pcm

Semi-Detached home with 3 bedrooms, garage, front & rear gardens plus drive. Centrally heated, double glazed, fitted kit...

The Street, Lenwade, Norwich

4 Bedroom Cottage | £1,250pcm

***VILLAGE LOCATION*** Character Packed 3/4 bedroom link-detached family home offering generous and versatile accommodat...

Berrington Road, Hellesdon, Norwich

3 Bedroom Chalet | £1,250pcm

***READY TO RENT*** Recently Renovated Three Bedroom Semi-Detached Chalet – Desirable Hellesdon Location. Iconic Estate...

Blenheim Road, Sprowston, Norwich

3 Bedroom Bungalow | £1,250pcm

Located in a sought-after area of Sprowston, this recently renovated three-bedroom semi-detached bungalow offers modern...

Iconic (Norwich)

Taverham, Norwich, Norfolk, NR8 6LE

01603 261104

How much is your home worth?

Use our short form to request a valuation of your property.

Request a Valuation
©2025 The Guild of Property Professionals. All rights reserved. Terms and Conditions | Privacy Policy | Cookie Policy | Complaints Policy | Members Login
The Guild of Property Professionals Trading Address: 121 Park Lane, London W1K 7AG. GPEA Limited. Registered in England & Wales.  Company No: 02819824.  Registered Office Address: 2 St. Stephen's Court, St. Stephen's Road, Bournemouth, Dorset, England, BH2 6LA.  VAT Registration No: 576 8795 61
Book a Property Valuation Update Cookies Preferences