Stocken Hall, Stretton, Oakham

£2,000pcm

3 Bedroom Character Property for rent in Oakham

3 3 3
  • Beautifully Presented Furnished duplex apartment
  • Set over the first and second floors of this Converted Grade II* Listed 17th Century Mansion House
  • 3 double bedrooms - 2 with ensuites and all with excellent storage
  • Principal suite with en suite shower and dressing room
  • Large and versatile upper-floor seating area
  • Stunning communal grounds, countryside views and 2 off-street parking spaces
  • High ceilings, sash windows and superb natural light
  • Fully Fitted Kitchen
  • Please refer to attached Key Facts for Tenants for Material Information disclosures
  • Please note Stocken Hall House Rules included below


The apartment is arranged across the first and second floors of this truly impressive building and is offered fully furnished, with interiors thoughtfully styled to complement the character and proportions of the building. High ceilings, sash windows and excellent natural light run throughout, enhancing the sense of space and grandeur.
A welcoming entrance hall leads to the main living accommodation. The first floor provides three well-proportioned reception rooms offering flexibility for entertaining, relaxing or working from home, alongside a well-appointed kitchen fitted with quality cabinetry and integrated appliances. The principal bedroom suite is also located on this level and benefits from an en suite shower room as well as a separate walk-in dressing room accessed via a short and discreet private flight of stairs.
Bedroom Two is positioned close by, with access to the separate shower room located on the first floor. The bedroom also benefits from a generous built-in storage cupboard.
The second floor reveals an unusually large and versatile seating area positioned outside Bedroom Three and the aforementioned separate Shower Room. This light-filled space lends itself to a variety of uses including an informal sitting room, reading area, media space or home office. Bedroom Three itself is a spacious double suite with a walk-in wardrobe and en suite shower room, with the additional benefit of a further separate shower room accessed from the seating area.
Outside, the property enjoys access to large communal grounds with fantastic views across open countryside, along with off-street parking.
Set in the heart of Rutland, the property is well placed for the popular market towns of Oakham, Stamford, Uppingham and Oundle, all offering excellent schools, independent shops and everyday amenities. The A1 is easily accessible, while Stamford railway station, approximately eight miles away, provides direct services to London King’s Cross in around 45 minutes via Peterborough.
The area is particularly well regarded for its lifestyle offering, with Michelin-standard dining at The Olive Branch in Clipsham and Hambleton Hall, leisure and outdoor pursuits at Rutland Water, golf at Greetham Valley, and the exclusive facilities of Woolfox all within easy reach.

Agents Note:
Holding Deposit - £461
Tenancy Security Deposit – £2,307
Local Authority – Rutland County Council
Council Tax Band – E
EPC Rating - E

** Please note due to the requirements detailed in the head lease there are no pets allowed at this property.

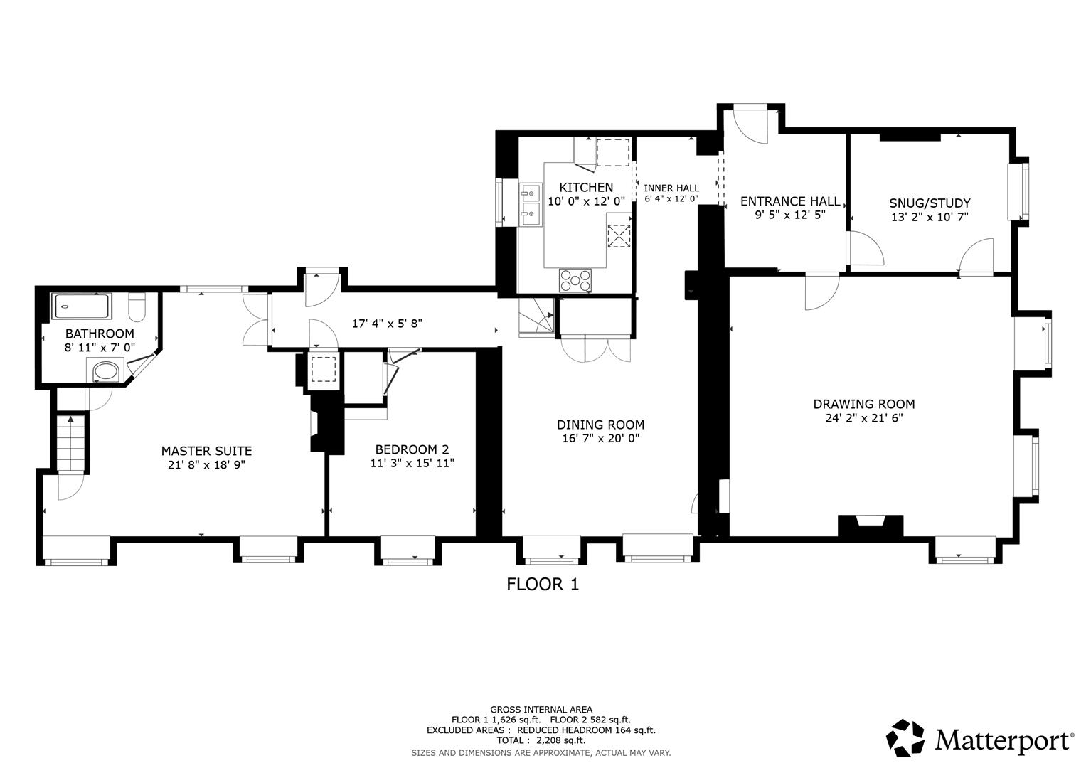
Entrance Hall
3.78m x 2.87m (12'5 x 9'5)

Drawing Room
7.37m x 6.55m (24'2 x 21'6)

Dining Room
6.10m x 5.05m (20'0 x 16'7)

Snug/Study
4.01m x 3.23m (13'2 x 10'7)

Kitchen
3.66m x 3.05m (12'0 x 10'0)

Inner Hall

Master Suite inc Ensuite & Dressing Room Above
6.60m x 5.72m (21'8 x 18'9)

Ensuite Shower
2.72m x 2.13m (8'11 x 7'0)

Dressing Room (1st floor) - limited Head Height
2.72m x 2.06m (8'11 x 6'9)

Bedroom 2
4.85m x 3.43m (15'11 x 11'3)

First floor Sitting Area
5.99m x 4.83m (19'8 x 15'10)

Bedroom 3
5.74m x 4.06m (18'10 x 13'4)

Ensuite Bathroom
3.07m x 1.93m (10'1 x 6'4)

Walk In Wardrobe

Boiler Room

Off Street Parking - 2 Spaces (Communal)

Communal Gardens


Sizes and dimensions are calculated using a laser measuring modelling device and as such whilst representative it must be noted that they are all approximate, actual sizes may vary.

Important Information

  • This Council Tax band for this property is: E
  • EPC Rating is E

Property Ref: 43069_34375738

Share:

Similar Properties

Eastgate, Deeping St. James, Peterborough

3 Bedroom Detached House | £2,000pcm

A spacious and flexible three double bedroom detached home offering four generous reception rooms, a large private garde...

North Street, Stamford

4 Bedroom Terraced House | £1,995pcm

A deceptively spacious and beautifully renovated, highly individual 4-bedroom, 3-bathroom townhouse in the heart of Stam...

Langton Walk, Stamford, Lincolnshire

4 Bedroom Townhouse | £1,795pcm

A versatile and modern three-storey town house situated on a sought-after development, ideally positioned close to Malco...

Blackfriars Street, Stamford

3 Bedroom End of Terrace House | £2,500pcm

This charming period property, located minutes from the High Street in the historic centre of Stamford Town, features 4...

Bentley Street, Stamford

1 Bedroom Flat | £140,000

***IDEAL FIRST TIME BUY*** This well presented 1-bedroom flat, is situated within a short walk of Stamford’s High Street...

Torkington Gardens, Stamford

2 Bedroom Flat | £150,000

This well presented two-bedroom first floor apartment is set within the grounds of the popular over 55’s development of...

Goodwin Property (Stamford)

St Johns Street, Stamford, Lincolnshire, PE9 2DA

01780 750000

How much is your home worth?

Use our short form to request a valuation of your property.

Request a Valuation
©2026 The Guild of Property Professionals. All rights reserved. Terms and Conditions | Privacy Policy | Cookie Policy | Complaints Policy | Members Login
The Guild of Property Professionals Trading Address: 121 Park Lane, London W1K 7AG. GPEA Limited. Registered in England & Wales.  Company No: 02819824.  Registered Office Address: 2 St. Stephen's Court, St. Stephen's Road, Bournemouth, Dorset, England, BH2 6LA.  VAT Registration No: 576 8795 61
Book a Property Valuation Update Cookies Preferences