Okehampton, Devon

£18,400pcm

Commercial Property for rent in Okehampton

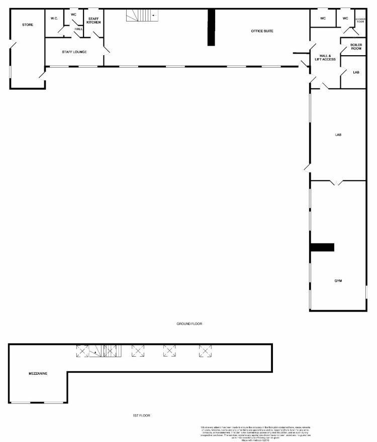
Turtle Grove Barns are a complex of offices converted from a former barn within the Sydenham Estate and enclosed within its own walled boundaries and gated entrance. The offices extend to approx 3519sqft including a mezzanie, kitchen and toilet facilities. There is ample parking and electric car charging. 

Property Ref: 1923607_10743525

Share:

Similar Properties

Betty Cottles, Tavistock Road, Okehampton, Devon, EX20

Office | £9,500pcm

AVAILABLE NOW Single storey office suite extending to approximately 807sqft (75sqm) with parking for four vehicles situa...

Sticklepath, Okehampton, Devon, EX20

5 Bedroom Detached House | £1,650pcm

This magnificent detached individually designed property is situated within attractive grounds and surrounded by neighbo...

North Tawton, Devon, EX20

3 Bedroom Detached House | £1,300pcm

A charming three bedroom detached home surrounded by woodland, with spacious grounds & workshop offers generous living s...

East Street, Okehampton, Devon, EX20

2 Bedroom Ground Floor Flat | £119,950

This ground floor two bedroom apartment is being sold with the tenant in situ. The property is within a relatively short...

Fore Street, North Tawton, Devon, EX20

1 Bedroom Ground Floor Flat | Offers Over £125,000

This immaculate one-bedroom ground floor apartment, built in 2016, offers a spacious, bright and airy living space finis...

Broad Street, Black Torrington, Beaworthy, Devon, EX21

1 Bedroom Cottage | £125,000

This one bedroom property is set in a highly sought-after village location and is offered for sale with no onward chain....

Stevens Estate Agents (Okehampton)

15 Charter Place, Okehampton, Devon, EX20 1HN

01837 53300

How much is your home worth?

Use our short form to request a valuation of your property.

Request a Valuation
©2026 The Guild of Property Professionals. All rights reserved. Terms and Conditions | Privacy Policy | Cookie Policy | Complaints Policy | Members Login
The Guild of Property Professionals Trading Address: 121 Park Lane, London W1K 7AG. GPEA Limited. Registered in England & Wales.  Company No: 02819824.  Registered Office Address: 2 St. Stephen's Court, St. Stephen's Road, Bournemouth, Dorset, England, BH2 6LA.  VAT Registration No: 576 8795 61
Book a Property Valuation Update Cookies Preferences